惠新西街甲15号院南向一居室农民日报社管理好
-
300万
总价
-
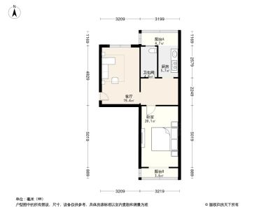
1室1厅1卫
户型
-
45.38㎡
建筑面积
买房加房产交流群,省钱不踩雷
3000+人正在热聊
加入群聊
-
单价
66109元/平米
- 挂牌价格解析
-
楼层
顶层/6层
- 咨询楼层
-
套内
暂无数据
- 咨询套内使用面积
-
楼型
板楼
-
朝向
南
-
装修
简装
-
供暖
集中供暖
-
发布
2024-08-29
-
地铁
距5号线惠新西街北口站约423米
-
咨询总首付
首付约86.6万
首付税费及佣金情况 -
深度测评
小区惠新西街甲15号院(朝阳-惠新西街)
-
更多
楼户比、楼层高度、交易历史、抵押信息
周边配套
地址:惠新西街甲15号院
交通综合评分
查看全部7.0
“较好”
超过北京64.3%的小区
-
地铁公交
10.0
-
驾车出行
10.0
本月均价 69663元/m²
环比上月 上涨 7.86%
同比去年 下跌 6.99%
猜你喜欢
同小区其它房源
户型齐全,主打户型方正,明卫,明厨,主卧朝南二居
惠新西街甲15号院户型主要有57平-71平的户型方正,明卫,明厨,主卧朝南的二居 、45平-72平的户型方正,客厅朝南,双阳台的一居 、66平-83平的户型方正,双阳台,双卧朝南,主卧朝南的三居 。
*获取完整户型报告,同时会有免费语音讲解服务
-
64600元/㎡
本月挂牌均价
-
0.9%
环比上月
买房加房产交流群,省钱不踩雷
3000+人正在热聊
加入群聊
免责声明:房源信息由网站用户提供,其真实性、合法性由信息提供者负责,最终以政府部门登记备案为准。本网站不声明或保证内容之正确性和可靠性,购买该房屋时,请谨慎核查。入学情况仅凭历史经验总结,在此不承诺升学事宜。请您在签订合同之前,切勿支付任何形式的费用,以免上当受骗。



