二次装修 精装复式两居 西南向 全明格局 拎包入
-
488万
总价
-
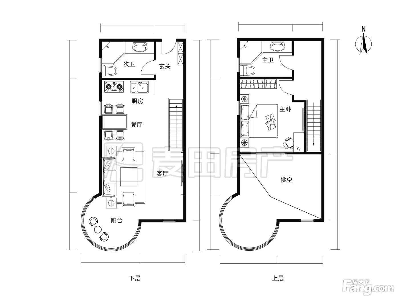
2室1厅2卫
户型
-
57.85㎡
建筑面积
买房加房产交流群,省钱不踩雷
3000+人正在热聊
-
单价
84357元/平米
- 挂牌价格解析
-
楼层
中楼层/16层
- 咨询楼层
-
套内
45.51㎡
- 咨询套内使用面积
-
楼型
塔楼
-
朝向
西南
-
装修
简装
-
供暖
集中供暖
-
发布
2024-11-01
-
地铁
距6号线青年路站约653米
-
咨询总首付
首付约140.1万
首付税费及佣金情况 -
深度测评
小区天鹅湾北区(朝阳-朝青)
-
更多
楼户比、楼层高度、交易历史、抵押信息
房源描述(1)
-
核心卖点问经纪人
相信为您推荐的这套房子您一定会满意,赶快行动吧,先到先得! 房屋年代∶2005,面积∶57.85平方米,朝向∶西南 1. 小区配备高端物业管理,让你享受宾至如归的服务; 2. 小区人文素质高,是您的居家的绝佳选择; 3. 小区居住安静舒适,让您拥有高品质的生活环境; 4. 小区绿化率高,绿树成荫鸟语花香让您随时呼吸到新鲜空气。
-
小区配套问经纪人
天鹅湾位于北京市朝阳区朝青商圈,由北京博成房地产有限公司建成,总建筑面积464600,总占地面积153400。博成地产在原有产品的基础上全面升级。新推出全新的升级版产品——创新复式户型,这种新的复式产品在集合了以往三叠及大平展户型的优点之后,调整户型进深及面宽,加大了阳光照射,使整个户型更方正通透。加强居住空间的南北对流设计,引入空中花园的元素,设计阳光空中花园阳台,把室外景观引入室内。 在复式的基础上又加入小跃层的设计,更好的延续了活性空间理理念,打破传统的居住方式,突出强烈的空间感。三叠式户型的设计,同样
周边配套
交通综合评分
查看全部超过北京31.0%的小区
-
地铁公交
10.0
-
驾车出行
10.0
-
城际交通
4.5
本月均价 76909元/m²
环比上月 下跌 4.17%
同比去年 下跌 6.46%
猜你喜欢
同小区其它房源
户型齐全,主打双阳台,双卧朝南,主卧朝南二居
天鹅湾北区户型主要有39平-188平的双阳台,双卧朝南,主卧朝南的二居 、80平-253平的户型方正,明卫,明厨,客厅朝南,独立衣帽间的三居 、37平-104平的户型方正,客厅朝南,主卧朝南的一居 。
*获取完整户型报告,同时会有免费语音讲解服务
-
58564元/㎡
本月挂牌均价
-
0.82%
环比上月
买房加房产交流群,省钱不踩雷
3000+人正在热聊
- 免费咨询
- 专业服务
- 区域解读
- 户型分析

