滨河园下叠,白河旁边,值得一看
-
480万
总价
-
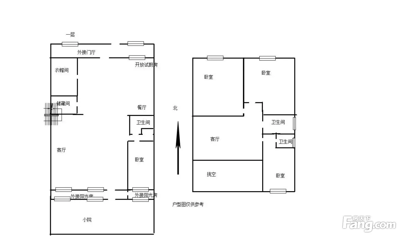
4室2厅
户型
-
176.63㎡
建筑面积
买房加房产交流群,省钱不踩雷
3000+人正在热聊
加入群聊
-
单价
27176元/平米
- 挂牌价格解析
-
楼层
5层
- 咨询楼层
-
套内
170.99㎡
- 咨询套内使用面积
-
朝向
南
-
装修
简装
-
供暖
集中供暖
-
发布
2024-04-17
-
地铁
暂无数据
-
咨询总首付
首付约159.5万
首付税费及佣金情况 -
深度测评
小区滨河园(密云-密云果园)
-
更多
楼户比、楼层高度、交易历史、抵押信息
周边配套
地址:滨河大桥西侧,党校路东
交通综合评分
查看全部6.5
“较好”
超过北京90.9%的小区
-
地铁公交
5.0
-
驾车出行
10.0
-
城际交通
5.0
猜你喜欢
同小区其它房源
户型齐全,主打独立衣帽间,主卧朝南四居
滨河园户型主要有177平-284平的独立衣帽间,主卧朝南的四居 、222平-237平的户型方正,明厨,客厅朝南,明卫,独立衣帽间,双卧朝南的三居 、176平-223平的户型方正,明卫,明厨,客厅朝南,全明格局,双阳台,独立衣帽间,主卧朝南的五居 。
*获取完整户型报告,同时会有免费语音讲解服务
-
19653元/㎡
本月挂牌均价
-
1.17%
环比上月
买房加房产交流群,省钱不踩雷
3000+人正在热聊
加入群聊
免责声明:房源信息由网站用户提供,其真实性、合法性由信息提供者负责,最终以政府部门登记备案为准。本网站不声明或保证内容之正确性和可靠性,购买该房屋时,请谨慎核查。入学情况仅凭历史经验总结,在此不承诺升学事宜。请您在签订合同之前,切勿支付任何形式的费用,以免上当受骗。



