世纪星城二期,交通便利,配套齐全
-
145万
总价
-
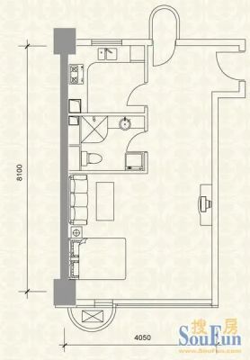
1室1卫
户型
-
52.47㎡
建筑面积
买房加房产交流群,省钱不踩雷
3000+人正在热聊
加入群聊
-
单价
27635元/平米
- 挂牌价格解析
-
楼层
中楼层/22层
- 咨询楼层
-
套内
暂无数据
- 咨询套内使用面积
-
楼型
塔楼
-
朝向
西
-
装修
简装
-
供暖
集中供暖
-
年代
2010
-
发布
2024-08-25
-
地铁
距1号线(八通线)通州北苑站约985米
-
咨询总首付
首付约42.8万
首付税费及佣金情况 -
深度测评
小区世纪星城(通州-通州北苑)
-
更多
楼户比、楼层高度、交易历史、抵押信息
房源描述(1)
周边配套
地址:通朝大街323号(永顺镇杨庄南里 )
交通综合评分
查看全部7.0
“较好”
超过北京36.1%的小区
-
地铁公交
10.0
-
驾车出行
10.0
本月均价 35495元/m²
环比上月 下跌 2.7%
同比去年 下跌 9.86%
猜你喜欢
同小区其它房源
户型齐全,主打明卫,明厨,客厅朝南,全明格局,主卧朝南二居
世纪星城户型主要有85平-143平的明卫,明厨,客厅朝南,全明格局,主卧朝南的二居 、37平-107平的明厨,明卫,户型方正的一居 、92平-243平的户型方正,双阳台,双卧朝南,主卧朝南的三居 。
*获取完整户型报告,同时会有免费语音讲解服务
-
32416元/㎡
本月挂牌均价
-
1.56%
环比上月
买房加房产交流群,省钱不踩雷
3000+人正在热聊
加入群聊
- 免费咨询
- 专业服务
- 区域解读
- 户型分析
免责声明:房源信息由网站用户提供,其真实性、合法性由信息提供者负责,最终以政府部门登记备案为准。本网站不声明或保证内容之正确性和可靠性,购买该房屋时,请谨慎核查。入学情况仅凭历史经验总结,在此不承诺升学事宜。请您在签订合同之前,切勿支付任何形式的费用,以免上当受骗。

