MOMA万万树4室南北朝向2900.00万元/套出售
-
2900万
总价
-
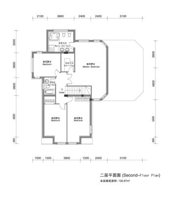
4室
户型
-
500㎡
建筑面积
买房加房产交流群,省钱不踩雷
3000+人正在热聊
加入群聊
-
单价
58107元/平米
- 挂牌价格解析
-
楼层
3层
- 咨询楼层
-
套内
500㎡
- 咨询套内使用面积
-
朝向
南北
-
装修
精装
-
年代
2005
-
发布
2023-05-17
-
咨询总首付
首付约984万
首付税费及佣金情况 -
深度测评
小区MOMA万万树(顺义-中央别墅区)
-
更多
楼户比、楼层高度、交易历史、抵押信息
周边配套
地址:高丽营镇(北六环火寺路出口西300米)
交通综合评分
查看全部5.0
“一般”
超过北京99.0%的小区
-
地铁公交
5.0
-
驾车出行
10.0
猜你喜欢
同小区其它房源
-
52686元/㎡
本月挂牌均价
-
2.32%
环比上月
买房加房产交流群,省钱不踩雷
3000+人正在热聊
加入群聊
- 免费咨询
- 专业服务
- 区域解读
- 户型分析
免责声明:房源信息由网站用户提供,其真实性、合法性由信息提供者负责,最终以政府部门登记备案为准。本网站不声明或保证内容之正确性和可靠性,购买该房屋时,请谨慎核查。入学情况仅凭历史经验总结,在此不承诺升学事宜。请您在签订合同之前,切勿支付任何形式的费用,以免上当受骗。


