望京 金隅丽港城 东南3居 得房率82 看SOHO 无遮挡
-
858万
总价
-
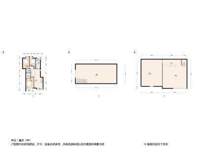
3室2厅2卫
户型
-
133.4㎡
建筑面积
买房加房产交流群,省钱不踩雷
3000+人正在热聊
加入群聊
-
单价
64317元/平米
- 挂牌价格解析
-
楼层
高楼层/26层
- 咨询楼层
-
套内
暂无数据
- 咨询套内使用面积
-
楼型
塔楼
-
朝向
东南
-
装修
精装修
-
发布
2024-11-05
-
地铁
距14号线阜通站约919米
-
咨询总首付
首付约468万
首付税费及佣金情况 -
深度测评
小区金隅丽港城(朝阳-望京)
-
更多
楼户比、楼层高度、交易历史、抵押信息
周边配套
地址:望京南湖南路15号院(南湖南路花家地西里)
交通综合评分
查看全部7.0
“较好”
超过北京59.1%的小区
-
地铁公交
10.0
-
驾车出行
10.0
本月均价 65102元/m²
环比上月 上涨 0.09%
同比去年 下跌 10.17%
猜你喜欢
同小区其它房源
-
61308元/㎡
本月挂牌均价
-
1.97%
环比上月
买房加房产交流群,省钱不踩雷
3000+人正在热聊
加入群聊
免责声明:房源信息由网站用户提供,其真实性、合法性由信息提供者负责,最终以政府部门登记备案为准。本网站不声明或保证内容之正确性和可靠性,购买该房屋时,请谨慎核查。入学情况仅凭历史经验总结,在此不承诺升学事宜。请您在签订合同之前,切勿支付任何形式的费用,以免上当受骗。



