国贸CBD世贸天阶整层1800平米丨光华路财富万通嘉盛中环
-
5400万
总价
-
精装修
装修
-
1800㎡
建筑面积
买房加房产交流群,省钱不踩雷
3000+人正在热聊
加入群聊
-
楼层
高层/28层
-
单价
30000元/平米
-
楼盘名称
汉威大厦
-
区域
朝阳
-
使用面积
1620㎡
-
物业费
28元/平米·月
-
类型
纯写字楼
-
等级
甲级
-
挂牌时间
2026-03-28
房源描述(1)
-
核心卖点问经纪人
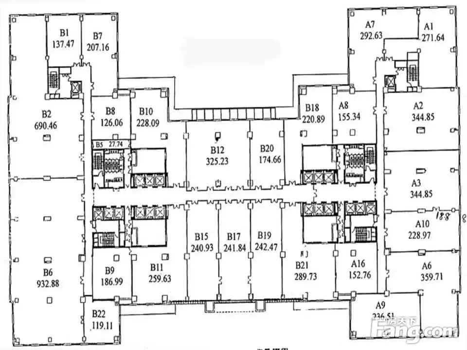
欢迎有房业主来电委托登记! 因版面有限,更多在售房源信息,请点击头像进入我的店铺查看,或者电话联系咨询。 经理石海飞竭诚为您服务! - 项目名称:汉威大厦 房屋面积:1800平米 交易成本:各自承担 建成年代:1998年 所在楼层:中高层 房屋朝向:四面采光 产权情况:公司产权 交房方式:产权交易 房屋装修:精致装修 房本情况:1个房本 楼层:3.6米框架结构 市场租金:7-9元每平每天 地铁交通:地铁10号线金台夕照站 看房时间:工作日上班时间提前联系
-
服务介绍问经纪人
北京远行房地产经纪有限公司成立于2009年,始终专注地产服务领域,致力于为地产开发商、业主、者和用户提供服务。 中国·远行一直秉承专业、责任、高效、真诚的原则,为每一位客户与业主提供一个公平、阳光
-
周边配套问经纪人
小区地理位置好,配套设施齐全,交通便利,居民素质高。
-
交通出行问经纪人
?我是部资深顾问石海飞,作为您本次置业顾问,我承诺可以做到: ① 详细为您介绍房源,并且根据您的购房需求可以帮您推荐匹配更多适合您的房源,并且做到详细介绍。 ②为您本次购房做 专业的分析,并且全程做到真实诚信,全程为您的利益考虑,真实不欺骗,坦诚不功利。 ③成交是服务的开始,希望可以作为您和家人朋友一生的置业顾问,任何房产问题都尽我所能帮您解决。 期待与您的沟通~
周边配套
地址:光华路7号
交通综合评分
查看全部8.3
“较好”
超过北京71.7%的小区
-
地铁公交
10.0
-
驾车出行
10.0
-
城际交通
4.5
猜你喜欢
同小区其它写字楼
- 免费咨询
- 专业服务
- 区域解读
- 户型分析
免责声明:房源信息由网站用户提供,其真实性、合法性由信息提供者负责,最终以政府部门登记备案为准。本网站不声明或保证内容之正确性和可靠性,购买该房屋时,请谨慎核查。入学情况仅凭历史经验总结,在此不承诺升学事宜。请您在签订合同之前,切勿支付任何形式的费用,以免上当受骗。


