望京 绿地 融科望京 方恒国际780平 双面采光 户型方正
-
1560万
总价
-
精装修
装修
-
780㎡
建筑面积
买房加房产交流群,省钱不踩雷
3000+人正在热聊
加入群聊
-
楼层
高层/19层
-
单价
20000元/平米
-
楼盘名称
方恒国际中心写字楼
-
区域
朝阳
-
类型
纯写字楼
-
等级
甲级
-
挂牌时间
2026-03-26
房源描述(1)
-
核心卖点问经纪人
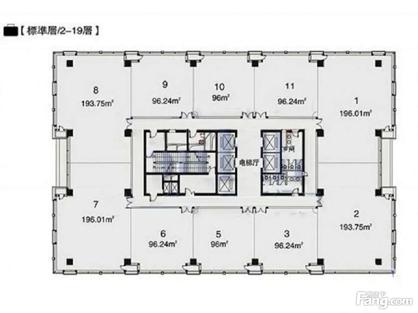
一、房源介绍 (1)项目名称:方恒国际中心 (2)项目地址:望京阜通东大街6号,地铁14号线望京南站 (3)建筑面积:780平米 (4)房源单价:2.0万 (5)房源总价:1560万 (6)房屋状态:空置,装修,自用客户随时入住 (7)产权方:个人 (8)交易方式:产权交易 (9)交易:只有契税 (10)是否有纠纷:无纠纷,放心购买! ———————————————————————————— 二、—华亮服务 (1)全程看房,为您省时、省力! (2)专业团队为您匹配房源,让您省心、放心! (3)强大的资源系统让您360度全面了解项目、市场! (4)带看、签约、验房、交接全程参与,用无微不至的服务让您满意! (5)可提供全市写字楼市场报告、法律咨询、财税咨询、装修咨询、培训咨询! ————————————————————————————— 三、-公司简介 专注地产18年,目标是为客户提供高效安全的地产服务,并成功奠定了公司在该领域的领导品牌地位,我们不断创新服务模式,提高服务产品与服务质量,坚持不懈为客户提供更加完善的购房体验,以诚信,专业赢得更多客户的尊重与支持。
-
服务介绍问经纪人
公司有大量好房源,欢迎进入我的店铺查看,随时电话咨询,相信我的专业,为您置业安家保驾护航。
-
周边配套问经纪人
小区居民素质高,配套设施齐全,地理位置好,交通便利。
-
交通出行问经纪人
产权干净,税费清晰,欢迎来电咨询该房屋详情,静候您的来电!
周边配套
地址:望京阜通东大街与阜荣街交汇处东侧(邮编:100102)
交通综合评分
查看全部7.0
“较好”
超过北京80.5%的小区
-
地铁公交
10.0
-
驾车出行
10.0
猜你喜欢
同小区其它写字楼
- 免费咨询
- 专业服务
- 区域解读
- 户型分析
免责声明:房源信息由网站用户提供,其真实性、合法性由信息提供者负责,最终以政府部门登记备案为准。本网站不声明或保证内容之正确性和可靠性,购买该房屋时,请谨慎核查。入学情况仅凭历史经验总结,在此不承诺升学事宜。请您在签订合同之前,切勿支付任何形式的费用,以免上当受骗。


