2150万 新品合院中式别墅 双首层设计 温榆河老河湾畔
-
2030.87万
总价
-
4室3厅4卫
户型
-
388.1㎡
建筑面积
买房加房产交流群,省钱不踩雷
3000+人正在热聊
加入群聊
-
单价
52329元/平米
- 挂牌价格解析
-
楼层
4层
- 咨询楼层
-
套内
387.1㎡
- 咨询套内使用面积
-
楼型
独栋
-
朝向
南
-
装修
精装修
-
年代
2017
-
发布
2026-02-18
-
地铁
暂无数据
-
咨询总首付
首付约672万
首付税费及佣金情况 -
深度测评
小区格拉斯小镇(通州-宋庄)
-
更多
楼户比、楼层高度、交易历史、抵押信息
房源描述(1)
-
核心卖点问经纪人
核心 您好!很高兴为您提供别墅买卖服务,本人专业代理别墅项目,多套房源、叠拼、联排、双拼、独栋可供您选择,每个户型都有钥匙,可以带您随时看房,选择,请选择别墅置业!
-
业主心态问经纪人
1:所出售的房源均为新房无差价 2:交房时只需交付正常购房费用,契税和工维,购房成本低,居住品质高 3:您信任我,我根据您的需求真诚为您分析置业北京的核心点 4: 子贤24时工作,随时欢迎您的来电136.8314.6982
-
小区配套问经纪人
小区地理位置佳,绿化环境优越整洁,居民素质高,物业管理完善,适宜居住
-
服务介绍问经纪人
本人做房产多年,一直本着专业的房产知识,为您服务,我会在短的时间内帮您买好满意的房子,不让您错失任何好房子,更不让您每天为买房的事烦心,欢迎随时拨打我电话。
-
税费分析房贷计算
关于本房的税费信息情况,请电话联系我,我将详细的为您讲解!
周边配套
地址:北京市通州区宋庄镇格拉斯小镇营销中心
猜你喜欢
同小区其它房源
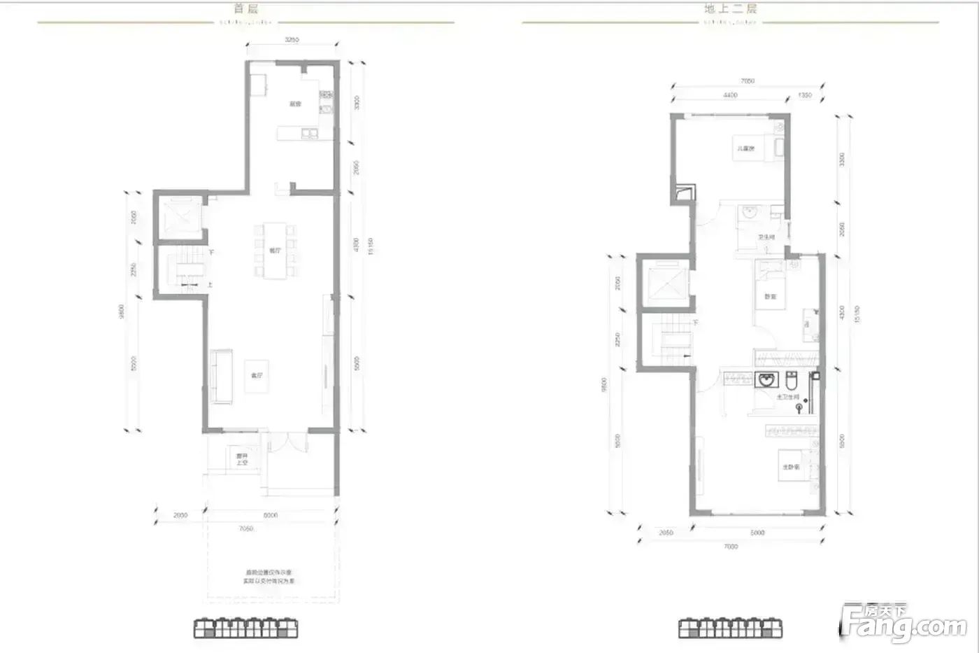
户型齐全,主打南北通透,客厅朝南,主卧带卫四居
格拉斯墅区户型主要有330平-597平的南北通透,客厅朝南,主卧带卫的四居 、247平-330平的南北通透,客厅朝南,主卧带卫的三居 、822平-822平的南北通透,客厅朝南的五居 。
*获取完整户型报告,同时会有免费语音讲解服务
-
41715元/㎡
本月挂牌均价
-
0.37%
环比上月
买房加房产交流群,省钱不踩雷
3000+人正在热聊
加入群聊
- 免费咨询
- 专业服务
- 区域解读
- 户型分析
免责声明:房源信息由网站用户提供,其真实性、合法性由信息提供者负责,最终以政府部门登记备案为准。本网站不声明或保证内容之正确性和可靠性,购买该房屋时,请谨慎核查。入学情况仅凭历史经验总结,在此不承诺升学事宜。请您在签订合同之前,切勿支付任何形式的费用,以免上当受骗。


