天地神通 南华园一区 精装修 有车棚 万达商圈 停车方便
-
235万
总价
-
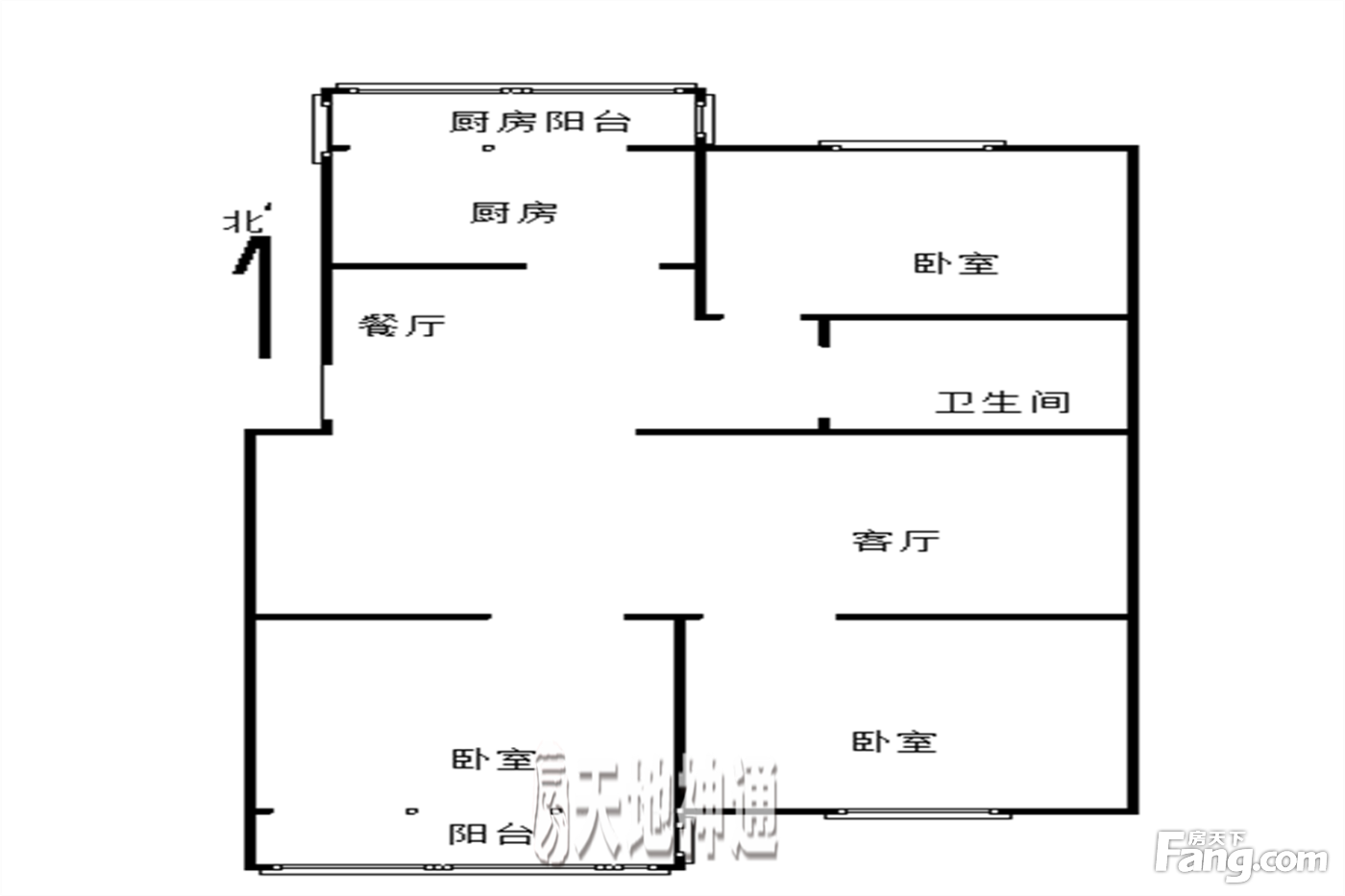
3室2厅1卫
户型
-
101.7㎡
建筑面积
买房加房产交流群,省钱不踩雷
3000+人正在热聊
加入群聊
-
单价
23107元/平米
- 挂牌价格解析
-
楼层
中层/6层
- 咨询楼层
-
套内
暂无数据
- 咨询套内使用面积
-
楼型
板楼
-
朝向
南北
-
装修
精装修
-
年代
1983
-
发布
2026-01-30
-
咨询总首付
首付约69万
首付税费及佣金情况 -
深度测评
小区南华园一区(怀柔-怀柔城区)
-
更多
楼户比、楼层高度、交易历史、抵押信息
房源描述(1)
-
核心卖点问经纪人
该房源位于南华园一区,是怀柔城区南大街南侧的成熟住宅区。房屋为南北通透的3室2厅1卫格局,建筑面积达101.7平米,空间布局合理。中层位置让居住体验更加舒适,6层建筑保证了良好的采光和通风条件。 房屋为1983年建成的精装修住宅,满五,交易税费优惠。室内装修保持良好,南北朝向带来充足的自然光线。单价23107元/平米,总价235万,在怀柔城区具有较高的性价比。周边生活配套成熟,交通便利,适合改善型家庭居住。
周边配套
地址:南大街南侧,南关街东侧
交通综合评分
查看全部5.0
“一般”
超过北京46.0%的小区
-
地铁公交
5.0
-
驾车出行
10.0
本月均价 21393元/m²
环比上月 下跌 2.52%
同比去年 下跌 11.02%
猜你喜欢
同小区其它房源
-
23950元/㎡
本月挂牌均价
-
0.09%
环比上月
买房加房产交流群,省钱不踩雷
3000+人正在热聊
加入群聊
- 免费咨询
- 专业服务
- 区域解读
- 户型分析
免责声明:房源信息由网站用户提供,其真实性、合法性由信息提供者负责,最终以政府部门登记备案为准。本网站不声明或保证内容之正确性和可靠性,购买该房屋时,请谨慎核查。入学情况仅凭历史经验总结,在此不承诺升学事宜。请您在签订合同之前,切勿支付任何形式的费用,以免上当受骗。


