天地神通 融城园南区 精装修 三居室 南北通透
-
160万
总价
-
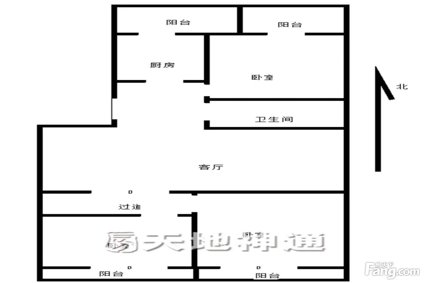
3室1厅1卫
户型
-
95.03㎡
建筑面积
买房加房产交流群,省钱不踩雷
3000+人正在热聊
-
单价
16837元/平米
- 挂牌价格解析
-
楼层
顶层/6层
- 咨询楼层
-
套内
暂无数据
- 咨询套内使用面积
-
楼型
板楼
-
朝向
南北
-
装修
精装修
-
年代
2005
-
发布
2026-01-10
-
地铁
暂无数据
-
咨询总首付
首付约46.4万
首付税费及佣金情况 -
深度测评
小区融城园(怀柔-庙城)
-
更多
楼户比、楼层高度、交易历史、抵押信息
房源描述(1)
-
核心卖点问经纪人
相信为您推荐的这套房子您一定会满意,赶快行动吧,先到先得! 房屋年代∶2005,面积∶95.03平方米,朝向∶南北 1. 小区配备高端物业管理,让你享受宾至如归的服务; 2. 小区人文素质高,是您的居家的绝佳选择; 3. 小区居住安静舒适,让您拥有高品质的生活环境; 4. 小区绿化率高,绿树成荫鸟语花香让您随时呼吸到新鲜空气。
周边配套
交通综合评分
查看全部超过北京41.4%的小区
-
地铁公交
5.0
-
驾车出行
10.0
本月均价 17832元/m²
环比上月 下跌 4.68%
同比去年 下跌 14.66%
猜你喜欢
同小区其它房源
户型齐全,主打户型方正,客厅朝南,双阳台二居
融城园户型主要有79平-79平的户型方正,客厅朝南,双阳台的二居 、105平-106平的户型方正,客厅朝南,双阳台的三居 。
*获取完整户型报告,同时会有免费语音讲解服务
-
20952元/㎡
本月挂牌均价
-
0.35%
环比上月
买房加房产交流群,省钱不踩雷
3000+人正在热聊
- 免费咨询
- 专业服务
- 区域解读
- 户型分析


