南北通透紫御华府7室4厅精装修
-
4199万
总价
-
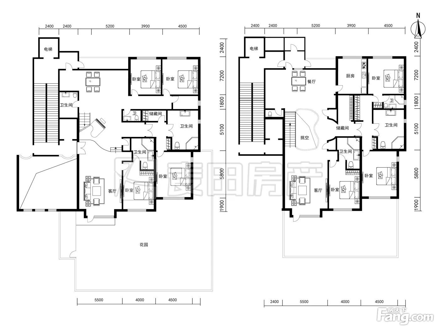
7室4厅7卫
户型
-
665.29㎡
建筑面积
买房加房产交流群,省钱不踩雷
3000+人正在热聊
-
单价
63115元/平米
- 挂牌价格解析
-
楼层
底层/22层
- 咨询楼层
-
套内
暂无数据
- 咨询套内使用面积
-
楼型
板楼
-
朝向
南北
-
装修
精装修
-
年代
2013
-
发布
2025-12-26
-
地铁
距5号线立水桥南站约532米
-
咨询总首付
首付约1389.5万
首付税费及佣金情况 -
深度测评
小区紫御华府(朝阳-北苑)
-
更多
楼户比、楼层高度、交易历史、抵押信息
房源描述(1)
-
核心卖点问经纪人
相信为您推荐的这套房子您一定会满意,赶快行动吧,先到先得! 房屋年代∶2013,面积∶665.29平方米,朝向∶南北 1. 小区配备高端物业管理,让你享受宾至如归的服务; 2. 小区人文素质高,是您的居家的绝佳选择; 3. 小区居住安静舒适,让您拥有高品质的生活环境; 4. 小区绿化率高,绿树成荫鸟语花香让您随时呼吸到新鲜空气。
-
小区配套问经纪人
紫御华府项目雄踞北五环安立路,雍享奥林匹克森林公园680公顷静谧自然,近享景藏公园、高尔夫球场以及清河水系。 紫御华府园内以太师椅理念筑园,于千年河床请石,打造冠领京城的十米飞瀑景观,全冠移植千株名树;甄选珍稀紫罗兰石材,潜心营造精工建筑。
周边配套
交通综合评分
查看全部超过北京0.5%的小区
-
地铁公交
10.0
本月均价 86798元/m²
环比上月 下跌 0.07%
同比去年 下跌 6.25%
猜你喜欢
同小区其它房源
-
58039元/㎡
本月挂牌均价
-
1.33%
环比上月
买房加房产交流群,省钱不踩雷
3000+人正在热聊
- 免费咨询
- 专业服务
- 区域解读
- 户型分析


