中信沁园2室2厅精装修
-
1395万
总价
-
2室2厅1卫
户型
-
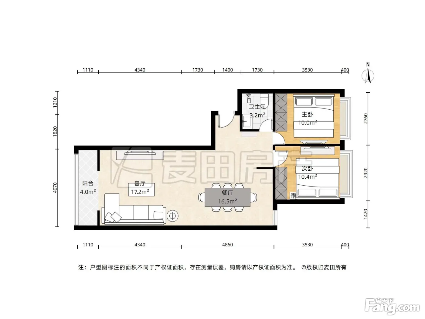
94.67㎡
建筑面积
买房加房产交流群,省钱不踩雷
3000+人正在热聊
-
单价
147354元/平米
- 挂牌价格解析
-
楼层
低层/23层
- 咨询楼层
-
套内
暂无数据
- 咨询套内使用面积
-
楼型
板楼
-
朝向
东西
-
装修
精装修
-
年代
2010
-
发布
2025-12-19
-
地铁
距4号线大兴线菜市口站约476米
-
咨询总首付
首付约1009.7万
首付税费及佣金情况 -
深度测评
小区中信沁园(西城-陶然亭)
-
更多
楼户比、楼层高度、交易历史、抵押信息
房源描述(1)
-
核心卖点问经纪人
相信为您推荐的这套房子您一定会满意,赶快行动吧,先到先得! 房屋年代∶2010,面积∶94.67平方米,朝向∶东西 1. 小区配备高端物业管理,让你享受宾至如归的服务; 2. 小区人文素质高,是您的居家的绝佳选择; 3. 小区居住安静舒适,让您拥有高品质的生活环境; 4. 小区绿化率高,绿树成荫鸟语花香让您随时呼吸到新鲜空气。
-
小区配套问经纪人
中信城为目前北京二环内稀缺大体量建筑群,中信地产从整体规划布局到建筑细节品质,倾尽全力,精益求精,以庞大的建筑体量和丰富的业态组合,打造城市中心地区的颠峰级区域。中信沁园坐落在北京市宣武区菜市口路口东南角,东至粉房琉璃街,西至菜市口大街(国际传媒大道);南至南横东街,北至两广大街;位于长安街南侧,中信沁园又名中信城二期,与2011年建成12栋楼,其中5栋70年产权的住宅商品房,7栋商业独栋。
周边配套
交通综合评分
查看全部超过北京2.3%的小区
-
地铁公交
10.0
-
城际交通
5.0
本月均价 170141元/m²
环比上月 下跌 0.74%
同比去年 下跌 6.46%
猜你喜欢
同小区其它房源
户型齐全,主打客厅朝南二居
中信城二期户型主要有57平-110平的客厅朝南的二居 、91平-151平的户型方正,明厨,主卧朝南的三居 、64平-66平的户型方正,明厨的一居 。
*获取完整户型报告,同时会有免费语音讲解服务
-
111363元/㎡
本月挂牌均价
-
1.72%
环比上月
买房加房产交流群,省钱不踩雷
3000+人正在热聊
- 免费咨询
- 专业服务
- 区域解读
- 户型分析


