三环精装别墅 室外大阳台 恒温恒湿 3卧朝南全天采光 可议价
-
1678万
总价
-
4室3厅4卫
户型
-
359.47㎡
建筑面积
买房加房产交流群,省钱不踩雷
3000+人正在热聊
加入群聊
-
单价
46680元/平米
- 挂牌价格解析
-
楼层
2层
- 咨询楼层
-
套内
358.47㎡
- 咨询套内使用面积
-
楼型
独栋
-
朝向
东
-
装修
豪华装修
-
年代
2016
-
发布
2025-12-26
-
地铁
距10号线首经贸站约970米
-
咨询总首付
首付约555.3万
首付税费及佣金情况 -
深度测评
小区北京中国府别墅(丰台-玉泉营)
-
更多
楼户比、楼层高度、交易历史、抵押信息
房源描述(1)
-
核心卖点问经纪人
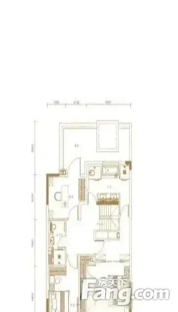
①户型介绍:房子结构为地上二层地下一层,首层南向客厅和卧室,二层南向两个房间,北向一个房间带室外阳台;地下一层为活动区,也是精装交付。独门独院,很有仪式感,外观全石材历久弥新。 ②恒温恒湿科技别墅:恒温恒湿五恒科技系统,让整个房间一年四季如春享受,精装交付,三环城市别墅。
-
业主心态问经纪人
业主很信任我,我能了解业主卖房新的动态。目前市场交易量平稳,政策已经基本稳定,是市场触底入手的好时候。请不要错过性价比高的好房。
-
小区配套问经纪人
小区地理位置佳,绿化环境优越整洁,居民素质高,物业管理完善,适宜居住
-
服务介绍问经纪人
至诚热情,自信乐观,责任担当,服务,结果导向,节省您的时间精力,我将以高效专业的工作能力,为您忧解难! 欢迎您的来电: 巩彩云132.4111.3051
-
税费分析房贷计算
1. 所售房源是新房项目; 2. 交房时只需缴纳正常购房契税,购房成本低,品质很高; 3. 您信任我,我还您满意的家; 4. 我是您的置业顾问巩彩云132.4111.3051
-
户型解读问经纪人
房屋拥有相对宽松的尺寸,布局通透,动静分离,设计豪华
周边配套
地址:丰台东路46号
-
54916元/㎡
本月挂牌均价
-
0.38%
环比上月
买房加房产交流群,省钱不踩雷
3000+人正在热聊
加入群聊
- 免费咨询
- 专业服务
- 区域解读
- 户型分析
免责声明:房源信息由网站用户提供,其真实性、合法性由信息提供者负责,最终以政府部门登记备案为准。本网站不声明或保证内容之正确性和可靠性,购买该房屋时,请谨慎核查。入学情况仅凭历史经验总结,在此不承诺升学事宜。请您在签订合同之前,切勿支付任何形式的费用,以免上当受骗。


