南北通透光熙家园3室2厅精装修
-
1290万
总价
-
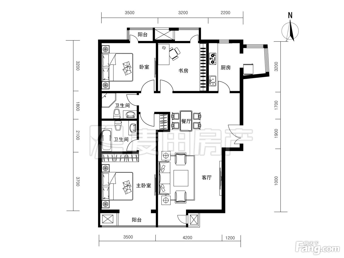
3室2厅2卫
户型
-
154.33㎡
建筑面积
买房加房产交流群,省钱不踩雷
3000+人正在热聊
-
单价
83587元/平米
- 挂牌价格解析
-
楼层
低层/21层
- 咨询楼层
-
套内
暂无数据
- 咨询套内使用面积
-
楼型
塔板结合
-
朝向
南北
-
装修
精装修
-
年代
2009
-
发布
2025-12-02
-
地铁
距13号线光熙门站约560米
-
咨询总首付
首付约426.7万
首付税费及佣金情况 -
深度测评
小区光熙家园(朝阳-西坝河)
-
更多
楼户比、楼层高度、交易历史、抵押信息
房源描述(1)
-
核心卖点问经纪人
相信为您推荐的这套房子您一定会满意,赶快行动吧,先到先得! 房屋年代∶2009,面积∶154.33平方米,朝向∶南北 1. 小区配备高端物业管理,让你享受宾至如归的服务; 2. 小区人文素质高,是您的居家的绝佳选择; 3. 小区居住安静舒适,让您拥有高品质的生活环境; 4. 小区绿化率高,绿树成荫鸟语花香让您随时呼吸到新鲜空气。
-
小区配套问经纪人
和平里de小镇光熙家园位于北京国门——三元桥的北侧,北京市交通枢纽——东直门的东北侧,二环与三环之间。弥足珍贵的地理位置,在土地稀缺的城市生活核心区尽可能的保证生活的高舒适度。项目根据所处地块的特点与优势,有效利用东、西向绿化带,小区自成一体,浑然天成的成为城市中心的理想生态城。秉承一种自由与舒适的原创思想,建筑形式表现为都市方正主义,采光度及舒度俱佳,建筑总高度错落于45~75米之间,层高2.8米。整体色彩尽显豪华气度。在建筑理念方面,更是用中国化的方正手法,充分满足视觉美感需求的同时,倍显居住的舒适与
周边配套
交通综合评分
查看全部超过北京74.6%的小区
-
地铁公交
10.0
-
驾车出行
10.0
本月均价 82741元/m²
环比上月 上涨 0.4%
同比去年 下跌 6.33%
猜你喜欢
同小区其它房源
户型齐全,主打明厨,客厅朝南二居
光熙家园户型主要有59平-165平的明厨,客厅朝南的二居 、39平-87平的独立衣帽间,双阳台的一居 、96平-196平的户型方正,明卫,明厨,客厅朝南,全明格局的三居 。
*获取完整户型报告,同时会有免费语音讲解服务
-
72279元/㎡
本月挂牌均价
-
1.29%
环比上月
买房加房产交流群,省钱不踩雷
3000+人正在热聊
- 免费咨询
- 专业服务
- 区域解读
- 户型分析


