南北通透紫辰院5室3厅豪华装修
-
2893万
总价
-
5室3厅4卫
户型
-
388.39㎡
建筑面积
买房加房产交流群,省钱不踩雷
3000+人正在热聊
-
单价
74487元/平米
- 挂牌价格解析
-
楼层
底层/21层
- 咨询楼层
-
套内
暂无数据
- 咨询套内使用面积
-
楼型
板楼
-
朝向
南北
-
装修
豪华装修
-
年代
2018
-
发布
2025-12-26
-
咨询总首付
首付约981.6万
首付税费及佣金情况 -
深度测评
小区紫辰院(丰台-岳各庄)
-
更多
楼户比、楼层高度、交易历史、抵押信息
房源描述(1)
-
核心卖点问经纪人
相信为您推荐的这套房子您一定会满意,赶快行动吧,先到先得! 房屋年代∶2018,面积∶388.39平方米,朝向∶南北 1. 小区配备高端物业管理,让你享受宾至如归的服务; 2. 小区人文素质高,是您的居家的绝佳选择; 3. 小区居住安静舒适,让您拥有高品质的生活环境; 4. 小区绿化率高,绿树成荫鸟语花香让您随时呼吸到新鲜空气。
-
小区配套问经纪人
紫辰院项目位于西四环中路112号,西三环至西四环间,占地11.1万平方米,总建面14.6万平方米。紫辰院以南北贯穿的中轴为空间序列,形成“品”字形空间布局,涵盖独栋别墅、联排别墅、平层大宅、高端商业等多重业态。别墅与高层皆采用全石材干挂外立面,其中高层建筑采用手法简约凝练、轮廓优美的新古典主义,从整体到局部,精雕细琢,厚重高贵;在吸纳新古典主义精髓的同时,融入纹章、红铜、砖雕等中国建筑传统元素,定制契合当代精神的礼制豪宅。
周边配套
本月均价 81195元/m²
环比上月 下跌 1.84%
同比去年 下跌 15.92%
猜你喜欢
同小区其它房源
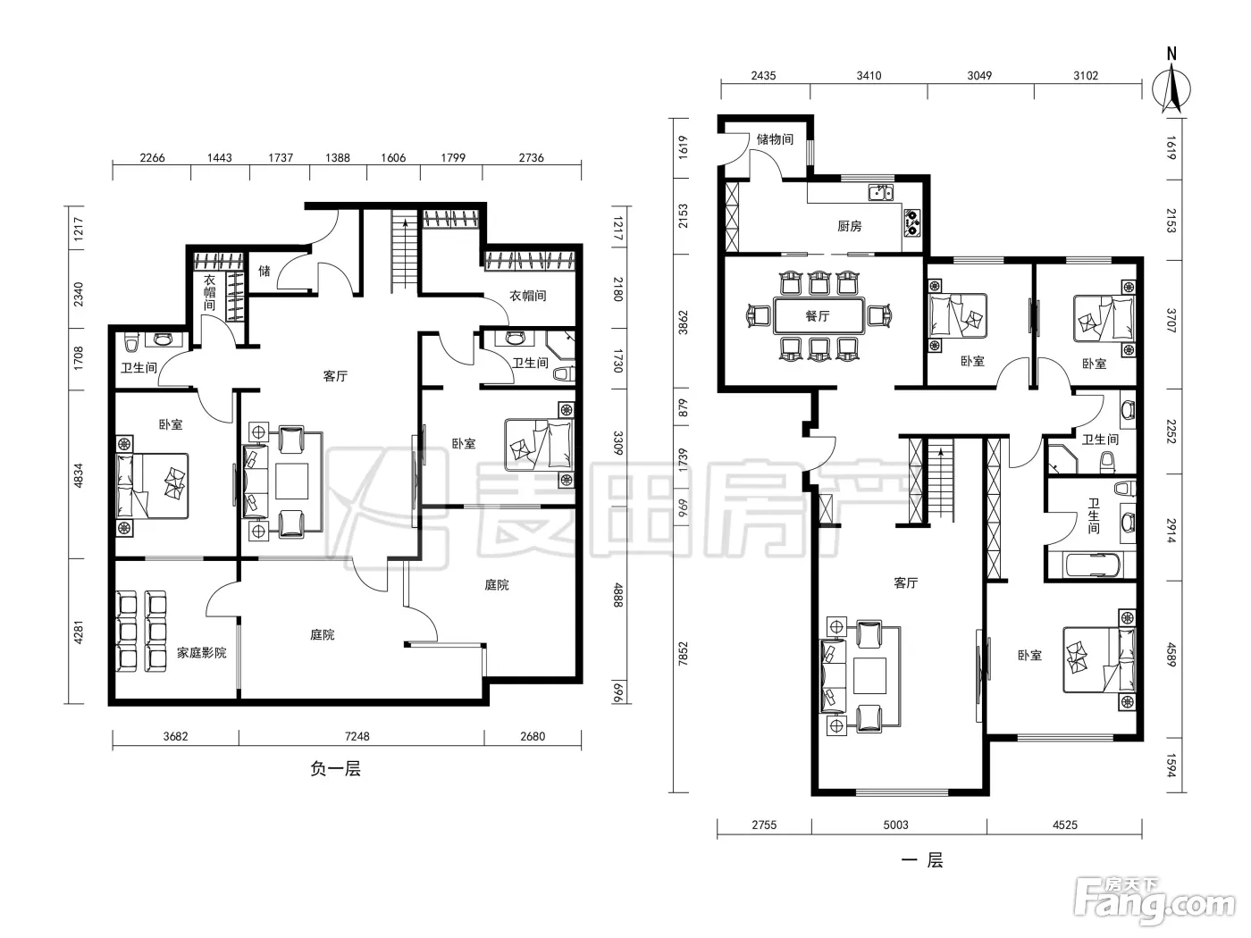
户型齐全,主打南北通透,户型方正,干湿分离四居
紫辰院户型主要有141平-266平的南北通透,户型方正,干湿分离的四居 、114平-188平的南北通透,户型方正,干湿分离的三居 、275平-345平的户型方正,全明格局,干湿分离的五居 。
*获取完整户型报告,同时会有免费语音讲解服务
-
50416元/㎡
本月挂牌均价
-
0.99%
环比上月
买房加房产交流群,省钱不踩雷
3000+人正在热聊
- 免费咨询
- 专业服务
- 区域解读
- 户型分析

