保利金泉广场 南向精装一居 满五 高层视野佳 全天采光
-
569万
总价
-
1室1厅1卫
户型
-
77㎡
建筑面积
买房加房产交流群,省钱不踩雷
3000+人正在热聊
-
单价
73896元/平米
- 挂牌价格解析
-
楼层
高层/30层
- 咨询楼层
-
套内
暂无数据
- 咨询套内使用面积
-
楼型
塔楼
-
朝向
南
-
装修
精装修
-
年代
2008
-
发布
2025-12-30
-
地铁
距15号线安立路站约383米
-
咨询总首付
首付约176.7万
首付税费及佣金情况 -
深度测评
小区保利金泉广场(朝阳-亚运村)
-
更多
楼户比、楼层高度、交易历史、抵押信息
房源描述(1)
-
核心卖点问经纪人
本房源位于朝阳亚运村核心地段的保利金泉广场,2008年建成的品质住宅小区,地理位置优越,周边配套成熟。77平米南向一居室,采光充足,精装修保养良好,户型方正实用,带独立厨房和阳台,居住舒适度高。 该房源为30层高层住宅,视野开阔无遮挡,满五税费优势明显。小区物业管理规范,居住环境安静私密。目前挂牌价598万,单价77662元/平,性价比突出,是亚运村区域难得的优质一居室房源。
-
业主心态问经纪人
业主诚意出售,因为住的房子有点小。业主要换个稍微大点的房子
-
小区配套问经纪人
保利金泉广场位于亚运村及奥运会场的核心地带、四环路与五环路之间西距奥运主场馆1000米东临北苑路、西至108路电车总站、北临北小河路、南临大屯路.项目地处于大屯路、北苑路与安立路三条城市主干道之间道路情况良好为本项目提供了良好的交通条件紧邻地铁5号线和15号线5上北四环.小区由30层的4栋斜板和6栋塔楼组成。以2室2厅和3室2厅为主力户型。设有方便高档的生活配套和教育配套。项目后期为2栋智能化写字楼,1栋高档酒店式服务公寓,同时配备2个大型主力商业街和一个集中商业区。
-
服务介绍问经纪人
本房房本干净,无抵押无贷款,房子满五年 业主付服务费
-
税费分析房贷计算
业主诚意出售,房子自住 ,保持的整洁卫生。 房子满五 ,税费3万
-
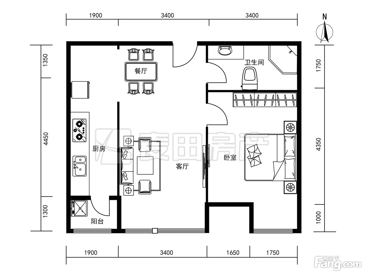
户型解读问经纪人
房子客厅、卧室、厨房全部都是南向。并且客厅处配有小储物间。
周边配套
交通综合评分
查看全部超过北京95.2%的小区
-
地铁公交
10.0
-
驾车出行
10.0
本月均价 75957元/m²
环比上月 下跌 0.97%
同比去年 下跌 9.72%
猜你喜欢
同小区其它房源
户型齐全,主打户型方正二居
保利金泉户型主要有72平-116平的户型方正的二居 、64平-188平的明卫,客厅朝南的三居 、70平-113平的客厅朝南,主卧朝南的一居 。
*获取完整户型报告,同时会有免费语音讲解服务
-
65901元/㎡
本月挂牌均价
-
1.15%
环比上月
买房加房产交流群,省钱不踩雷
3000+人正在热聊
- 免费咨询
- 专业服务
- 区域解读
- 户型分析


