天地神通 怀柔青春路 两居室 4层 南北通透 诚意出售
-
108万
总价
-
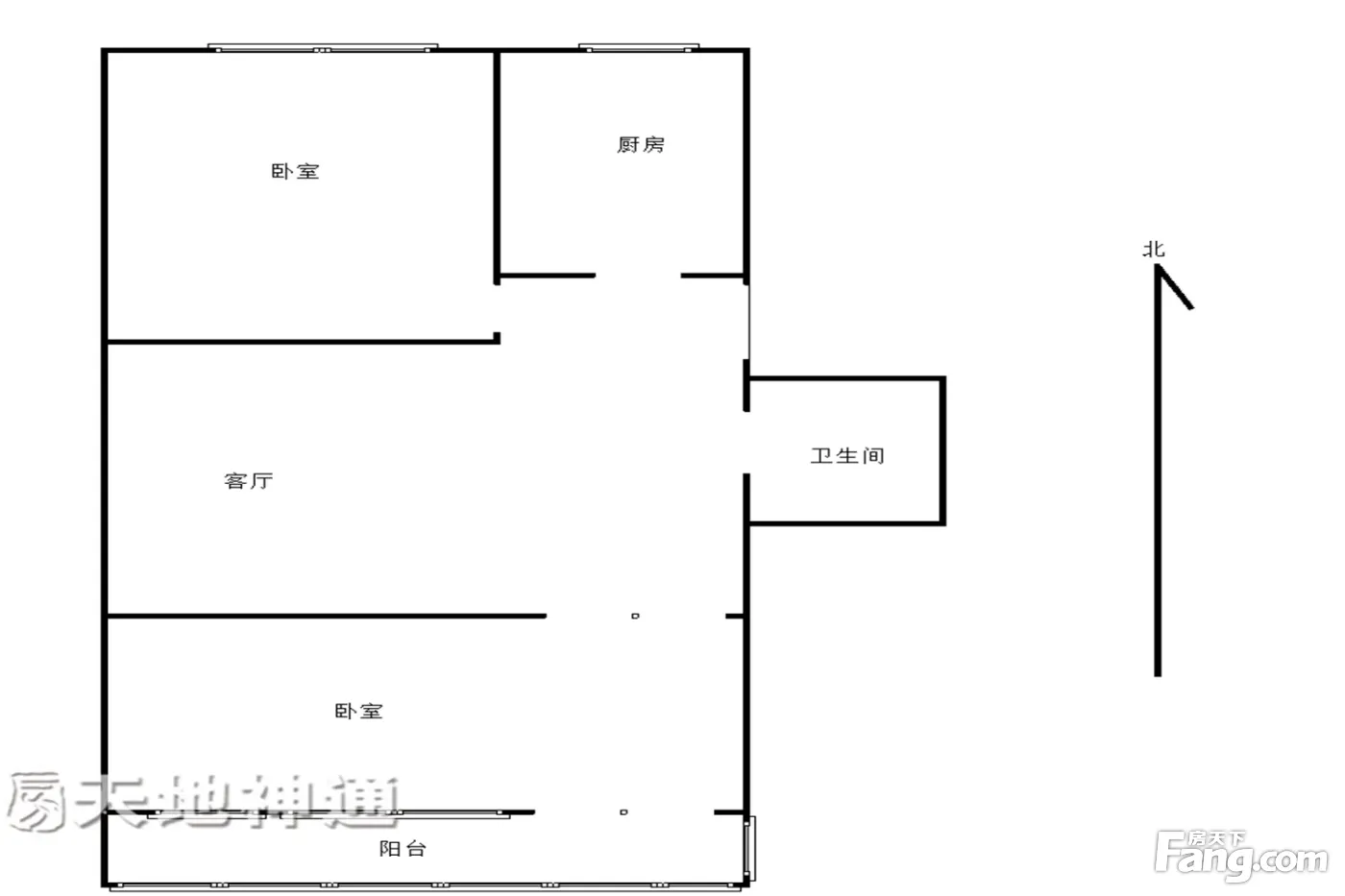
2室1厅1卫
户型
-
56.77㎡
建筑面积
买房加房产交流群,省钱不踩雷
3000+人正在热聊
加入群聊
-
单价
19024元/平米
- 挂牌价格解析
-
楼层
高层/5层
- 咨询楼层
-
套内
暂无数据
- 咨询套内使用面积
-
楼型
板楼
-
朝向
南北
-
装修
简装修
-
年代
2010
-
发布
2025-11-13
-
咨询总首付
首付约32.3万
首付税费及佣金情况 -
深度测评
小区青春路(怀柔-怀柔城区)
-
更多
楼户比、楼层高度、交易历史、抵押信息
房源描述(1)
-
核心卖点问经纪人
该房源位于青春路成熟社区,2010年建成的住宅楼,5层中的高层位置,南北朝向保证室内采光通风良好。56.77平米的实用面积规划为两室一厅一卫一厨一阳台的格局,满足基本居住需求。 房源为满五产权,简装修状态便于新业主按需改造。当前总价106万,折合单价18672元/平米,在怀柔城区具有较高性价比。小区周边生活配套完善,交通便利,是刚需购房者的优质选择。
周边配套
地址:怀柔区青春路人民防空办公室北侧
交通综合评分
查看全部5.0
“一般”
超过北京43.0%的小区
-
地铁公交
5.0
-
驾车出行
10.0
本月均价 22693元/m²
环比上月 下跌 1.24%
同比去年 下跌 5.9%
猜你喜欢
同小区其它房源
-
23899元/㎡
本月挂牌均价
-
0.21%
环比上月
买房加房产交流群,省钱不踩雷
3000+人正在热聊
加入群聊
- 免费咨询
- 专业服务
- 区域解读
- 户型分析
免责声明:房源信息由网站用户提供,其真实性、合法性由信息提供者负责,最终以政府部门登记备案为准。本网站不声明或保证内容之正确性和可靠性,购买该房屋时,请谨慎核查。入学情况仅凭历史经验总结,在此不承诺升学事宜。请您在签订合同之前,切勿支付任何形式的费用,以免上当受骗。


