南北通透利泽西园2室2厅
-
428万
总价
-
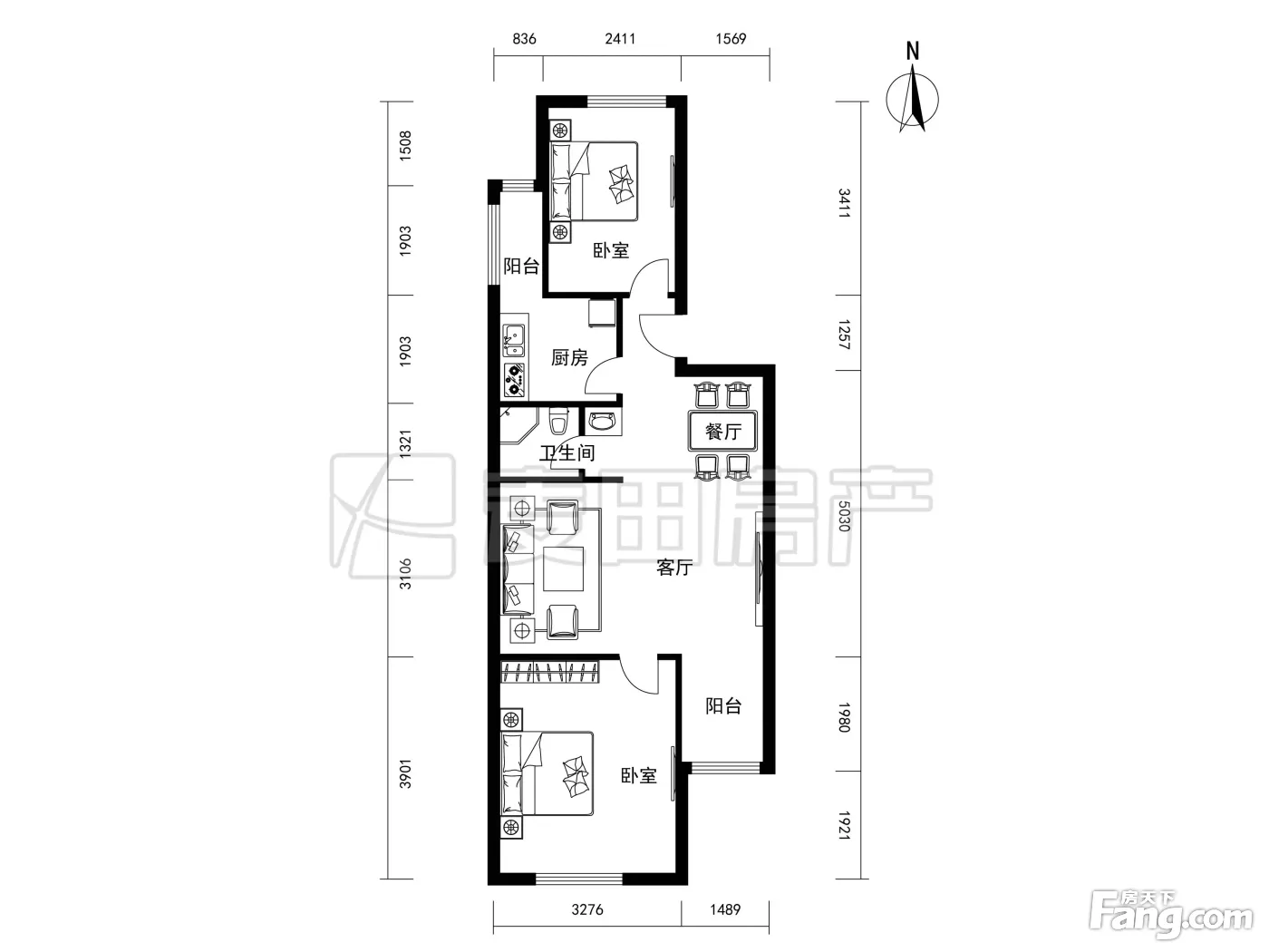
2室2厅1卫
户型
-
72㎡
建筑面积
买房加房产交流群,省钱不踩雷
3000+人正在热聊
-
单价
59444元/平米
- 挂牌价格解析
-
楼层
高层/6层
- 咨询楼层
-
套内
暂无数据
- 咨询套内使用面积
-
楼型
板楼
-
朝向
南北
-
装修
简装修
-
年代
1999
-
发布
2025-11-01
-
地铁
距14号线东湖渠站约367米
-
咨询总首付
首付约128.1万
首付税费及佣金情况 -
深度测评
小区利泽西园(朝阳-望京)
-
更多
楼户比、楼层高度、交易历史、抵押信息
房源描述(1)
-
核心卖点问经纪人
相信为您推荐的这套房子您一定会满意,赶快行动吧,先到先得! 房屋年代∶1999,面积∶72.0平方米,朝向∶南北 1. 小区配备高端物业管理,让你享受宾至如归的服务; 2. 小区人文素质高,是您的居家的绝佳选择; 3. 小区居住安静舒适,让您拥有高品质的生活环境; 4. 小区绿化率高,绿树成荫鸟语花香让您随时呼吸到新鲜空气。
-
小区配套问经纪人
利泽西园小区有6栋板楼和11栋塔楼组成,共分三期开发,其中包括小区内的两栋公寓楼雅特住区。于2000年左右建成入住、小区内有小学,超市,购物方便,周边有中小学,陈经伦中学、幼儿园、晨曦幼儿园、艺术幼儿园、综合商场、京客隆华润超市、银行、医院,紧靠望京六伯本商场,家乐福,京客隆、大中电器、华联商厦、交行等众多银行。
周边配套
交通综合评分
查看全部超过北京52.7%的小区
-
地铁公交
10.0
-
驾车出行
10.0
本月均价 58163元/m²
环比上月 下跌 1.51%
同比去年 下跌 12.13%
猜你喜欢
同小区其它房源
户型齐全,主打户型方正,明厨,主卧朝南二居
利泽西园户型主要有54平-153平的户型方正,明厨,主卧朝南的二居 、49平-71平的户型方正,明厨,客厅朝南的一居 、72平-144平的户型方正,明厨,主卧朝南的三居 。
*获取完整户型报告,同时会有免费语音讲解服务
-
60762元/㎡
本月挂牌均价
-
0.89%
环比上月
买房加房产交流群,省钱不踩雷
3000+人正在热聊
- 免费咨询
- 专业服务
- 区域解读
- 户型分析


