三轨交汇地铁双枢纽 京源十二年一贯制 找我成交您家电大礼
-
579万
总价
-
3室2厅2卫
户型
-
112㎡
建筑面积
买房加房产交流群,省钱不踩雷
3000+人正在热聊
-
单价
51696元/平米
- 挂牌价格解析
-
楼层
低层/11层
- 咨询楼层
-
套内
111㎡
- 咨询套内使用面积
-
楼型
板楼
-
朝向
南北
-
装修
精装修
-
年代
2026
-
发布
2025-10-25
-
地铁
暂无数据
-
咨询总首付
首付约270.4万
首付税费及佣金情况 -
深度测评
小区中海·长安源境(石景山-古城)
-
更多
楼户比、楼层高度、交易历史、抵押信息
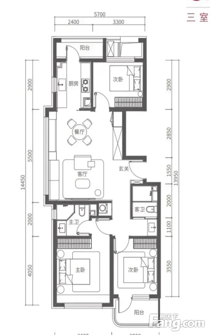
房源描述(1)
-
核心卖点问经纪人
中海·长安源境位于石景山首钢园区东南区,是2026年建成的品质住宅项目。这套112平米的南北通透三居室位于低楼层,总高11层,采光通风俱佳。精装修交付,省去装修烦恼,可直接拎包入住。 该房源为正规3室2厅2卫1厨格局,空间布局合理,功能分区明确。单价56250元/平,总价630万,在区域内具有较高性价比。项目所在的首钢园区是北京重点发展区域,未来发展潜力值得期待。
-
业主心态问经纪人
房东置换,诚心出售,可以再谈,欢迎看房,随时恭候。
-
小区配套问经纪人
小区地理位置佳,绿化环境优越整洁,居民素质高,物业管理完善,适宜居住
-
服务介绍问经纪人
本人做房产多年,一直本着专业的房产知识,为您服务,我会在短的时间内帮您买好满意的房子,不让您错失任何好房子,更不让您每天为买房的事烦心,欢迎随时拨打我电话。
-
税费分析房贷计算
关于本房的税费信息情况,请电话联系我,我将详细的为您讲解!
-
户型解读问经纪人
房屋拥有相对宽松的尺寸,布局通透,动静分离,设计豪华
周边配套
本月均价 53891元/m²
环比上月 下跌 7.12%
同比去年 持平 持平
户型齐全,主打客厅朝南,南北通透三居
中海·长安源境户型主要有108平-125平的客厅朝南,南北通透的三居 、145平-145平的客厅朝南,南北通透的四居 。
*获取完整户型报告,同时会有免费语音讲解服务
-
46156元/㎡
本月挂牌均价
-
1.8%
环比上月
买房加房产交流群,省钱不踩雷
3000+人正在热聊
- 免费咨询
- 专业服务
- 区域解读
- 户型分析

