天地神通 怀柔雁栖 育龙铭居 电梯房 客厅通阳台格局 两居室
-
127万
总价
-
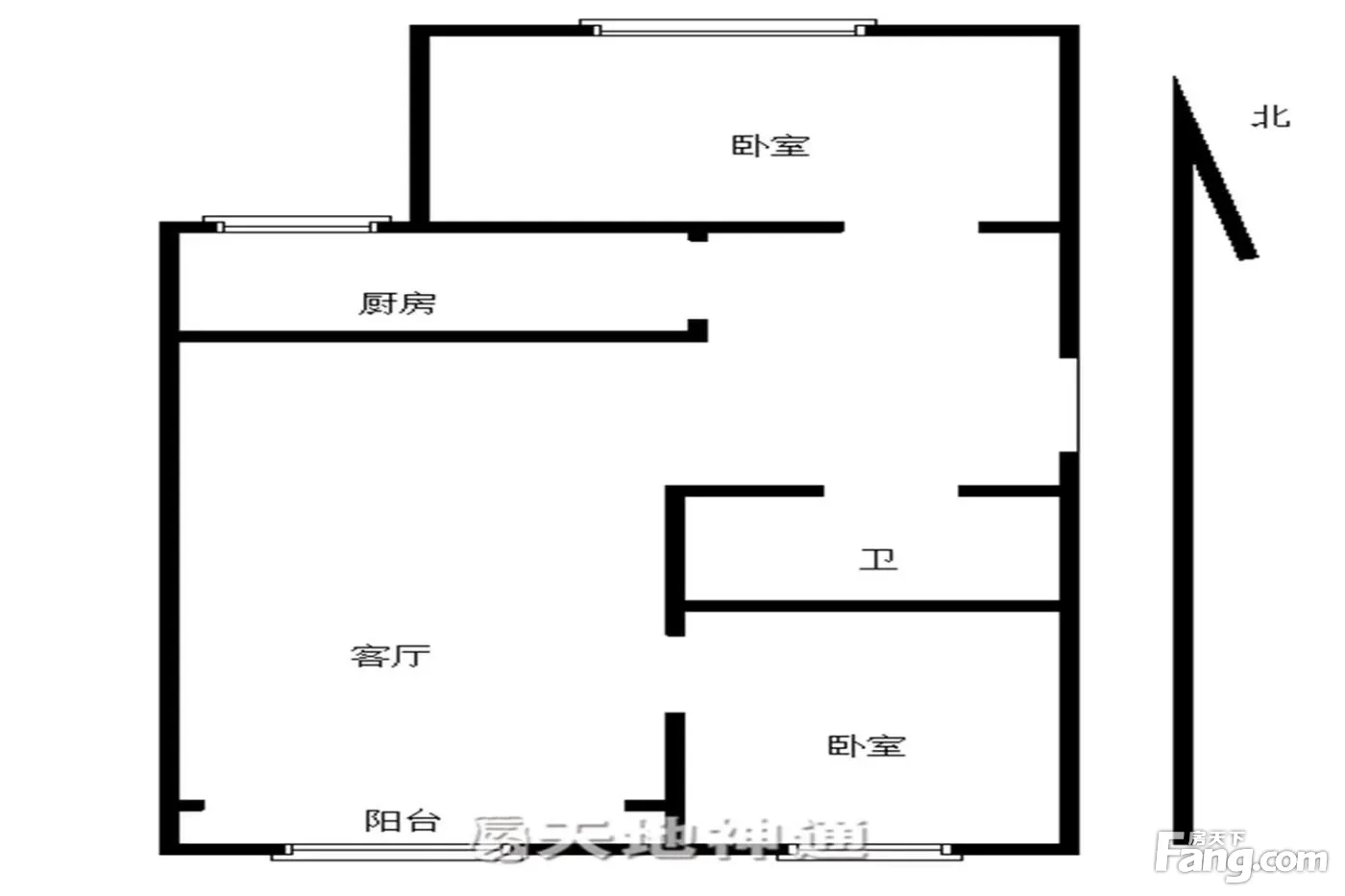
2室1厅1卫
户型
-
66.53㎡
建筑面积
买房加房产交流群,省钱不踩雷
3000+人正在热聊
-
单价
19089元/平米
- 挂牌价格解析
-
楼层
高层/9层
- 咨询楼层
-
套内
暂无数据
- 咨询套内使用面积
-
楼型
板楼
-
朝向
南北
-
装修
精装修
-
年代
2010
-
发布
2026-01-31
-
地铁
暂无数据
-
咨询总首付
首付约38.2万
首付税费及佣金情况 -
深度测评
小区育龙铭居(怀柔-雁栖)
-
更多
楼户比、楼层高度、交易历史、抵押信息
房源描述(1)
-
核心卖点问经纪人
这套位于育龙铭居小区的优质住宅,是2010年建成的精装修两居室,建筑面积66.53平米,南北通透的朝向保证了良好的采光和通风效果。作为高层住宅中的一套,所在楼栋总高9层,房本已满两年,交易税费优势明显,总价仅128万,折合单价19239元/平米,性价比十分突出。 户型设计非常合理,两室一厅一卫的格局搭配独立厨房和阳台,空间利用率高,精装修状态可直接拎包入住。小区地处怀柔雁栖乐园大街16号,周边环境宜人,生活配套完善,是追求品质生活的理想选择。这套房源无论是自住还是长期持有都是非常不错的选择。
周边配套
交通综合评分
查看全部超过北京10.2%的小区
-
地铁公交
5.0
-
驾车出行
9.0
本月均价 19825元/m²
环比上月 下跌 1.12%
同比去年 下跌 5.85%
猜你喜欢
同小区其它房源
-
27173元/㎡
本月挂牌均价
-
0.21%
环比上月
买房加房产交流群,省钱不踩雷
3000+人正在热聊
- 免费咨询
- 专业服务
- 区域解读
- 户型分析


