丰台 丽泽 二环外精装别墅,懋源璟岳 万柳桥西 地铁10号线
-
6900万
总价
-
6室4厅6卫
户型
-
620㎡
建筑面积
买房加房产交流群,省钱不踩雷
3000+人正在热聊
加入群聊
-
单价
111290元/平米
- 挂牌价格解析
-
楼层
4层
- 咨询楼层
-
套内
551.8㎡
- 咨询套内使用面积
-
楼型
独栋
-
朝向
南
-
装修
精装修
-
年代
2022
-
发布
2025-10-16
-
地铁
距房山线东管头南站约823米
-
咨询总首付
首付约2340.9万
首付税费及佣金情况 -
深度测评
小区懋源璟岳(丰台-玉泉营)
-
更多
楼户比、楼层高度、交易历史、抵押信息
房源描述(1)
-
核心卖点问经纪人
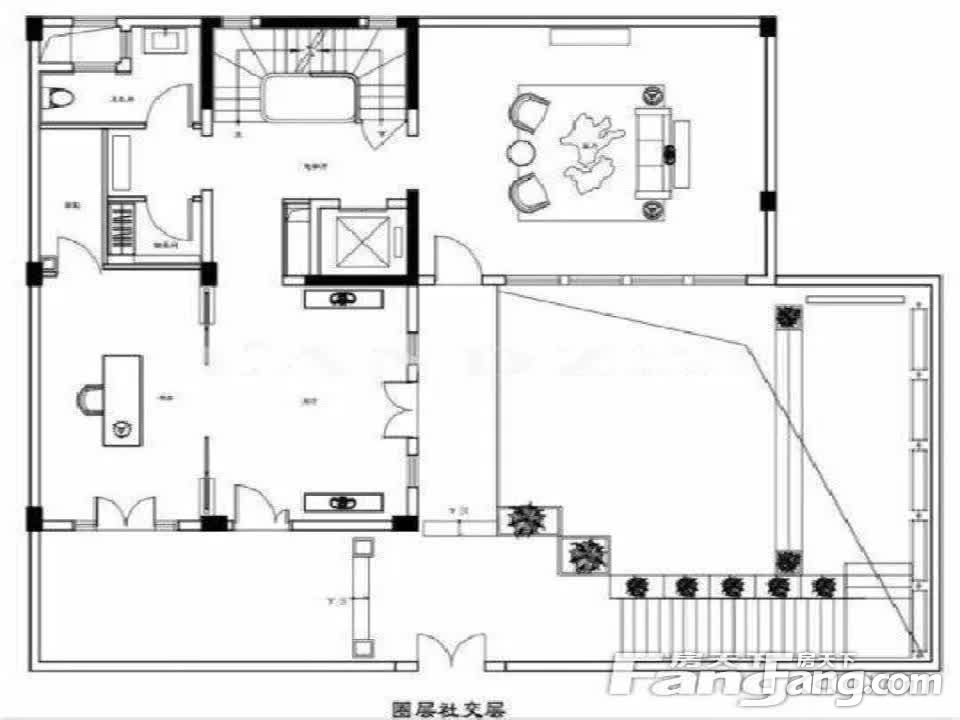
项目能看实房,楼体已经封顶 位置:西南三环内,丽泽商务区南,万柳桥西北300米。 交通:出门即是三环,800米即是地铁10号线纪家庙和首经贸地铁站,两站即是新机场航站楼。 项目有洋房、联排、合院的产品,合院共29套,精装修报价9000-1亿,地上三层,地下两层,地下二层4.8米,4.5米地下1层(宴会厅,厨房,客厅,庭院,卧室1,保姆间)。地上加地下庭院100多平(地上20-30㎡) 首层5米多高,有客厅,书房,衣帽间主卧室套房 地上二层,2间房 地上三层,4.5米,主卧室套房有阳台 现在有两套可以售的毛坯房565平使用730平6200万。620平使用780平。
-
业主心态问经纪人
国新每天都会做网络房源调整,网络推荐的房源都是信息真实有效。本小区内房屋产权干净、业主出后诚意度高,而且房屋品质好的房子,您可安心选房。
-
小区配套问经纪人
小区地理位置好,配套设施齐全,交通便利,居民素质高。
-
服务介绍问经纪人
感谢您的浏览,我们做全北京的豪宅,您可以通过以下3种方式联系我: ①下方微聊和电话,我随时在线 ②您可以直接“预约看房”,随时给您安排 ③电脑端右上方扫码就是我电话 再次感谢您的信任,
-
税费分析房贷计算
产权干净,费清晰,欢迎来电咨询该房屋详情,静候您的来电!
-
户型解读问经纪人
房屋户型方正,景观布局合理,设计实用,空间舒适,格局优越,采光通风良好
周边配套
地址:三环内 万柳桥内环辅路向西500米
-
54916元/㎡
本月挂牌均价
-
0.38%
环比上月
买房加房产交流群,省钱不踩雷
3000+人正在热聊
加入群聊
- 免费咨询
- 专业服务
- 区域解读
- 户型分析
免责声明:房源信息由网站用户提供,其真实性、合法性由信息提供者负责,最终以政府部门登记备案为准。本网站不声明或保证内容之正确性和可靠性,购买该房屋时,请谨慎核查。入学情况仅凭历史经验总结,在此不承诺升学事宜。请您在签订合同之前,切勿支付任何形式的费用,以免上当受骗。


