京北新盘,均价4万,85平精装三居室
-
306万
总价
-
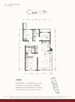
3室1厅1卫
户型
-
86㎡
建筑面积
买房加房产交流群,省钱不踩雷
3000+人正在热聊
-
单价
35581元/平米
- 挂牌价格解析
-
楼层
底层/18层
- 咨询楼层
-
套内
79㎡
- 咨询套内使用面积
-
楼型
板楼
-
朝向
南
-
装修
毛坯
-
年代
2022
-
发布
2025-10-02
-
地铁
暂无数据
-
咨询总首付
首付约90.2万
首付税费及佣金情况 -
深度测评
小区北京建工·嘉境里(昌平-沙河)
-
更多
楼户比、楼层高度、交易历史、抵押信息
房源描述(1)
-
核心卖点问经纪人
单价4万的项目,总价280万起的全屋满配精装PIUS精装悦己美宅!建面约74-154的两居—四居; 项目打造约2100㎡悦己中心、满足业主的日常生活需求;规划周边配套、幼小+全岭优教资源环伺。 交通出行京新和京藏双条高速出行,项目社区班车(规划中)约10地铁沙河高教园站,三站朱辛庄,五站西二旗,可无缝便捷换乘地铁8号线、13号线,便捷的交通体系!
-
业主心态问经纪人
建工集团倾力打造
-
小区配套问经纪人
配套:项目约5KM生活半径内玖耀里、隆兴购物广场、万科悦荟,直线距离约10km外超极合生汇、万达广场(朱辛庄)、海淀大悦城(建设中)等打造娱乐、购物、时尚为一体的都会商圈,多元化配套,围合繁盛生活领地,项目坐拥“四横三纵一轨”立体交通,近临京藏高速、北六环等高快速路,由京藏高速向南可快速链接上地、西二旗、清河、中关村等众多高新科技产业园区;此外,项目社区班车(规划中)约10地铁沙河高教园站,三站朱辛庄,五站西二旗,可无缝便捷换乘地铁8号线、13号线,便捷的交通体系,降低出行成本,工作与生活精彩从容切换。 四横:北六环、百沙路、定泗路、北清路 三纵:京藏高速、京新高速、南丰路
-
服务介绍问经纪人
我是白海涛,从事新房业务多年,对海淀,昌平,顺义,朝阳,丰台,大兴等区域新房项目熟悉,通过我家购买新房不收任何
-
税费分析房贷计算
契税+公共维修基金
-
户型解读问经纪人
房屋户型方正,景观布局合理,设计实用,空间舒适,格局优越,采光通风良好
周边配套
本月均价 34964元/m²
环比上月 下跌 0.66%
同比去年 下跌 13.45%
户型齐全,主打南北通透,全明格局,三开间朝南,主卧套间,干湿分离三居
北京建工·嘉境里户型主要有86平-105平的南北通透,全明格局,三开间朝南,主卧套间,干湿分离的三居 、125平-154平的南北通透,三开间朝南,主卧套间,U型厨房,明卫的四居 、74平-74平的户型方正,观景飘窗,开放厨房的二居 。
*获取完整户型报告,同时会有免费语音讲解服务
-
35724元/㎡
本月挂牌均价
-
0.64%
环比上月
买房加房产交流群,省钱不踩雷
3000+人正在热聊
- 免费咨询
- 专业服务
- 区域解读
- 户型分析

