旗胜家园 89平2居 南北向精装修 安静不临街
-
320万
总价
-
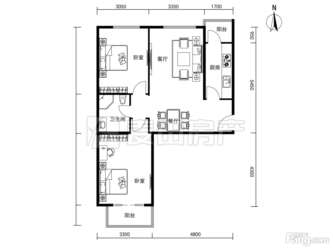
2室1厅1卫
户型
-
89㎡
建筑面积
买房加房产交流群,省钱不踩雷
3000+人正在热聊
-
单价
35955元/平米
- 挂牌价格解析
-
楼层
底层/16层
- 咨询楼层
-
套内
暂无数据
- 咨询套内使用面积
-
楼型
塔板结合
-
朝向
南北
-
装修
精装修
-
年代
2009
-
发布
2025-08-29
-
地铁
距8号线霍营站约521米
-
咨询总首付
首付约91.7万
首付税费及佣金情况 -
深度测评
小区旗胜家园(昌平-霍营)
-
更多
楼户比、楼层高度、交易历史、抵押信息
房源描述(1)
-
核心卖点问经纪人
相信为您推荐的这套房子您一定会满意,赶快行动吧,先到先得! 房屋年代∶2009,面积∶89.0平方米,朝向∶南北 1. 小区配备高端物业管理,让你享受宾至如归的服务; 2. 小区人文素质高,是您的居家的绝佳选择; 3. 小区居住安静舒适,让您拥有高品质的生活环境; 4. 小区绿化率高,绿树成荫鸟语花香让您随时呼吸到新鲜空气。
-
业主心态问经纪人
业主换房,诚意出售,看房比较方便,价格上可以商量,想尽快出售,已看到合适的房子。
-
小区配套问经纪人
小区处繁华热闹地段,交通方便,周围建筑设备齐全。环境优雅,物业管理完善,住户素质高。房型方正、大气,南北通透,阳光充足,房型正气,小区治安和物业管理也比较到位。室内环境宽敞明亮,户型设计南北通透,居室采光充足,视眼宽广,适合长期自祝小区内部绿化多,内部环境典雅幽静。项目以实用、舒适、分区合理为整体规划原则,户型选择丰富,居住实用率高。小区整体体现现代简约风格,采用中间高、东西低的建筑高度,使小区建筑形态层次分明,富有强烈韵律感。是集健康、文化教育于一体的低密度成熟社区。小区内部环境整洁干净,各种
周边配套
交通综合评分
查看全部超过北京43.9%的小区
-
地铁公交
10.0
-
驾车出行
10.0
本月均价 40051元/m²
环比上月 上涨 4.3%
同比去年 下跌 9.42%
猜你喜欢
同小区其它房源
户型齐全,主打户型方正,明厨,双卧朝南,主卧朝南二居
旗胜家园户型主要有62平-91平的户型方正,明厨,双卧朝南,主卧朝南的二居 、85平-90平的户型方正,双阳台,双卧朝南的三居 、62平-89平的户型方正,主卧朝南的一居 。
*获取完整户型报告,同时会有免费语音讲解服务
-
35489元/㎡
本月挂牌均价
-
1%
环比上月
买房加房产交流群,省钱不踩雷
3000+人正在热聊
- 免费咨询
- 专业服务
- 区域解读
- 户型分析


