奥森公园南门 豪华装修四居室 东边户 独梯独户 餐客分离
-
2520万
总价
-
5室2厅2卫
户型
-
238㎡
建筑面积
买房加房产交流群,省钱不踩雷
3000+人正在热聊
-
单价
105882元/平米
- 挂牌价格解析
-
楼层
低层/9层
- 咨询楼层
-
套内
暂无数据
- 咨询套内使用面积
-
楼型
板楼
-
朝向
南北
-
装修
豪华装修
-
年代
2009
-
发布
2025-10-04
-
地铁
暂无数据
-
咨询总首付
首付约855.6万
首付税费及佣金情况 -
深度测评
小区国奥村(朝阳-奥林匹克公园)
-
更多
楼户比、楼层高度、交易历史、抵押信息
房源描述(1)
-
核心卖点问经纪人
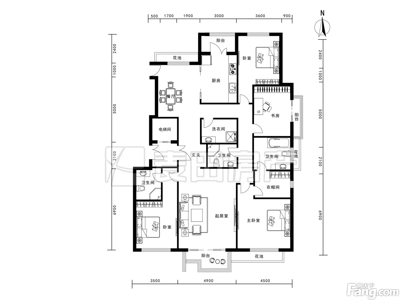
1、户型:国奥村B4,2层东边户南北通透四居室,双卧客厅南向,眼镜户型,主卧室套房设计,独立卫生间和步入式衣帽间,卫生间东向窗户;独立洗衣间和储物间,餐客厅分离,厨房方正,带储物阳台,楼间距大,采光通风无影响。 2、装修:业主二次精装修,现代风格,保持的特别好 3、环境:完全人车分流,封闭管理,物业负责,环境很好,人文素质高,绿化覆盖高40%,南方园林风格,安静宜居。 4、位置:位于奥林匹克森林公园南门,8号线林萃桥和15号线奥林匹克公园站,环境好。生活配套成熟,衣食出行便利齐全。 5、与周边小区对比:奥森西门的平层别墅,具备稀/缺性。小区40%的绿化,森林环绕,1.6的容积/率,物业费3.5元。小区有会所游泳池和餐厅。
-
业主心态问经纪人
我面访过业主,业主诚意出售,使我们成交过的老客户,对我们也很信任,报价合理,价格可谈,期待尽快出手,
-
小区配套问经纪人
北侧紧邻气势恢宏的奥林匹克森林公园,122公顷龙形水系相当于3个北海公园水面,有效净化区域空气,赋予国奥村得天独厚的高品质居住环境。居住人群大多是中科院的研究人员和大学教授等高素质人群。
-
服务介绍问经纪人
我服务奥林匹克森林公园周边业主9年,熟悉周边产品,秉承公司利他文化,以诚待人,保证服务交易安全,高效,透明。赢得客户信任是我持续追求的方向。全北京新房都有合作,享受团购优惠价。
-
税费分析房贷计算
我看过房本原件,房本干净,产权清晰,只有契税,详情请咨询我。
-
户型解读问经纪人
国奥村B4,2层东边户南北通透四居室,双卧客厅南向,眼镜户型,主卧室套房设计,独立卫生间和步入式衣帽间,卫生间东向窗户;独立洗衣间和储物间,餐客厅分离,厨房方正,带储物阳台,楼间距大,采光通风无影响。
周边配套
交通综合评分
查看全部超过北京73.9%的小区
-
地铁公交
10.0
-
驾车出行
10.0
本月均价 115510元/m²
环比上月 下跌 0.73%
同比去年 上涨 1.38%
猜你喜欢
同小区其它房源
-
72519元/㎡
本月挂牌均价
-
1.38%
环比上月
买房加房产交流群,省钱不踩雷
3000+人正在热聊
- 免费咨询
- 专业服务
- 区域解读
- 户型分析


