新城国际三期 全新装修 3室3卫 拎包入住 超高层 水暖
-
1799万
总价
-
3室2厅3卫
户型
-
194.54㎡
建筑面积
买房加房产交流群,省钱不踩雷
3000+人正在热聊
-
单价
92475元/平米
- 挂牌价格解析
-
楼层
高层/36层
- 咨询楼层
-
套内
暂无数据
- 咨询套内使用面积
-
楼型
塔楼
-
朝向
西北
-
装修
豪华装修
-
年代
2007
-
发布
2026-01-09
-
地铁
距10号线金台夕照站约678米
-
咨询总首付
首付约611万
首付税费及佣金情况 -
深度测评
小区新城国际(朝阳-CBD)
-
更多
楼户比、楼层高度、交易历史、抵押信息
房源描述(1)
-
核心卖点问经纪人
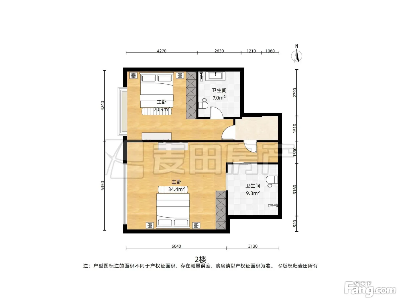
这个房子是《新城国三期》的,具备双供暖的一套正规3居室,并且是超高楼层,视野非常开阔,而且是全新装修,房况 【房源详情】: (1)、新城国际是国贸CBD,一个生活配套非常齐全的明星楼盘 (2)、这个房子是新城国际三期的,2007年建成入住,具备双供暖 (3)、房子面积194平米,正规的3室2厅3卫1厨,复式户型,动静分离 (4)、房子朝西向,客厅和3个卧室朝西,下午的采光 (5)、另外,房子在次顶层,超高楼层带来的是非常开阔的视野景观 (6)、房子有水暖,并且是全新装修的,房况特别好,完全可拎包入住 (7)、房子上下功能分区,能做到楼上楼下互不打扰,很私密安静
-
业主心态问经纪人
【新房】:我司代理北京近100个新房项目,均可为您介绍,带您看。您通过我司看新房,既“无居间费”,又省去自己找房的麻烦,还可享受一定团购优惠,并有我司第三方保障。 _ 【二手房】:北京核心区(东二环:建国门,东直门,国贸CBD等),豪宅区(东三环:太阳宫,三元桥,朝阳公园等),中端改善区(东四环:四惠,百子湾,青年路等),均是我的主要业务区域。 _ 【买房找对人】:欢迎您告诉我您的购房需求,我尽心尽力为您服务。
-
小区配套问经纪人
新城国际是一个开放包容和私密性共存的社区,位于东三环内CBD核心区,具有地段不可复制性,未来该区域不会再有纯住宅出现,CBD核心地段,商业配套,医疗配套,教育配套齐全。紧邻世贸天阶和地标建筑-国贸三期,全球五大行物业太平戴维斯24管家服务。紧邻CBD绿地CBD中心花园,带有清华附小学区。央视新址地标旁,中国尊尽在眼前。
-
服务介绍问经纪人
【个人简介】: 我叫戴邹洋,大学本科毕业,于2012年入司,2015年任团队业务经理多年,有丰富的高端房产交易经验。十几年期间,服务过众多高端业主与客户,希望能让您有更好的购房体验。
-
税费分析房贷计算
【二手房主要交易税费】: (1)、值税,增值附加税 (2)、个人所得税 (3)、契税 _ 根据房子的计税指导价不同,原值不同,是否满2年,是否满5年,业主家庭在京是否仅此一套住房,以及买方是首套购房,还是二套购房,以及买方是全款还是贷款,若贷款则需要贷多少......等等信息的不同,而使得每一套房子的税费的多少不一样。 _ 【再次建议您】: (一)、找我司,我司在北京有300多家直营店,主做中高端楼盘,房源丰富且有大平台保障; (二)、找资深有经验的房产经纪人,既懂哪些产品符合您的需求,又让您再所有流程环节中,感觉清晰明了,安全有保障。
周边配套
交通综合评分
查看全部超过北京20.6%的小区
-
地铁公交
10.0
-
驾车出行
10.0
-
城际交通
4.5
本月均价 97963元/m²
环比上月 下跌 0.77%
同比去年 下跌 8.77%
猜你喜欢
同小区其它房源
户型齐全,主打户型方正,明卫,客厅朝南,主卧朝南二居
新城国际公寓户型主要有76平-139平的户型方正,明卫,客厅朝南,主卧朝南的二居 、188平-192平的明卫,独立衣帽间,客厅朝南的三居 。
*获取完整户型报告,同时会有免费语音讲解服务
-
74381元/㎡
本月挂牌均价
-
0.49%
环比上月
买房加房产交流群,省钱不踩雷
3000+人正在热聊
- 免费咨询
- 专业服务
- 区域解读
- 户型分析


