花市枣苑四居室 全天采光 户型方正无浪费 出行便利 新世界
-
2100万
总价
-
4室2厅3卫
户型
-
286.17㎡
建筑面积
买房加房产交流群,省钱不踩雷
3000+人正在热聊
-
单价
73383元/平米
- 挂牌价格解析
-
楼层
中层/19层
- 咨询楼层
-
套内
暂无数据
- 咨询套内使用面积
-
楼型
塔楼
-
朝向
南
-
装修
豪华装修
-
年代
2003
-
发布
2026-01-31
-
地铁
距7号线广渠门内站约710米
-
咨询总首付
首付约712.6万
首付税费及佣金情况 -
深度测评
小区花市枣苑(东城-东花市)
-
更多
楼户比、楼层高度、交易历史、抵押信息
房源描述(1)
-
核心卖点问经纪人
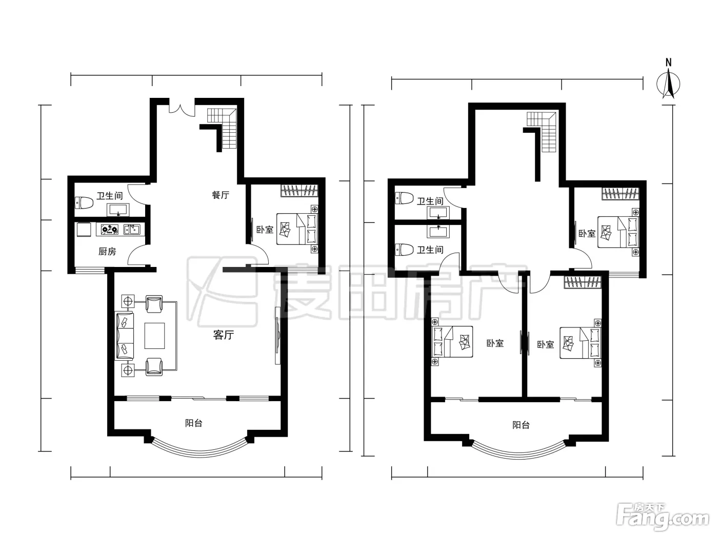
花市枣苑4居室 户型:4室2厅1厨3卫1阳台 面积:286.17 朝向:南 相信为您推荐的这套房子您一定会满意,赶快行动吧,先到先得! 房屋年代∶2004年,房屋面积∶286.17平方米,朝向∶南 1. 小区配备良好物业管理,让你享受宾至如归的服务; 2. 小区人文素质高,是您的居家的品质选择; 3. 小区环境安静舒适,让您拥有高品质的生活环境; 4. 小区绿化高,绿树成荫鸟语花香让您随时呼吸到新鲜空气。 房子是小区里经典的户型,没有浪费空间!小区周围可以购物! 我是一名普通的经纪人,很喜欢这份工作,会尽力让您找到自己满意的房源,如果您有需求,欢迎来电,我将努力为您解答问题! (经纪人的我陪伴您轻松置业)本人手机2时在线 真实的照片,真实价格、真实的房源,实际比照片效果要好.的源 照片真实 业主心态 业主诚心出售此房,欢迎您看房,如需了解其他信息请与我联系。 服务介绍 感谢您一直看到这里,我相信您能看到这里也是诚心买房。本人从事房地产多年,踏踏实实做事,稳稳当当做人!为您提供专业的知识,以及后期服务。不是您没有您称心如意的房子!也不是您没有您满意的价格!而是,没有遇到为您全力以赴的房产经纪人!用行动证明您的选择没有错,让您买房省时、省心、省力!不一样的服务给你带来不一样的购房体验!
-
小区配套问经纪人
在社区的建设上,花市枣苑既秉承了东方神韵,又吸收了西方造园的精华,拥有超大规模主题园林——中心绿地占地近8000平方米,数十株成年树木,聚而为林,拱卫800余年酸枣树王神木,树木葱郁,苍冠如盖;景区之间分布不同的植物,环境错落有致、旷奥适宜;多层次植物互相搭配,使园林季节特征鲜明,并保持了季节上的延续性;小径直接步入园林,景观空间内灵活摆放各种式样的座椅,人与自然十分亲近。
周边配套
交通综合评分
查看全部超过北京67.9%的小区
-
地铁公交
10.0
-
城际交通
4.5
本月均价 93965元/m²
环比上月 下跌 0.46%
同比去年 下跌 10.38%
猜你喜欢
同小区其它房源
户型齐全,主打明厨,双阳台,明卫二居
花市枣苑户型主要有78平-189平的明厨,双阳台,明卫的二居 、96平-185平的户型方正,客厅朝南,双阳台的三居 、45平-111平的户型方正,明厨,客厅朝南的一居 。
*获取完整户型报告,同时会有免费语音讲解服务
-
83585元/㎡
本月挂牌均价
-
2.27%
环比上月
买房加房产交流群,省钱不踩雷
3000+人正在热聊
- 免费咨询
- 专业服务
- 区域解读
- 户型分析

