爱这城2室2厅精装修
-
828万
总价
-
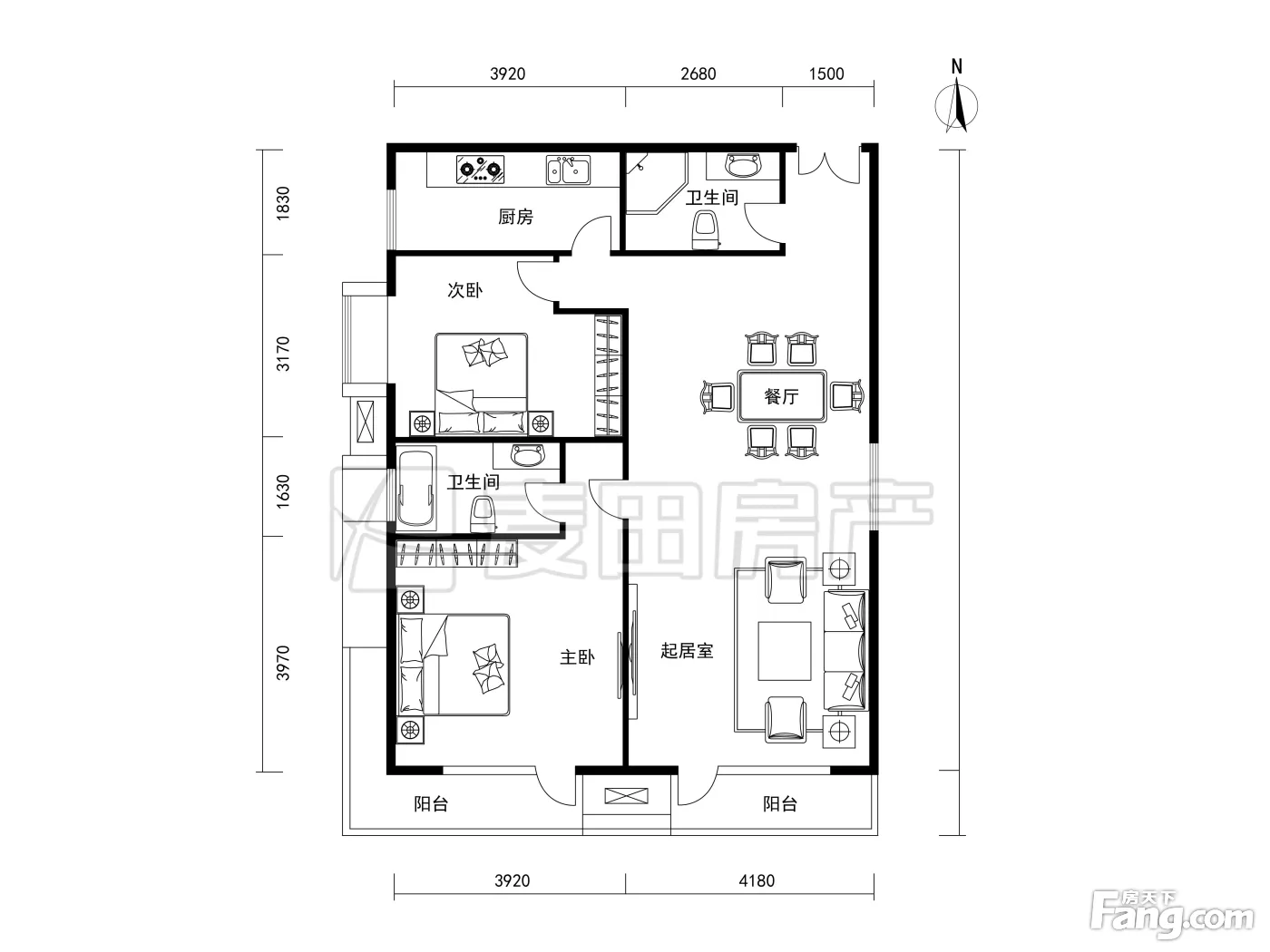
2室2厅2卫
户型
-
113.44㎡
建筑面积
买房加房产交流群,省钱不踩雷
3000+人正在热聊
加入群聊
-
单价
72990元/平米
- 挂牌价格解析
-
楼层
中层/20层
- 咨询楼层
-
套内
暂无数据
- 咨询套内使用面积
-
楼型
板楼
-
朝向
西南
-
装修
精装修
-
年代
2008
-
发布
2025-10-23
-
地铁
距1号线(八通线)四惠东站约1032米
-
咨询总首付
首付约442.7万
首付税费及佣金情况 -
深度测评
小区爱这城(朝阳-四惠)
-
更多
楼户比、楼层高度、交易历史、抵押信息
房源描述(1)
周边配套
地址:北京市朝阳区朝阳路十里堡甲1号院、乙2号院
交通综合评分
查看全部8.2
“较好”
超过北京98.4%的小区
-
地铁公交
10.0
-
驾车出行
10.0
-
城际交通
4.0
本月均价 65582元/m²
环比上月 下跌 3.13%
同比去年 下跌 10.91%
猜你喜欢
同小区其它房源
户型齐全,主打独立衣帽间,明卫,明厨二居
爱这城户型主要有68平-120平的独立衣帽间,明卫,明厨的二居 、91平-171平的户型方正,明厨,独立衣帽间,双卧朝南的三居 、59平-107平的明厨,客厅朝南,主卧朝南的一居 。
*获取完整户型报告,同时会有免费语音讲解服务
-
45590元/㎡
本月挂牌均价
-
3.24%
环比上月
买房加房产交流群,省钱不踩雷
3000+人正在热聊
加入群聊
- 免费咨询
- 专业服务
- 区域解读
- 户型分析
免责声明:房源信息由网站用户提供,其真实性、合法性由信息提供者负责,最终以政府部门登记备案为准。本网站不声明或保证内容之正确性和可靠性,购买该房屋时,请谨慎核查。入学情况仅凭历史经验总结,在此不承诺升学事宜。请您在签订合同之前,切勿支付任何形式的费用,以免上当受骗。


