新房推荐:三环丽泽!7种户型、2室872万,价格详情,看描述
-
2070万
总价
-
5室2厅3卫
户型
-
225㎡
建筑面积
买房加房产交流群,省钱不踩雷
3000+人正在热聊
-
单价
92000元/平米
- 挂牌价格解析
-
楼层
低层/6层
- 咨询楼层
-
套内
224㎡
- 咨询套内使用面积
-
楼型
板楼
-
朝向
南北
-
装修
精装修
-
年代
2024
-
发布
2025-09-12
-
地铁
距9号线丰台东大街站约559米
-
咨询总首付
首付约702.8万
首付税费及佣金情况 -
深度测评
小区懋源煜泽台(丰台-七里庄)
-
更多
楼户比、楼层高度、交易历史、抵押信息
房源描述(1)
-
核心卖点问经纪人
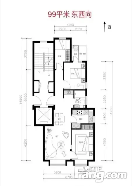
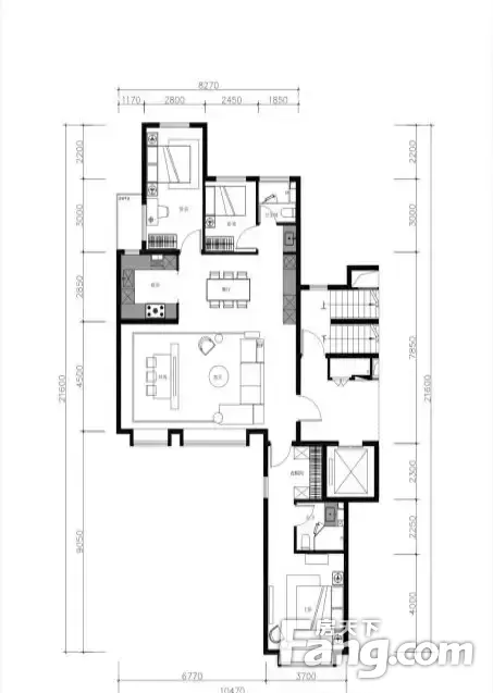
网站温馨提示:在线咨询,消息可能会延迟,可选择打电话咨询,24在线接听 在售户型信息: 【建面99㎡2居】1200万,2室2厅1卫, 东·西朝向, (限套优惠872万) 【建面165㎡3居】1800万,3室2厅2卫, 南·北朝向,(限套优惠1636万) 【建面112-116㎡3居】1350万,3室2厅1卫, 东·西朝向,(限套优惠993万) 【建面179㎡4居】2100万,4室2厅3卫, 南·北朝向,(限套优惠1896万) 【建面199㎡4居】2500万,4室2厅3卫, 南·北朝向,(限套优惠2070万) 【建面225㎡5居】2700万,5室2厅3卫, 南·北朝向,(预约看房有优惠) 【建面229㎡5居】2900万,5室2厅3卫, 南·北朝向,(预约看房有优惠) 1、丰台政府街:约1公里半径内集聚丰台区政府、中共丰台区委员会、丰台区质量技术监督局、档案局、生态环境局、法院执行局、丰台区教委、军政大院等多所政务机构. 2、丽泽商务区(FBD):丽泽金融商务区是北京三环内 后一块成规模、整体开发的热土。整体规划是由中央批复、北京市政府重点打造的 、全球性的金融商务区。 丽泽金融商务区总建筑规模约950万平米,高起点、高站位、高标准的规划建设,丽泽势必将成为新亚洲金融中心。 3、丰台站TOD:总规模17站台32线,建筑面积约40万平方米,是我国 座采用高速、普速客运车场重叠布置的特大型客站,呈现顶层跑高铁、地面跑普速、地下通地铁的独特布局
-
业主心态问经纪人
欢迎看房 随时恭候。
-
小区配套问经纪人
小区地理位置佳,绿化环境优越整洁,居民素质高,物业管理完善,适宜居住
-
服务介绍问经纪人
本人做房产多年,一直本着专业的房产知识,为您服务,我会在短的时间内帮您买好满意的房子,不让您错失任何好房子,更不让您每天为买房的事烦心,欢迎随时拨打我电话
-
税费分析房贷计算
关于本房的税费信息情况,请电话联系我,我将详细的为您讲解
-
户型解读问经纪人
房屋拥有相对宽松的尺寸,布局通透,动静分离,设计豪华
周边配套
交通综合评分
查看全部超过北京0.0%的小区
-
地铁公交
10.0
-
驾车出行
10.0
-
城际交通
5.0
本月均价 85068元/m²
环比上月 下跌 7.41%
同比去年 下跌 18.75%
猜你喜欢
同小区其它房源
-
53989元/㎡
本月挂牌均价
-
1.33%
环比上月
买房加房产交流群,省钱不踩雷
3000+人正在热聊
- 免费咨询
- 专业服务
- 区域解读
- 户型分析

