远见名苑2室1厅精装修
-
669万
总价
-
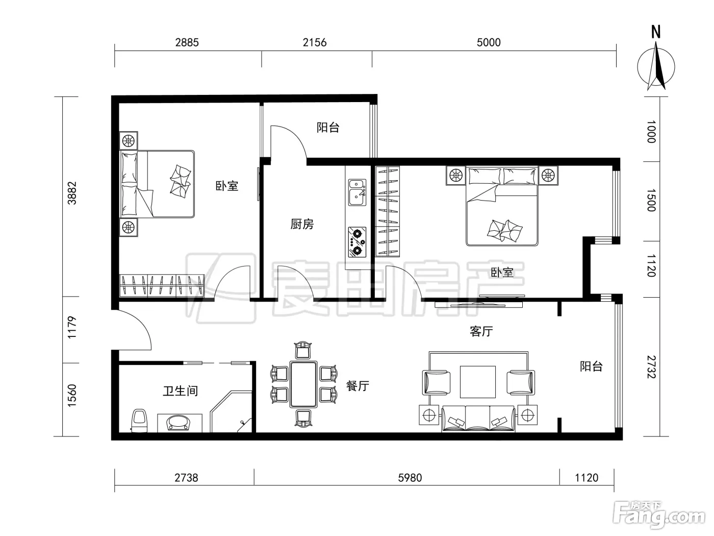
2室1厅1卫
户型
-
83.1㎡
建筑面积
买房加房产交流群,省钱不踩雷
3000+人正在热聊
-
单价
80505元/平米
- 挂牌价格解析
-
楼层
低层/26层
- 咨询楼层
-
套内
暂无数据
- 咨询套内使用面积
-
楼型
塔楼
-
朝向
东
-
装修
精装修
-
年代
2005
-
发布
2025-11-16
-
地铁
距7号线达官营站约619米
-
咨询总首付
首付约281.4万
首付税费及佣金情况 -
深度测评
小区远见名苑(西城-广安门)
-
更多
楼户比、楼层高度、交易历史、抵押信息
房源描述(1)
-
核心卖点问经纪人
相信为您推荐的这套房子您一定会满意,赶快行动吧,先到先得! 房屋年代∶2005,面积∶83.16平方米,朝向∶东 1. 小区配备高端物业管理,让你享受宾至如归的服务; 2. 小区人文素质高,是您的居家的绝佳选择; 3. 小区居住安静舒适,让您拥有高品质的生活环境; 4. 小区绿化率高,绿树成荫鸟语花香让您随时呼吸到新鲜空气。
-
小区配套问经纪人
远见名苑座落于宣武区广安门立交桥西800米路南总建筑面积3.8万平米,东邻广安门华联商厦,西邻整治一新的莲花河主流,望山临水,都市的喧闹与匆忙涌动至此即过渡为平和自然的人文气息。马连道商业街,复圈,广安商圈环绕四周,二环,三环,两广大街贯通而过。向西与京石高速公路相通,南与京开高速公路相接,北边与的交通枢纽北京西客站形成一个立体交通网络。
周边配套
交通综合评分
查看全部超过北京9.3%的小区
-
地铁公交
10.0
-
驾车出行
10.0
-
城际交通
4.5
本月均价 86789元/m²
环比上月 上涨 0.54%
同比去年 下跌 8.8%
猜你喜欢
同小区其它房源
-
81703元/㎡
本月挂牌均价
-
2.1%
环比上月
买房加房产交流群,省钱不踩雷
3000+人正在热聊
- 免费咨询
- 专业服务
- 区域解读
- 户型分析


