(临湖知底价)临150 宽湖水,占地4000多,视野无遮挡
-
30000万
总价
-
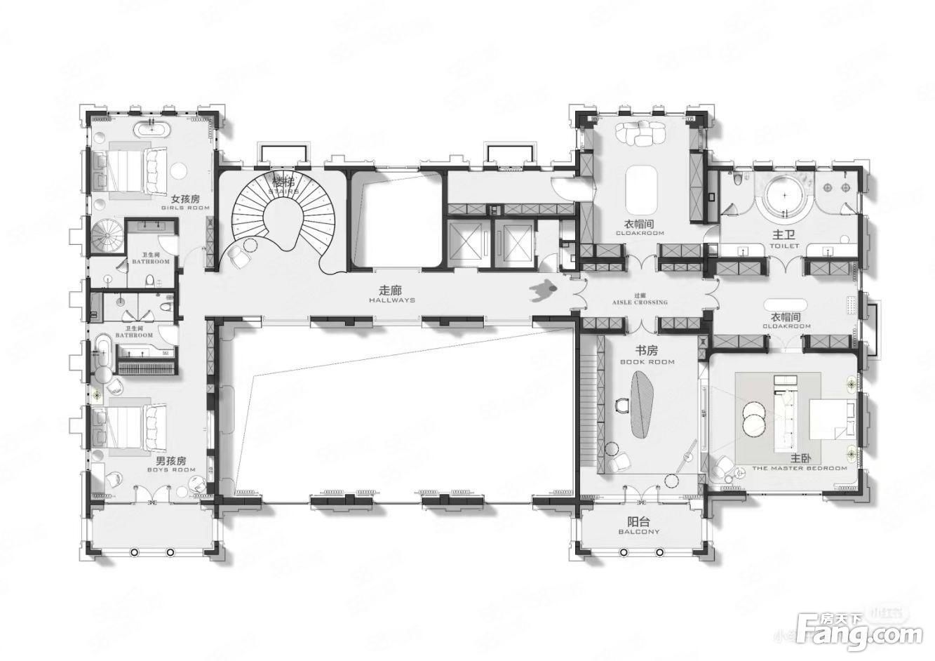
7室5厅1卫
户型
-
2077㎡
建筑面积
买房加房产交流群,省钱不踩雷
3000+人正在热聊
加入群聊
-
单价
144439元/平米
- 挂牌价格解析
-
楼层
4层
- 咨询楼层
-
套内
1806.99㎡
- 咨询套内使用面积
-
楼型
独栋
-
朝向
南
-
装修
精装修
-
年代
2017
-
发布
2025-01-11
-
地铁
暂无数据
-
咨询总首付
首付约9921.8万
首付税费及佣金情况 -
深度测评
小区远洋LAVIE(朝阳-孙河)
-
更多
楼户比、楼层高度、交易历史、抵押信息
房源描述(1)
-
核心卖点问经纪人
【本上面积】:2077㎡ 【实得面积】:3000㎡ 【此房格局】:前三后四 【院儿面积】:约3500㎡ 【当前价格】:30000W 【房源特点】: ①价格优势: a.此排房源一手原购置在2.个小目标左右,此房做了土建现2.8; b.社区同户型三期在售一套: 房本2100,绿化5000,水系宽78m,3.5个目标; ②产品优势: a.社区大户型南排临湖的房源24户,出房量少,此房朝向正,临水系宽; b.四期是17年交房的次新盘,房龄更新,户型更好
-
业主心态问经纪人
社区共诚意在售11套房源,如果您感兴趣的话可以随时私信我
-
小区配套问经纪人
小区居民素质高,配套设施齐全,地理位置好,交通便利。
-
服务介绍问经纪人
环球中国苏丽莉,专注深耕高端地产服务领域。业务涵盖别墅、四合院、独栋商业酒店及土地等,十多年来凭借专业能力和对市场的精准把握,为众多客户实现了理想的地产投资与居住方案。期待成为您房产投资居住的好帮手!
-
税费分析房贷计算
产权干净,税费清晰,欢迎来电咨询该房屋详情,静候您的来电!
周边配套
地址:机场高速路苇沟出口附近
交通综合评分
查看全部6.2
“较好”
超过北京9.3%的小区
-
地铁公交
8.0
-
驾车出行
10.0
猜你喜欢
同小区其它房源
-
69843元/㎡
本月挂牌均价
-
1.75%
环比上月
买房加房产交流群,省钱不踩雷
3000+人正在热聊
加入群聊
- 免费咨询
- 专业服务
- 区域解读
- 户型分析
免责声明:房源信息由网站用户提供,其真实性、合法性由信息提供者负责,最终以政府部门登记备案为准。本网站不声明或保证内容之正确性和可靠性,购买该房屋时,请谨慎核查。入学情况仅凭历史经验总结,在此不承诺升学事宜。请您在签订合同之前,切勿支付任何形式的费用,以免上当受骗。


