聚焦,富力爱丁堡,全南大二居,客厅双卧朝南,高性价比
-
1419万
总价
-
2室1厅2卫
户型
-
153㎡
建筑面积
买房加房产交流群,省钱不踩雷
3000+人正在热聊
-
单价
92745元/平米
- 挂牌价格解析
-
楼层
低层/22层
- 咨询楼层
-
套内
152㎡
- 咨询套内使用面积
-
楼型
板楼
-
朝向
南
-
装修
精装修
-
年代
2005
-
发布
2026-01-08
-
地铁
距10号线团结湖站约536米
-
咨询总首付
首付约469.5万
首付税费及佣金情况 -
深度测评
小区富力爱丁堡(朝阳-工体)
-
更多
楼户比、楼层高度、交易历史、抵押信息
房源描述(1)
-
核心卖点问经纪人
此房是我司在《富力爱丁堡》主推聚焦的一套“”2居室,而且全南向,朝向好,采光好 _ 【房源详情】: (1)、富力爱丁堡是位于东三环内,闹中取静的封闭式,社区 (2)、此房面积153平米,全南向2居室,户型格局好,方正 (3)、客厅和两卧室朝南,全天采光好,80%,公摊小 (4)、此房单价低,总价低,性价比高的一套2居,诚意出售
-
业主心态问经纪人
【新房】:我司代理北京近100个新房项目,均可为您介绍,带您看。您通过我司看新房,既“无居间费”,又省去自己找房的麻烦,还可享受一定团购优惠,并有我司第三方保障。 _ 【二手房】:北京核心区(东二环:建,东直门,国贸CBD等),豪宅区(东三环:太阳宫,三元桥,朝阳公园等),中端改善区(东四环:四惠,百子湾,青年路等),均是我的主要业务区域。 _ 【买房找对人】:欢迎您告诉我您的购房需求,我尽心尽力为您服务。
-
小区配套问经纪人
小区地理位置好,配套设施齐全,交通便利,居民素质高。
-
服务介绍问经纪人
【个人简介】: 我叫戴邹洋,大學本科毕业,于2012年入司,2015年任团队业务经理多年,有丰富的房产交易经验。十几年期间,服务过众多业主与客户,希望能让您有更好的购房体验。
-
税费分析房贷计算
【二手房主要交易税费】: (1)、值税,增值附加税 (2)、个人所得税 (3)、契税 _ 根据房子的计税指导价不同,原值不同,是否满2年,是否满5年,业主家庭在京是否一套住房,以及买方是首套购房,还是二套购房,以及买方是全款还是贷款,若贷款则需要贷多少......等等信息的不同,而使得每一套房子的税费的多少不一样。 _ 【再次建议您】: (一)、找我司,我司在北京有300多家直营店,主做中楼盘,房源丰富且有大平台保障; (二)、找资深有经验的房产经纪人,既懂哪些产品符合您的需求,又让您再所有流程环节中,感觉清晰明了,安全有保障。
-
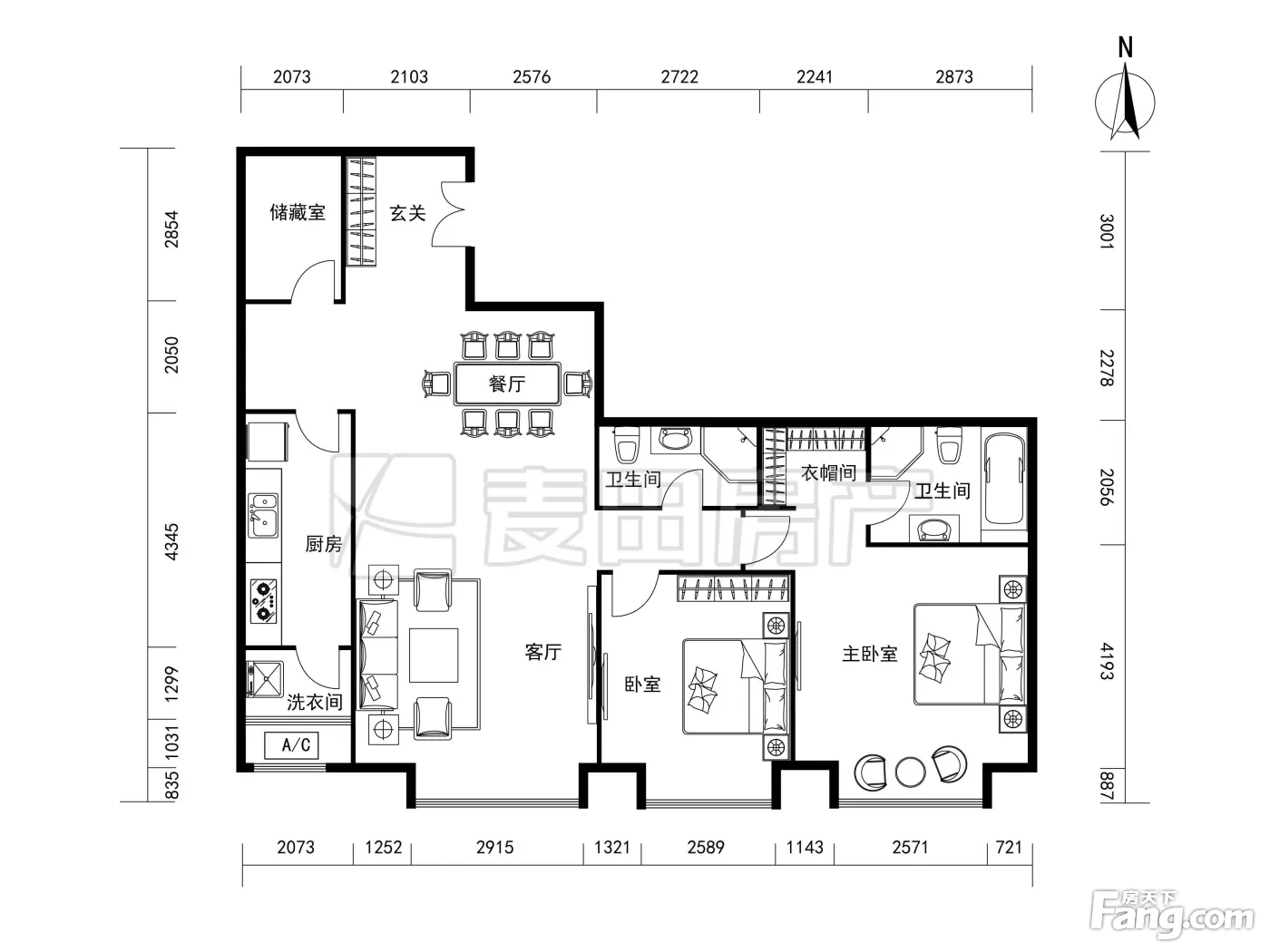
户型解读问经纪人
房屋户型方正,景观布局合理,设计实用,空间舒适,格局优越,采光通风良好
周边配套
交通综合评分
查看全部超过北京77.5%的小区
-
地铁公交
10.0
-
驾车出行
10.0
-
城际交通
4.5
本月均价 107167元/m²
环比上月 上涨 0.64%
同比去年 下跌 3.4%
猜你喜欢
同小区其它房源
户型齐全,主打户型方正,客厅朝南一居
富力爱丁堡户型主要有75平-115平的户型方正,客厅朝南的一居 、113平-172平的客厅朝南的二居 、194平-199平的户型方正,独立衣帽间,双阳台,主卧朝南的三居 。
*获取完整户型报告,同时会有免费语音讲解服务
买房加房产交流群,省钱不踩雷
3000+人正在热聊
- 免费咨询
- 专业服务
- 区域解读
- 户型分析


