首程时代中心办公楼4789平米独栋独院出售绿地环球文化金融城
-
20593万
总价
-
毛坯
装修
-
4789㎡
建筑面积
买房加房产交流群,省钱不踩雷
3000+人正在热聊
-
单价
43000元/平米
-
楼盘名称
中海时代广场写字楼
-
区域
石景山
-
物业费
1元/平米·月
-
类型
纯写字楼
-
等级
甲级
-
挂牌时间
2024-09-06
房源描述(1)
-
核心卖点问经纪人
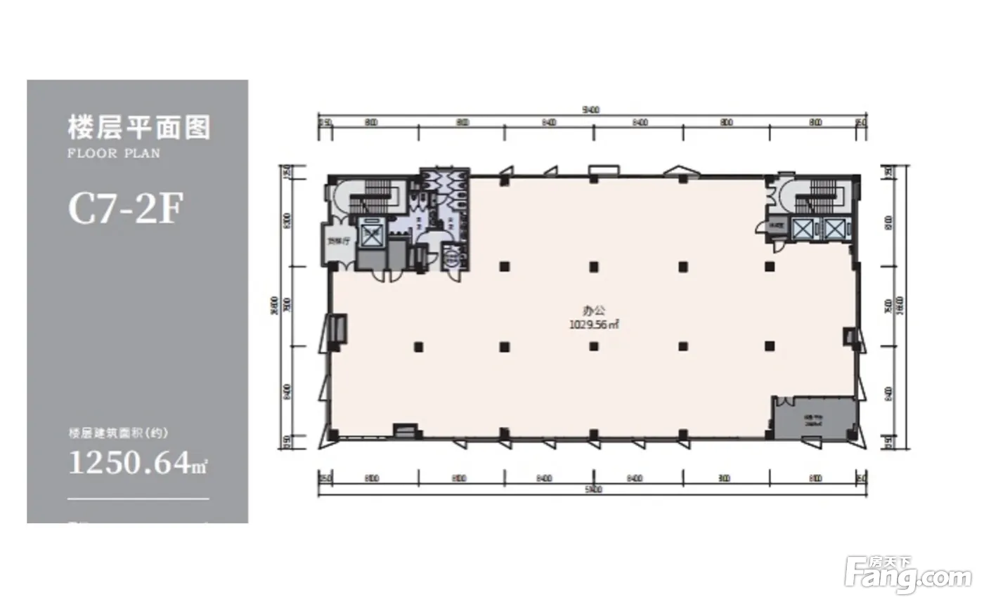
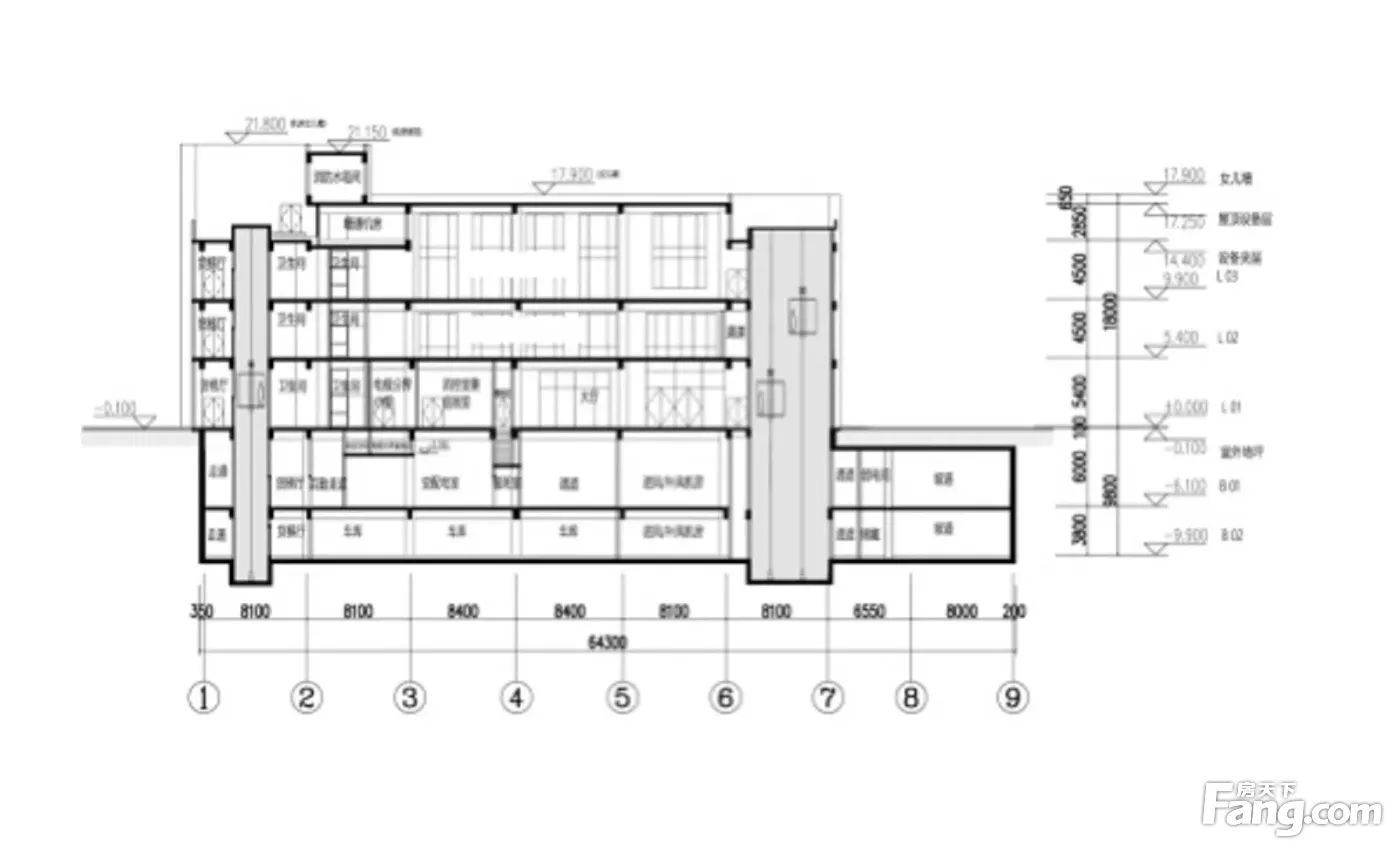
首钢园首程时代中心独栋办公楼1247平至38910平米租售 项目环线:5-6环 产权属性:50年产权办公 总建面积:约43.2万㎡ 临河独栋:1247㎡、1872㎡、2728㎡、4789㎡(独院) 出售价格:4.3万/㎡(地上面积),地下面积和庭院 【产品优势】 1.独立占地,独门独院,满足企业保密要求 2.容积率仅1.1,城市核心区临河稀缺商墅产品 3.使用率高达80%,优化空间利用效率 4.地上产权面积:4789㎡,地下面积:3491㎡()。库房113.58平方米。合计总面积:8393.58平米 5.产权车位46个 6.衙门口西站在地块内设单独出入口,便利员工通勤。 7.顶层设、上人屋面,可作为企业活动、员工休憩空间 8.办公首层5.4米,二层4.5米,三层7.35米可加大建筑空间。 9.地上、地下可二次装修增加近900㎡使用面积。地下增加面积可作为企业仓储空间,健身房、音影室 10.有燃气,可满足餐饮需求。 11.可自己做物业公司,独立个性化管理。 12.现房 项目简介 首程时代中心位于新首钢园东南区,建筑面积44万平方米,共有19座高品质总部楼宇。值得注意的是,首程时代中心是北京城六区内、长安街延线新建的大规模商务园区,这样的规模,以及绝佳的地理位置,成为了首程时代中心的发展与招商优势。 石景山首钢园作为首都城市复兴新地标,这些年的发展成果咱们都有目共睹,特别是接连举办了中国国际服务贸易交易会和服务保障了北京冬奥会,让首钢园在国际舞台惊艳“亮相”,更激发了商务活力,能在这里的商务园区,实力当然也不一般! 在交通方面,新首钢园有1号线、6号线、 S1线、R1线与M11线五条地铁。而首程时代中心北侧距1号线古城站仅500米,南侧位于M11线衙门口西站上盖,与地铁一体化开发建设,办公空间与轨道交通无缝连接,20通达金融街,30通达中关村,坐着地铁就能市中心。与此同时,园区北有长安街、阜石路,南为莲石路,西侧有古城南路,东侧为西五环路,快速通达全城,这才是真正的四通八达! 除此之外,这里的业态也会十分完善。项目南侧与M11线衙门口西站一体化设计,地铁出入口办公楼。地下一层全部联通,通过下沉广场营造双首层空间,地上商业沿南北向打造24H风情餐饮街区,地下商业则引入生活体验、商务服务、网红市集等业态,打造商务、生活及通勤人群的生活站、社交场及美食集,为白领精英们提供了休闲小聚、会客洽谈的好去处。
-
服务介绍问经纪人
本人从事房地产行业多年;涉及到北京各区,东城、西城、石景山、昌平、海淀、门头沟、朝阳,通州、大兴、亦庄、顺义等都有项目,多年的地产经验、已经跟很多业主成为朋友,长期合作,希望能为您提供专业服务。
-
周边配套问经纪人
商业:10.3万㎡京西大悦城(、金安环宇会、远洋·春秋里、喜隆多等繁华商业配套。 酒店:周边汇集银保建国酒店、香格里拉酒店、北京富力万达嘉华酒店等 公园:邻近法海寺森林公园、八大处公园、西山国家森林公园 生态:西山平均湿度80%,森林覆盖率80%,98.5%负氧离子含量峰值可达4000个/m 医疗:610余所大中型医院(北京西山医院、北京军区总医院京西医院等) 教育:东方悦稚蒙特梭利石景山、北大石景山分校、北大石景山分校等
-
交通出行问经纪人
高速:西六环、西五环,阜石路,莲石路,京港澳高速等 公交:325路、336路、358路、370路、396路、597路、664路、876路等多条公交 地铁:1号线地铁“古城”站约1000米
周边配套
猜你喜欢
同小区其它写字楼
- 免费咨询
- 专业服务
- 区域解读
- 户型分析


