公园里的家 河湾景观合院中式别墅 双首层设计 温榆河老河湾畔
-
3040万
总价
-
4室3厅4卫
户型
-
413.19㎡
建筑面积
买房加房产交流群,省钱不踩雷
3000+人正在热聊
-
单价
73574元/平米
- 挂牌价格解析
-
楼层
4层
- 咨询楼层
-
套内
403㎡
- 咨询套内使用面积
-
楼型
独栋
-
朝向
东
-
装修
精装修
-
年代
2020
-
发布
2024-10-17
-
咨询总首付
首付约1031.6万
首付税费及佣金情况 -
深度测评
小区格拉斯小镇(通州-通州其它)
-
更多
楼户比、楼层高度、交易历史、抵押信息
房源描述(1)
-
核心卖点问经纪人
核心卖点 您好!很高兴为您提供别墅买卖服务,本人专业代理别墅项目,多套房源、叠拼、联排、双拼、独栋可供您选择,每个户型都有钥匙,可以带您随时看房,选择,请选择别墅置业! 本房介绍: 1、百年国企,打造独栋别墅叠拼、合院,同区域 2、园区内3里老河湾,自然生态环境优越、周边河湖环抱、空气清新。 3、别墅区核心位置,纯低密别墅区。 4、舒适度高,超越同级产品性能,360度全时采光、。
-
业主心态问经纪人
格拉斯小镇、位于通州壁富路、温榆河岸、温榆河支流老河湾在园区蜿蜒而过,开发商在这条长3公里的河上架了几座桥(名字都很有艺术范,亲临现场可以领略),河里种植了荷花、业主可以垂钓、可以乘船欣赏两岸美景、堪比江南水系、也可以约上三五好友徜徉在岸边的绿草地或林间,也可以在草地上小酌,惬意的生活。。。。园区共分6期开发,一至五期独栋现房、六期是叠拼、合院产品,如果您有意向了解更多可以联系我!给您专业的置业服务!。
-
小区配套问经纪人
小区地理位置佳,绿化环境优越整洁,居民素质高,物业管理完善,适宜
-
服务介绍问经纪人
所有房子,不收取任何费用,无偿提供咨询,陪同看房。 您的满意就是我的动力,公司有大量新房楼盘,为您而选,为您安家。 祝您及您家人:工作顺利!万事如意! 信任始于您拿起电话的那一刻
-
税费分析房贷计算
不收取您任何费用,帮您买到低于市场价您满意的好房子,实实在在做好您购房体验,您的私人置业顾问帮您谈周期,税费,让您省心放心!
-
户型解读问经纪人
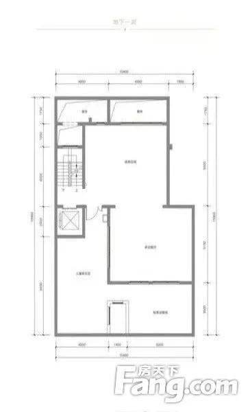
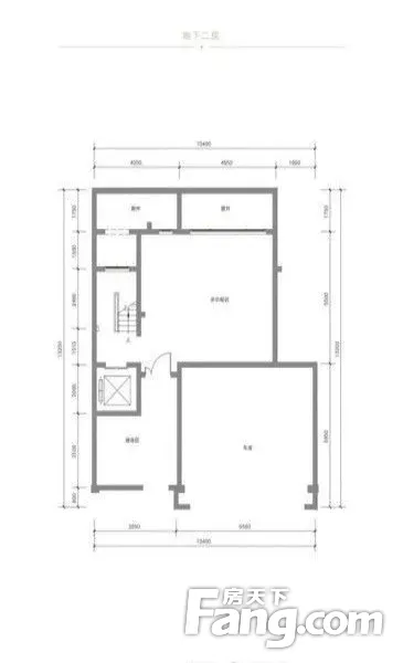
房屋户型方正,景观布局合理,设计实用,空间舒适,格局优越,采光通风良好
周边配套
猜你喜欢
同小区其它房源
户型齐全,主打南北通透,客厅朝南,主卧带卫四居
格拉斯墅区户型主要有330平-597平的南北通透,客厅朝南,主卧带卫的四居 、247平-330平的南北通透,客厅朝南,主卧带卫的三居 、822平-822平的南北通透,客厅朝南的五居 。
*获取完整户型报告,同时会有免费语音讲解服务
-
26979元/㎡
本月挂牌均价
-
1.29%
环比上月
买房加房产交流群,省钱不踩雷
3000+人正在热聊
- 免费咨询
- 专业服务
- 区域解读
- 户型分析

