金悦中心独栋办公2916平至9680平米现房租售兴创总部公园
-
10165万
总价
-
毛坯
装修
-
4066㎡
建筑面积
买房加房产交流群,省钱不踩雷
3000+人正在热聊
-
单价
25000元/平米
-
楼盘名称
金悦中心
-
区域
大兴
-
物业费
8元/平米·月
-
类型
纯写字楼
-
等级
甲级
-
挂牌时间
2024-09-24
房源描述(1)
-
核心卖点问经纪人
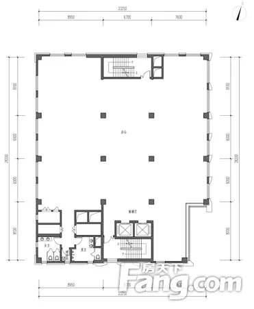
金悦中心独栋办公2916平至9680平米现房租售兴创总部公园 占地面积:3.1万方 建筑面积7.76万方 产品:独栋商业1100平米(具备燃气条件),独栋办公2916平-9680平米,现房发售。 面积:独栋2916平米,4066平米,9680平米等,可租或售 租金:3元/天/平米 售价:25000元/平米(独栋办公) 楼层:1/4 交付:毛坯 层高:首层层高5.7m, 标准层层高4.2m。 使用率高达83%。 电梯品牌:三菱电梯 项目四至:东至锦华北路,西至新源大街,南至义绣路,北至永华路三大公园环绕:念坛公园、滨河森林公园、清源公园,享受公园式绿色办公项目 万亩生态公园环绕、办公生活亲近自然、三大公园环伺,享2.5倍颐和园生态资源 念坛公园:占地2500亩,其中湿地面积为150亩,负氧离子含量超过2000个/立方厘米,是市区的20倍。大兴新城滨河森林公园:绿化面积4000多亩,种植各类乔木、花灌木104种,80多万株。清源公园:以大面积绿植为主,以人工湖为辅。
-
服务介绍问经纪人
本人从事房地产行业多年;你刚好需要,我刚好专业,涉及北京各区,东城、西城、丰台、昌平、海淀、朝阳,通州、大兴、顺义等都有项目,多年的地产经验、已经跟很多业主成为朋友,长期合作,希望能为您提供专业服务。
-
周边配套问经纪人
教育::九年教育永华,步行500米即达大兴区少年宫,3公里内多所优质教育,双语、、遍布丰富生活配套诠释商务新生活 ·:项目紧邻九年一贯制永华 ·医疗:广安门医院南院区、首都医科大学大兴医院、大兴妇幼保健院、北京仁和医院等 银行:项目2.5公里内有中国工商银行、中国农业银行、北京银行、中国民生银行等金融机构。 15钟,享六大商圈配套 泰禾中央广场:项目南侧400米,步行8钟 首开万科中心:项目向南820米,步行12钟 龙湖时代天街:项目向南3.7公里,10钟 凯德MALL一天宫院店:项目南4.7公里 火神庙商业中心:项目向北3公里,10钟 绿
-
交通出行问经纪人
轨道交通:4号线大兴线“黄村火车站”、4号线大兴线“义和庄”、 京雄城际北京“大兴站” 公交路线:456路、954路、957路、兴22路、兴25路、兴46路、兴48路、兴61路义和庄站; 交通情况:距离4号线义和庄地铁站北约500米,距黄村高铁站1.3公里,出行方便。4号线一站换乘通达全北京,S6号线快速连通新老机场。黄村高铁站为京津冀枢纽,一站新机场,快速抵达雄安新区。京雄城际高铁、 地铁4号线、 京开高速 、新机场高速。
周边配套
交通综合评分
查看全部超过北京58.9%的小区
-
地铁公交
10.0
-
驾车出行
10.0
-
城际交通
4.0
猜你喜欢
同小区其它写字楼
- 免费咨询
- 专业服务
- 区域解读
- 户型分析


