密云 西源里 3室2厅 带固定车位
-
252万元
总价
-
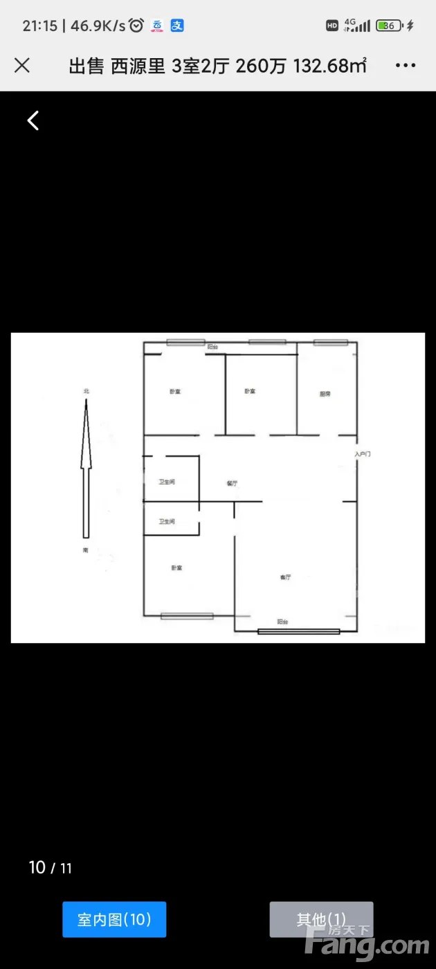
3室2厅2卫
户型
-
132.68㎡
建筑面积
买房加房产交流群,省钱不踩雷
3000+人正在热聊
加入群聊
-
单价
18993元/平米
- 挂牌价格解析
-
楼层
顶层/6层
- 咨询楼层
-
套内
暂无数据
- 咨询套内使用面积
-
朝向
南
-
年代
2000
-
发布
2024-11-11
-
咨询总首付
首付约85.6万
首付税费及佣金情况 -
深度测评
小区西源里(密云-鼓楼)
-
更多
楼户比、楼层高度、交易历史、抵押信息
业主自评
-
快乐老顽童
加入房天下3818天
接电时间:09:00-22:00
本房**固定车位一个,充电桩1个。**三中。采光极好。
本房**固定车位一个,充电桩1个。**三中。采光极好。
周边配套
地址:新中街北端西源里,紧邻沿湖小区南区
交通综合评分
查看全部6.5
“较好”
超过北京22.8%的小区
-
地铁公交
5.0
-
驾车出行
10.0
-
城际交通
5.0
本月均价 22603元/m²
环比上月 下跌 2.11%
同比去年 下跌 10.92%
猜你喜欢
同小区其它房源
户型齐全,主打明厨,客厅朝南,双卧朝南二居
西源里户型主要有94平-137平的明厨,客厅朝南,双卧朝南的二居 、154平-184平的户型方正,明厨的三居 。
*获取完整户型报告,同时会有免费语音讲解服务
-
18495元/㎡
本月挂牌均价
-
0.94%
环比上月
买房加房产交流群,省钱不踩雷
3000+人正在热聊
加入群聊
联系业主
免责声明:房源信息由网站用户提供,其真实性、合法性由信息提供者负责,最终以政府部门登记备案为准。本网站不声明或保证内容之正确性和可靠性,购买该房屋时,请谨慎核查。入学情况仅凭历史经验总结,在此不承诺升学事宜。请您在签订合同之前,切勿支付任何形式的费用,以免上当受骗。

