急售!出门植物园 阳光盛景B区精装四室 随时看房
-
105.8万元
总价
-
4室2厅2卫
户型
-
180㎡
建筑面积
买房加房产交流群,省钱不踩雷
3000+人正在热聊
-
单价
5878元/平米
- 挂牌价格解析
-
楼层
低层/20层
- 咨询楼层
-
套内
暂无数据
- 咨询套内使用面积
-
楼型
板楼
-
朝向
南北
-
装修
豪华装修
-
年代
2012
-
发布
2026-01-26
-
深度测评
小区阳光盛景B区(竞秀-高开区)
-
更多
楼户比、楼层高度、交易历史、抵押信息
房源描述(1)
-
核心卖点问经纪人
推荐的不止是房子,而是全新的生活方式 因为你选择一个小区的同时 你也就选择了一群邻居、一个生活圈层、以及孩子未来的生活环境,这也是孟母三迁择邻而居的由来。 1孩子5份钟就到校 ,有幼儿园 2 品牌物业,环境好 绿化好 身处天然氧吧中 房主急售 价格可仪 我是华中置业山水华庭店 王坤
-
业主心态问经纪人
诚心出售,欢迎看房,随时恭候您的到来,恭候各位光临
-
小区配套问经纪人
出门健身公园 小区旁边有 医院
-
服务介绍问经纪人
从业多年,为您找到梦想中的家。 珍视您的每一份嘱托,房子有价,信任无价,圆您家的梦想!您所看到的房源全部真实有效,提前预约即可实地看房。欢迎随时来电咨询! 华中置业山水华庭店王坤
-
税费分析房贷计算
此房源为老本,在手 过户费少。产权清晰,随时可以过户
-
户型解读问经纪人
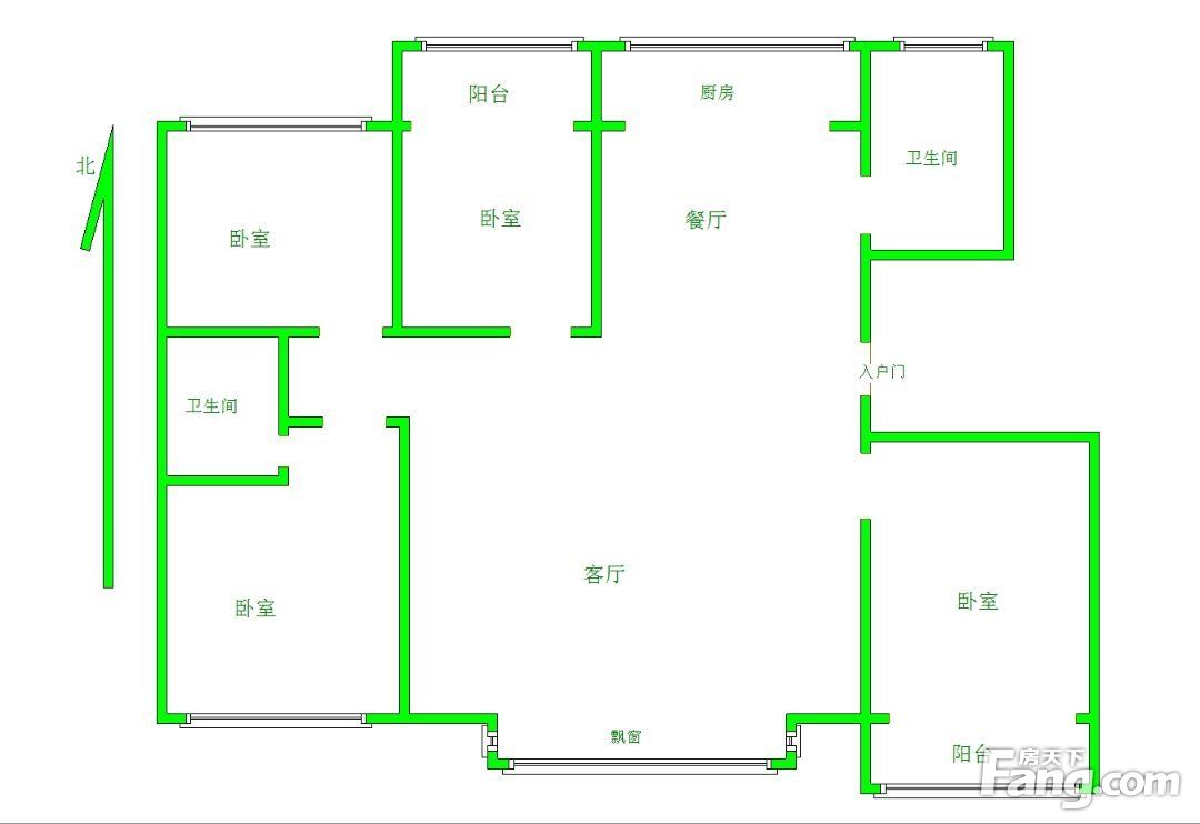
南北通透户型 大客厅 阳面卧室带观景阳台 明厨明卫 全明户型 大富大贵 一层两部电梯 公摊小 全天采光 采光超.棒!
周边配套
本月均价 暂无均价
环比上月 持平
同比去年 持平 持平
-
9305元/㎡
本月挂牌均价
-
2.14%
环比上月
买房加房产交流群,省钱不踩雷
3000+人正在热聊
- 免费咨询
- 专业服务
- 区域解读
- 户型分析


