13000
元/月
押一付三
鸿艺豪苑两房招租|梧桐区+地铁口 中空地暖简约风拎包即住
-
2室2厅1卫
整租
-
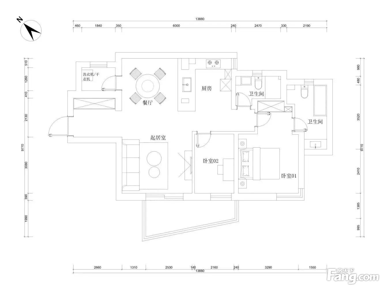
122㎡
面积
-
中层/26层
楼层
-
西南
朝向
2025-12-03更新
租房不踩坑
3000+人正在热聊
加入群聊
-
看房
随时看房
-
装修
简装修
-
入住
暂无
-
咨询经纪人,了解更多房源信息
问一问
郑重提示:请您在签订合同之前,切勿支付任何形式的费用,以免上当受骗。
费用明细
-
押一付三
付款方式
-
13000
租金(元/月)
-
***
押金
-
***
服务费
- 房租含取暖费吗?
- 房租含物业费吗?
房屋设施
- 床
- 宽带
- 暖气
- 电视
- 空调
- 冰箱
- 洗衣机
- 热水器
- 煤气
- 家具
- 微波炉
- 可做饭
- 卫生间
- 沙发
- 衣柜
- 阳台
- 电梯
- 油烟机
- 智能门锁
- 橱柜
- 燃气灶
- 电磁炉
- 餐桌
- 电话
- 厨具
- 独立卫生间
- 独立阳台
- 露台
- 阁楼
- 游泳池
- 阳光房
房源描述
-
房源亮点问经纪人
梧桐区+简约风装修三重日子梧桐区品质租客看过来!鸿艺豪苑优质两房诚意招租,地铁口+梧桐区雅致氛围加持,再配中空地暖与简约风装修,解锁都市诗意生活~ 一房格局方正通透,采光通风超绝!简约风装修质感在线,无繁杂装饰更显空间开阔,客厅与卧室动线流畅,不管是休憩放松还是居家办公都尽显从容;空间利用率拉满,收纳区域规划合理,轻松告别独居杂乱烦恼,精致生活触手可及。 舒适配置直接拉满!全屋中空系统加持,夏日告别闷热黏腻体感;地暖设施齐全,寒冬在家光脚漫步也暖意十足,四季居住体验感绝佳。简约风适配各类家居风格,家具家电全配齐,品牌厨卫用品一应俱全,搭配简约风装修适配各类家居风格,真正实现拎包入住,省去装修布置的麻烦。 优势尽显配套成熟完善地理位置得天独厚!步行几地铁口,通勤出行轻松畅达全城;身处梧桐区核心地带,绿树成荫满是雅致韵味,周边商超、菜场、咖啡馆、医院等配套完善,老上海烟火气与梧桐区文艺氛围兼具,日常所需轻松满足。 这样的梧桐区地铁口好房真的可遇不可求!两房配置适配多种居住需求,公安大楼房源品质有保障,手慢无~ ~ 有意向的宝子赶紧私信我,预约实地看房!!
-
小区配套问经纪人
位置:小区地理位置佳,绿化率高,居民素质高 配套:有健身器材,小型篮球场,可供小区居民使用 车位:停车位充足,建有地上停车场和地下车库 保安:小区内24小时保安巡逻
-
服务介绍问经纪人
本人从事房地产多年,公司有大量好房源,欢迎进入我的店铺查看,欢迎随时电话咨询,相信我的专业,为您置业安家保驾护航。
周边配套
地址:淮海中路1500号
- 免费咨询
- 专业服务
- 区域解读
- 户型分析
免责声明:房源信息由网站用户提供,其真实性、合法性由信息提供者负责,最终以政府部门登记备案为准。本网站内容凡涉及面积单位均为建筑面积,本网站不声明或保证内容之正确性和可靠性,租赁该房屋时,请谨慎核查。


