实景图片 上海南站1/3/15号线出口 万科中心 精装带家具
-
22000元/月
租金
-
简装修
装修
-
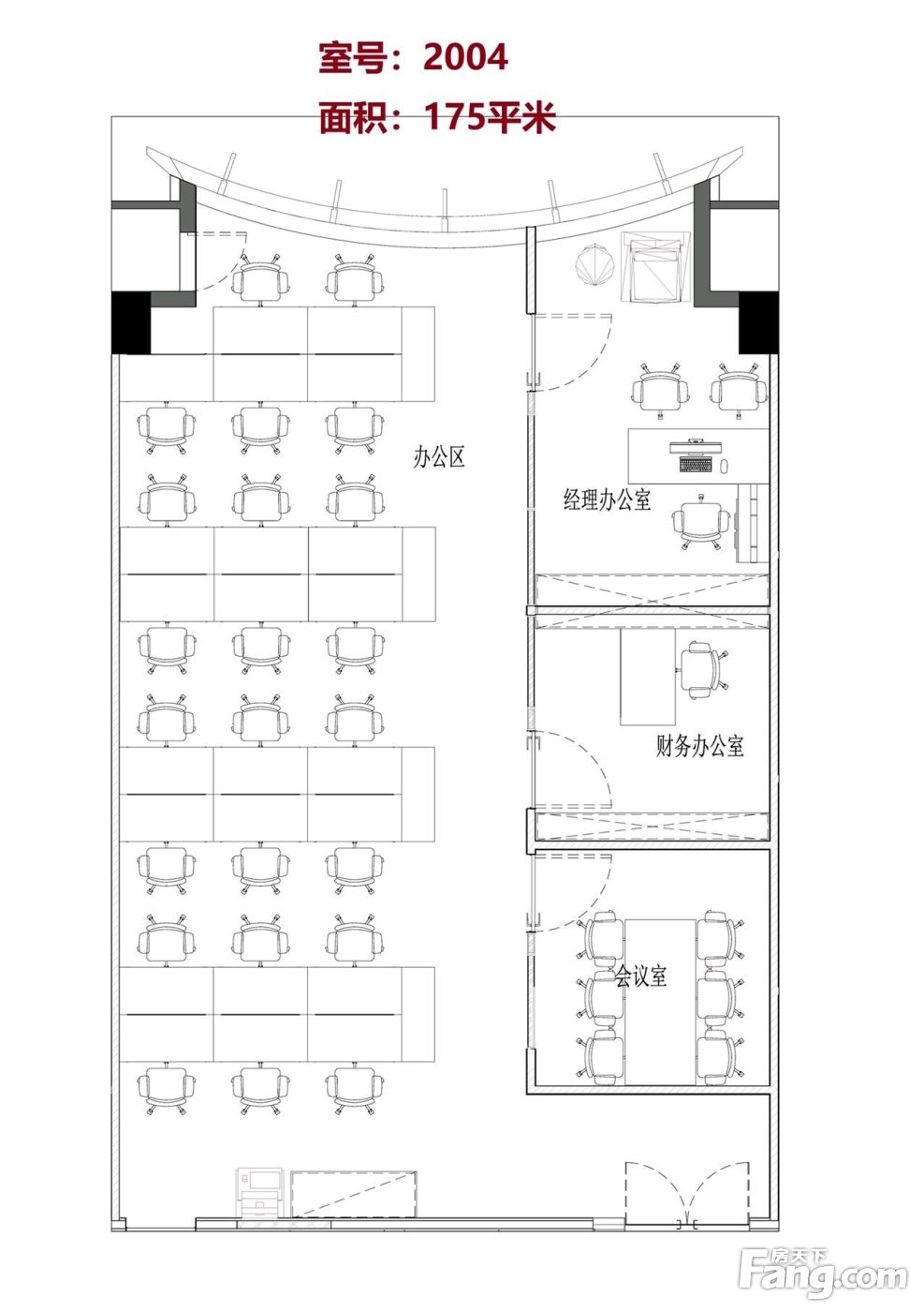
200㎡
建筑面积
租房不踩坑
3000+人正在热聊
-
楼盘名称
徐汇万科中心
-
区域
徐汇
-
物业费
19元/平米·月
-
类型
纯写字楼
-
等级
暂无
-
挂牌时间
2025-09-04
-
支付方式
押一付三
-
入驻时间
2024-10-6
费用明细
-
押一付三
付款方式
-
22000
租金(元/月)
-
***
押金
-
***
服务费
- 房租含取暖费吗?
- 房租含物业费吗?
房源描述
-
房源亮点问经纪人
房源亮点 基本租凭情况: 1、出租面积:200平米 2、房屋租金:4.5元/平/天 3、物业管理费:19元/平/月 4、支付方式:付二押二,业态不限 5、看房时间:全天看房 6、交房标准:实景照片,精装修带家具 区域: 1、【位置】徐汇万科中心位于南宁路1000号,距1、3、15号线上海南站300米,1、12号线漕宝路站800米,周围写字楼密集,浓厚的商务氛围,地理位置突出 2、【房型特征】高区楼层,房型方正,采光面积大 3、【周边配套】配套齐全,遍布,,酒店,银行,餐饮,娱乐设施 4、【看房】提前约看,全程免费带看 周边配套 周边中星城,铂尔曼酒店,配套齐全,遍布,,酒店,银行,餐饮,娱乐设施 交通出行 1.3.15号线上海南站,公交车,四通八达 服务介绍 本人已经取得房产专业证书,做事认真专业靠谱,欢迎您的来电咨询,24在线服务!
-
服务介绍问经纪人
本人从事房地产多年,公司有大量好房源,欢迎进入我的店铺查看,欢迎随时电话咨询,相信我的专业,为您置业安家保驾护航。
-
周边配套问经纪人
徐汇万科中心位于南宁路1000号,距1、3、15号线上海南站300米,1、12号线漕宝路站800米,周围写字楼密集,浓厚的商务氛围,地理位置突出 2、【房型特征】高区楼层,房型方正,采光面积大 3、【周边配套】配套齐全,遍布,,酒店,银行,餐饮,娱乐设施 4、【看房】提前约看,全程免费带看 周边配套 周边中星城,铂尔曼酒店,配套齐全,遍布,,酒店,银行,餐饮,娱乐设施 交通出行 1.3.15号线上海南站,公交车,四通八达 服务介绍
-
交通出行问经纪人
位置】徐汇万科中心位于南宁路1000号,距1、3、15号线上海南站300米,1、12号线漕宝路站800米,周围写字楼密集,浓厚的商务氛围,地理位置突出 2、【房型特征】高区楼层,房型方正,采光面积大 3、【周边配套】配套齐全,遍布,,酒店,银行,餐饮,娱乐设施 4、【看房】提前约看,全程免费带看 周边配套 周边中星城,铂尔曼酒店,配套齐全,遍布,,酒店,银行,餐饮,娱乐设施 交通出行 1.3.15号线上海南站,公交车,四通八达 服务介绍 本人已经取得房产专业证书,做事认真专业靠谱,欢迎您的来电咨询,24在线服务!
徐汇龙华
建成2016年
建筑类型板楼
周边配套
- 免费咨询
- 专业服务
- 区域解读
- 户型分析

