1260
元/月
面议
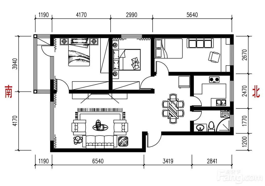
庆城县凤城庆城镇家属楼 3室2厅 117.71㎡ 1260元
-
3室2厅1卫
整租
-
117.71㎡
面积
-
高层/6层
楼层
-
南北
朝向
2025-08-30更新
-
看房
-
-
装修
精装修
-
入住
随时入住
-
咨询经纪人,了解更多房源信息
问一问
郑重提示:请您在签订合同之前,切勿支付任何形式的费用,以免上当受骗。
费用明细
-
面议
付款方式
-
1260
租金(元/月)
-
***
押金
-
***
服务费
- 房租含取暖费吗?
- 房租含物业费吗?
房屋设施
- 床
- 宽带
- 暖气
- 电视
- 空调
- 冰箱
- 洗衣机
- 热水器
- 煤气
- 家具
- 微波炉
- 可做饭
- 卫生间
- 沙发
- 衣柜
- 阳台
- 电梯
- 油烟机
- 智能门锁
- 橱柜
- 燃气灶
- 电磁炉
- 餐桌
- 电话
- 厨具
- 独立卫生间
- 独立阳台
- 露台
- 阁楼
- 游泳池
- 阳光房
业主自评
-
碧水蓝天RJM
加入房天下3377天
接电时间:8:00-22:00
出租要求: 作息正常
家具家电齐全,拎包入住,独立院落免费停车,楼层南北通透,采光好,视野无遮挡,出行方便,周边生活配套齐全,精选好房。
出租要求: 作息正常
家具家电齐全,拎包入住,独立院落免费停车,楼层南北通透,采光好,视野无遮挡,出行方便,周边生活配套齐全,精选好房。
联系业主
免责声明:房源信息由网站用户提供,其真实性、合法性由信息提供者负责,最终以政府部门登记备案为准。本网站内容凡涉及面积单位均为建筑面积,本网站不声明或保证内容之正确性和可靠性,租赁该房屋时,请谨慎核查。

