同安路地铁口!创业小户型名汇!地铁55平年3.6万!好房
-
3000元/月
租金
-
简装修
装修
-
55㎡
建筑面积
租房不踩坑
3000+人正在热聊
-
楼盘名称
名汇国际
-
区域
崂山
-
物业费
3元/平米·月
-
类型
纯写字楼
-
等级
暂无
-
挂牌时间
2024-11-23
-
支付方式
年付
-
入驻时间
暂无
费用明细
-
年付
付款方式
-
3000
租金(元/月)
-
***
押金
-
***
服务费
- 房租含取暖费吗?
- 房租含物业费吗?
房源描述
-
房源亮点问经纪人
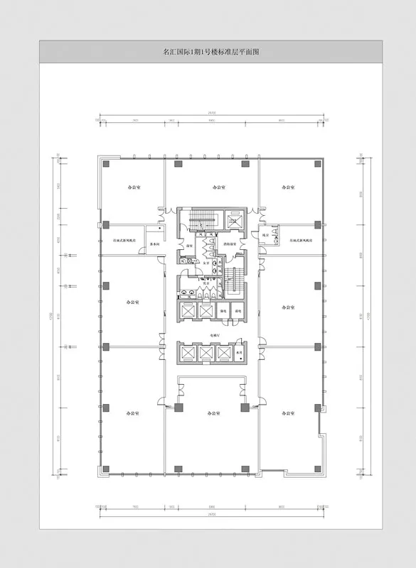
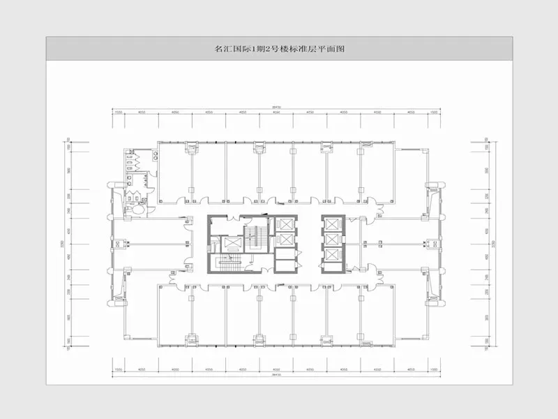
梦城房产崂山区写字楼真诚为您 1、地址:位于崂山区石岭路39号,东靠崂山主干道深圳路和汽车东站,西邻海尔路,青银高速、跨海大桥高架多条城市主干道,370、28、19路等20多条公交线路,位于商务中位置,周边商业、金融、餐饮配备齐全。 2、建筑面积55平,年租金3.6万。 3、物业费: 1号楼——7.5元!平!月(6.5物业费+1元电梯费) 2号楼——3.0元!平!月(2.0物业费+1元电梯费) 电费:0.8元!度 网络:各家网络均可 4、停车:地上免费车位 地下固定车位 5、户型设计方正实用,空间可自由组合,能够满足不同规模企业的需求。通风、透气、采光好,空间利用高。 房源真实,都有钥匙,随时可以看房,崂山区所有办公用房均有! 欢迎来电梦城房产马志兴! 全天候为您,给您节省时间。 梦城房产写字楼资源丰富房源配对准确快速便捷安全放心!
-
服务介绍问经纪人
1.崂山区金家岭商务区:上实中心大荣中心,WFC协信中心环球金融中心 2市南区五四广场商圈,香港中路商圈,南京路商圈,延安三路商圈 3.市北区:CBD核心商务区,万科新都心商务区 4李沧城阳区李村商圈
-
周边配套问经纪人
①龙海明珠85平南向3.6-4万/年多套有钥匙 ③龙海明珠95平南向3.6-4.0万/年多套有钥匙 ④龙海明珠120平南向大开间带家具4.8-5.5万/年有钥匙 ⑤龙海明珠154平南向大开间6.5-7.5万多套有钥匙 全部均有钥匙随时看房
-
交通出行问经纪人
名汇 55平 精装 3.3万-4万 多套 有钥匙 名汇 80平 精装5.5万-6万多套有钥匙 名汇 110平精装7-8万多套有钥匙 名汇 135平精装10-12万带车位有钥匙 名汇 165平精装南向13万有钥匙 名汇 218平精装南向22万有钥匙 名汇 670平精装南向61万有钥匙 全部均有钥匙随时看房
崂山海尔路
建成2013年
建筑类型塔楼
周边配套
- 免费咨询
- 专业服务
- 区域解读
- 户型分析

