800
元/月
押一付一
西湖西溪路精装电梯小户型 押一付一仅800
-
1室1卫
整租
-
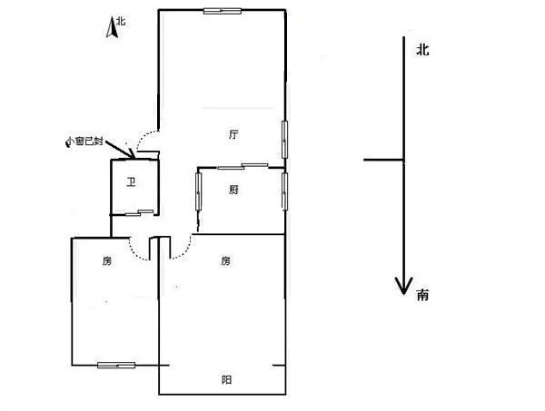
22㎡
面积
-
高层/4层
楼层
-
南
朝向
2025-12-23更新
租房不踩坑
3000+人正在热聊
加入群聊
-
看房
随时看房
-
装修
精装修
-
入住
暂无
-
咨询经纪人,了解更多房源信息
问一问
郑重提示:请您在签订合同之前,切勿支付任何形式的费用,以免上当受骗。
费用明细
-
押一付一
付款方式
-
800
租金(元/月)
-
***
押金
-
***
服务费
- 房租含取暖费吗?
- 房租含物业费吗?
房屋设施
- 床
- 宽带
- 暖气
- 电视
- 空调
- 冰箱
- 洗衣机
- 热水器
- 煤气
- 家具
- 微波炉
- 可做饭
- 卫生间
- 沙发
- 衣柜
- 阳台
- 电梯
- 油烟机
- 智能门锁
- 橱柜
- 燃气灶
- 电磁炉
- 餐桌
- 电话
- 厨具
- 独立卫生间
- 独立阳台
- 露台
- 阁楼
- 游泳池
- 阳光房
房源描述
-
房源亮点问经纪人
该房源位于西湖区核心地段的杨家牌楼小区,地理位置优越,步行可达西溪湿地景区。房屋为精装修电梯高层,22平米南向小户型,采光通风良好。室内配置齐全,含独立厨房、卫生间及生活阳台,满足日常起居需求。 月租金仅800元,支持押一付一付款方式,减轻租客经济压力。4层建筑中的高层房源保障私密性,周边生活配套成熟,交通便利,是预算有限但追求品质生活的理想选择。
-
小区配套问经纪人
周边商场,超市,菜市场,银行,学校等一应俱全。 :交通便利,周边公交车站多,旁边有公用自行车点共享单车,有地铁。:小区适宜居住,物业管理完善。价格和房子好坏地段等成正比。
-
服务介绍问经纪人
您好:所有现房可拎包入住 房租可一个月一付,灵活方便,可短租可长租,可烧饭!有地铁口各城区房源,配有床、衣柜、空调、无线网:热水器、洗衣机等基本设施齐全。
-
周边配套问经纪人
交通便利,周边公交车站多,旁边有公用自行车点共享单车,有地铁。 :小区适宜居住,物业管理完善。价格和房子好坏地段等成正比。 :我们不赚取房租差价,房租押金水费电费等都直接交给房东,看房的时候 房东都在现场。秉承热情服务 诚实守信的理念欢迎您。
-
交通出行问经纪人
本公司有代理杭州各城区房屋出租,配有床、衣柜、空调、热水器、无线网,洗衣机等基本设施齐全。欢迎您的来电咨询,随时安排看现房。
周边配套
地址:西溪路杨家牌楼
- 免费咨询
- 专业服务
- 区域解读
- 户型分析
免责声明:房源信息由网站用户提供,其真实性、合法性由信息提供者负责,最终以政府部门登记备案为准。本网站内容凡涉及面积单位均为建筑面积,本网站不声明或保证内容之正确性和可靠性,租赁该房屋时,请谨慎核查。

