出租江滨5A甲级办公楼5000平方 优惠价 可以分割出租
-
75元/平米·月
租金
-
精装修
装修
-
5000㎡
建筑面积
租房不踩坑
3000+人正在热聊
-
楼盘名称
出租5000平方甲级办公楼
-
区域
台江
-
物业费
15元/平米·月
-
类型
纯写字楼
-
等级
暂无
-
挂牌时间
2024-11-21
-
支付方式
押一付三
-
入驻时间
暂无
费用明细
-
押一付三
付款方式
-
75
租金(元/平米·月)
-
***
押金
-
***
服务费
- 房租含取暖费吗?
- 房租含物业费吗?
房源描述
-
房源亮点问经纪人
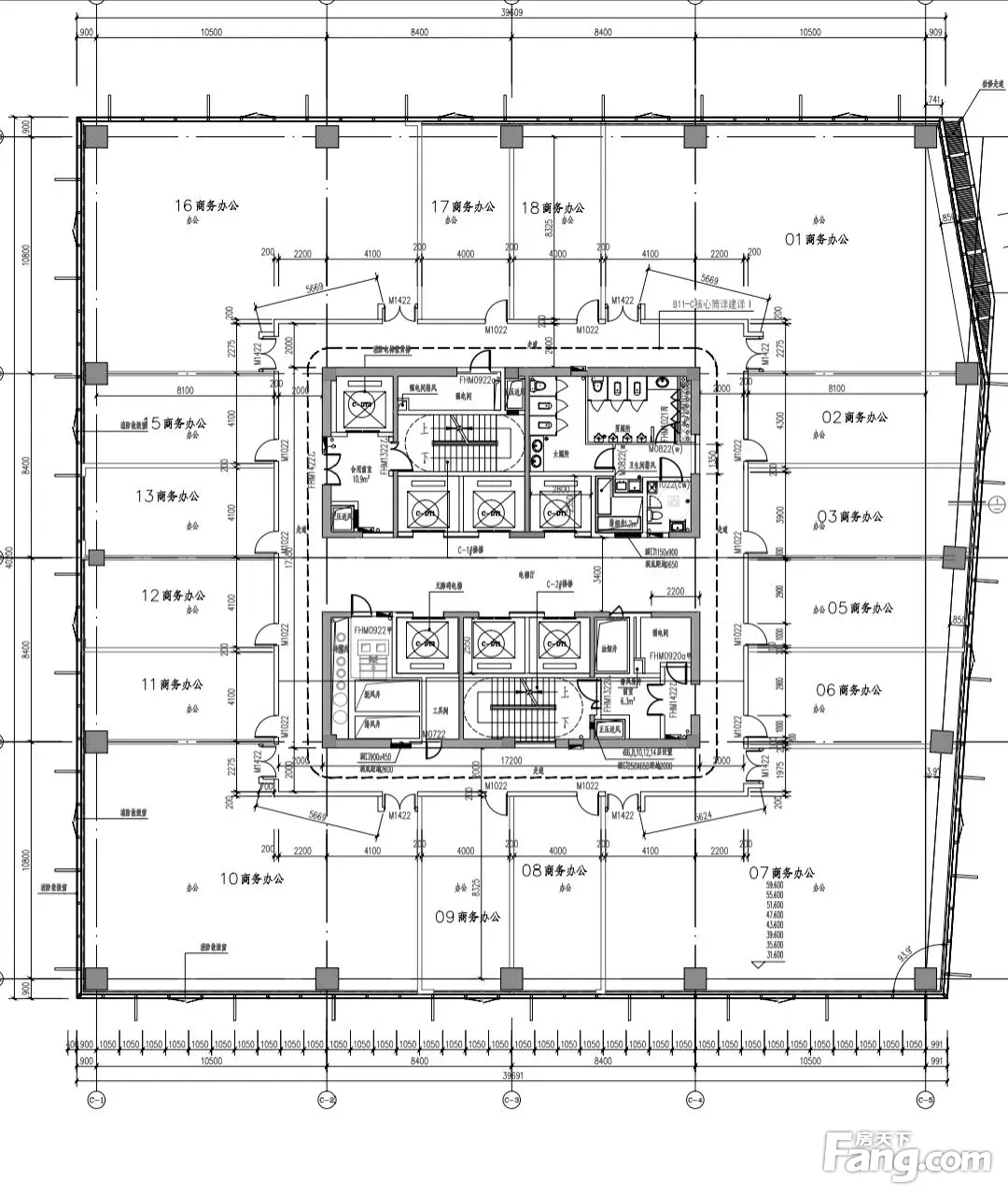
北江滨CBD中心5A甲级办公楼出租中…… 1、位置:福建省福州市台江区长汀路祥坂地口D出口 2、介绍:总建筑面积2.3万平,7-19层对外招租,单层面积1600平方,总共约有23000平方可以出租,可以毛坯,可以定制装修。 3、优势:项目位于台江区闽江北岸CBD商务区规划,地铁2号线祥板地口交通方便,停车非常方便500+个停车位,停车400元/月。整层回字形布局,方方正正,全面都有采光,办公白天都可以不用开灯,室内没有大的的柱子,办公利用率极高。总高19楼,有6部电梯, 4、租赁条件:2.3万平方自由分割,毛坯75元/平方米每平起,精装办公室85元/平方米起。 5、招商对象:律师、证券、医疗、教育、高新企业等。 6、招商热线屠君 福州高新区2号地铁站:厚庭站,甲级写字楼,花园式办公。面积 1450㎡? 精装 带部分设备 12间办公室+大会议室 业务厅80-人左右 电梯口位置采光视野极好。 招租电话屠君 高新区 5A甲级一线江景办公楼 #面积500平方~30000平方,出租单价45~55元,有地铁2号线,距离金山万达广场5分中, 高新区标杆项目,欢迎有需要求租的企业实地考察, (另有高新区#地球空间,宏盛中心,万山大厦,斯泰克,榕基中心,中泰云海科技,久策大厦,邦邦财富中心,华建大厦,上述几个楼盘都有办公楼出租,价格非常优惠,欢迎来电咨询,) 招商热线? 屠君
-
服务介绍问经纪人
出租整层商业2300平方,至4600平方,层高5.2米,楼下#有麦当劳,#星巴克,厦门银行,#超鹿运动在租用一整层,附近都是高端豪宅社区,常住人口要四五十万,品牌餐饮酒楼优先考虑,低于市场价出租,
-
周边配套问经纪人
出租金山#万达广场商圈,金山公园附近纯商业场所,单层3400平方,毛坯,可分割出租,可提供广告牌位置,业态不限,停车无扰,每平方60元,招商电话屠君 2、出租花海公园#东部办公区,甲级办公楼底商,单层2200平方,有两层在出租,合计4400平方,停车无扰,地铁站口,世纪金源酒店商圈,有经济实力的客户来电屠君
-
交通出行问经纪人
4、项目概况:高新区科创园三期新建成的“双子星”地标建筑。九州之星写字楼总建约5.6万㎡出租,作为第五届福建数字峰会重点规划的建设项目,#30层超高层5A甲级写字楼,一线瞰江资产,背山面水临城风云所在,单层面积近2000㎡,可分租,可整租,超标准提供毛坯、精装双重标准的办公场地。电话屠君
- 免费咨询
- 专业服务
- 区域解读
- 户型分析

