出租高新区融侨集团开发 位置最甲 规格 5A甲级江景办公楼
-
52元/平米·月
租金
-
毛坯
装修
-
775㎡
建筑面积
租房不踩坑
3000+人正在热聊
-
楼盘名称
5A甲级江景办公楼 融侨集团
-
区域
闽侯
-
物业费
6元/平米·月
-
类型
纯写字楼
-
等级
暂无
-
挂牌时间
2024-10-10
-
支付方式
押三付一
-
入驻时间
暂无
费用明细
-
押三付一
付款方式
-
52
租金(元/平米·月)
-
***
押金
-
***
服务费
- 房租含取暖费吗?
- 房租含物业费吗?
房源描述
-
房源亮点问经纪人
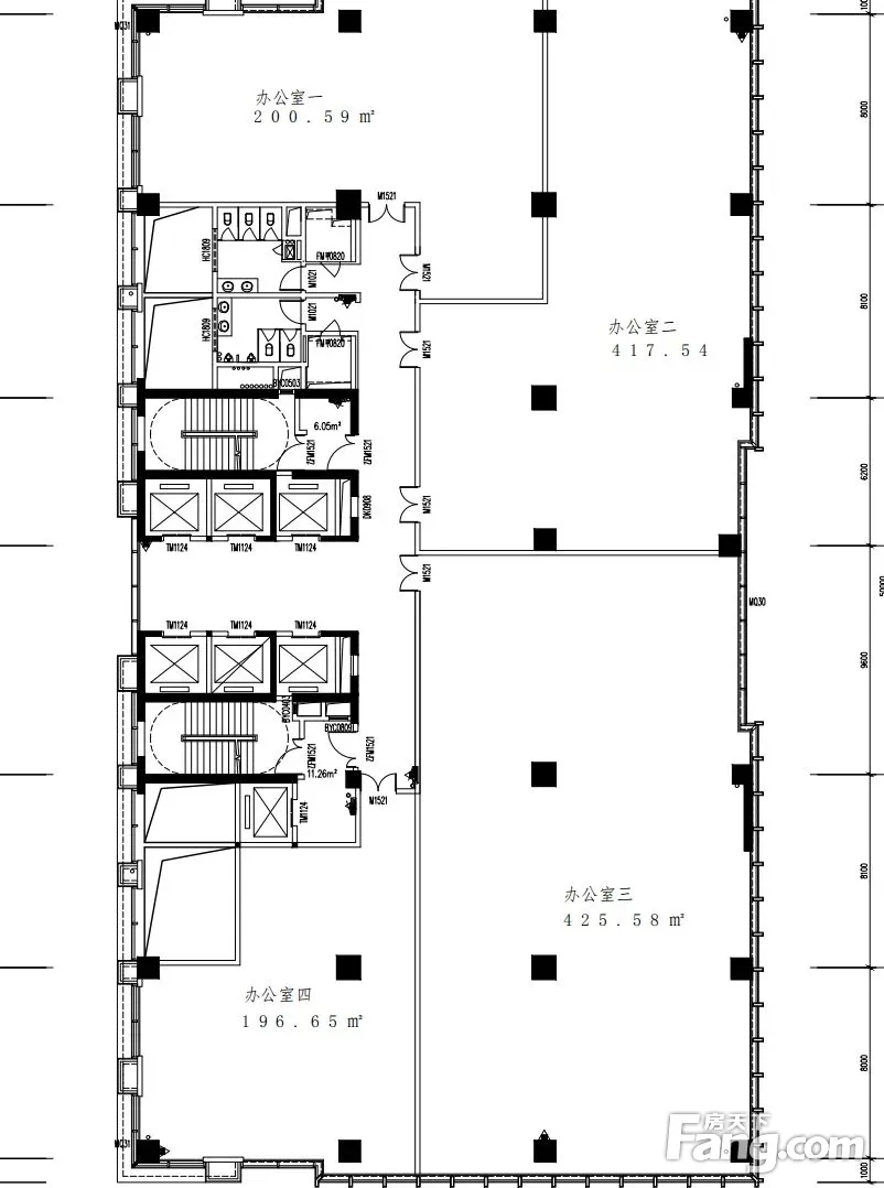
融侨集团5A甲级江景办公楼 新项目预招商 ~ 高品质的东西,永远都是不会便宜的。 德艺文创·数智星空&福抗创投中心 一线江景,面积任选,6000平方-85000平方均可,详见户型图, 项目距离地铁2号线厚庭站300米,位于福州中心城区向西延伸的桥头堡位置, 是国务院批准成立的批国 jia甲 级 高新区之一, 拥有高新技术企业521家,数十所高校及中, 是福州未来科技发展的先锋地和聚集地! 楼宇自带商业配套,网球场,泳池,高端餐饮等等, 德艺福抗携手融侨商管,致力打造高新区第壹个 以科技、人文、艺术、商务、社交为一体的标杆项目! 橘园洲大桥桥头,高新区 5A甲级江景办公楼+一楼店面预招商 面积300平方~85000平方, 携手融侨集团商管,致力打造高新区标杆项目,欢迎企业实地考察~ A栋10楼 A户型 754.99平方 55元 B户型 584.21平方 53元 11楼 A户型 365.29平方 55元 B户型 273.48平方 53元 C户型 477.99平方 52元 12楼 整层1339.2平方 52元 B栋 7楼 A户型310.36平方 52元 B户型331.29平方 52元 C户型331.29平方 48元 D户型310.36平方 48元 8楼 A户型774.76平方 50元 B户型508.54平方 50元 9楼 整层1283.3平方 52元 C栋6楼整层1240.36平方 面议
-
服务介绍问经纪人
老话有讲过,闻到有先后,术业有专攻,专业的人做专业的事情。 大宗商业地产买卖专业户屠君为你服务,你刚好有需要,我刚好专业。
-
周边配套问经纪人
地铁2号线厚庭站 ,浦上大道万达广场
-
交通出行问经纪人
地铁2号线厚庭站 ,,,浦上大道万达广场
- 免费咨询
- 专业服务
- 区域解读
- 户型分析

