万江地铁口东江之星精装修259平,个人房东租金便宜双面采光
-
7770元/月
租金
-
精装修
装修
-
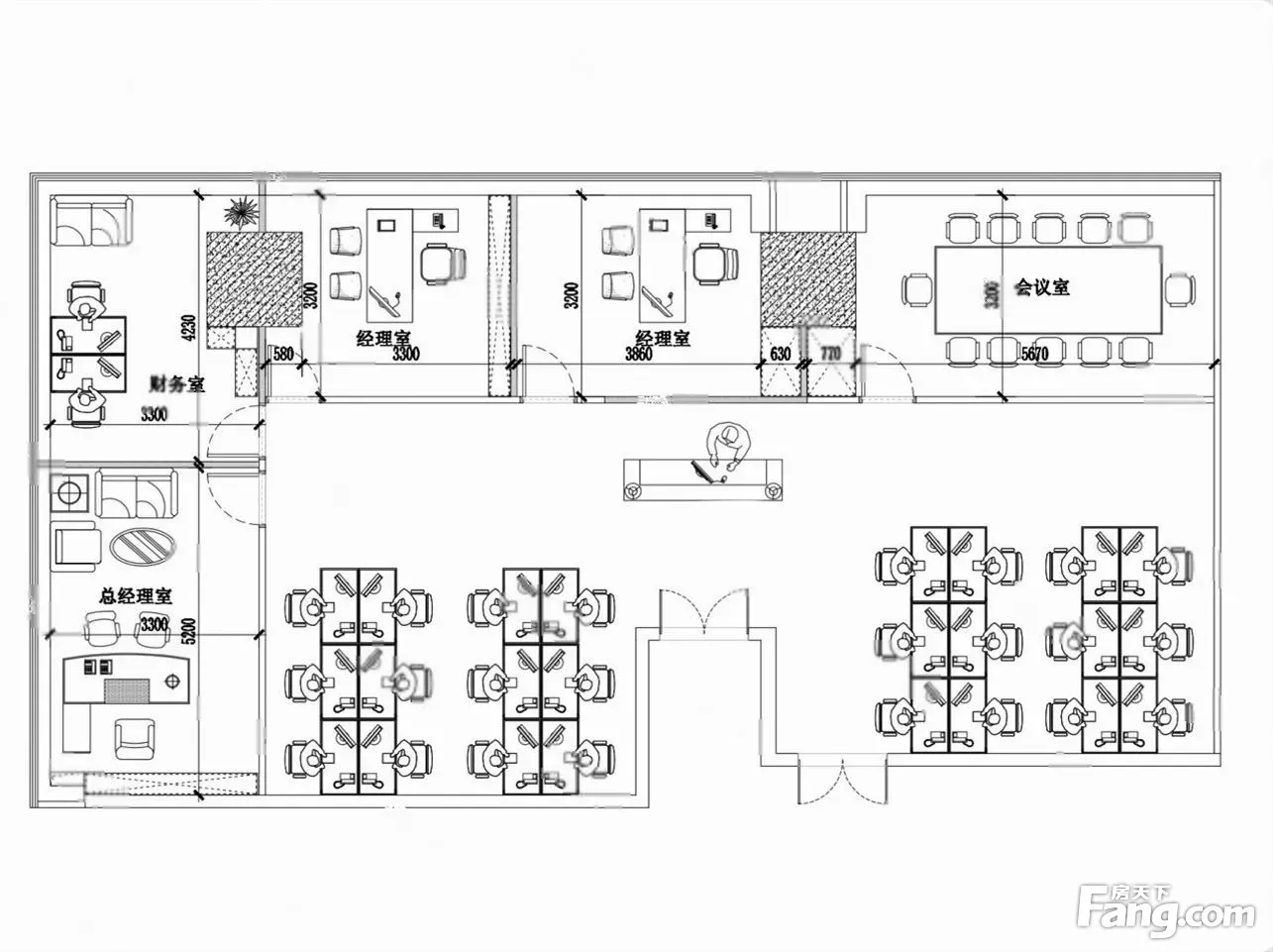
259㎡
建筑面积
-
楼盘名称
万科首铸东江之星
-
区域
南城
-
物业费
暂无
-
类型
纯写字楼
-
等级
暂无
-
挂牌时间
2025-05-07
-
支付方式
押一付三
-
入驻时间
暂无
费用明细
-
押一付三
付款方式
-
7770
租金(元/月)
-
***
押金
-
***
服务费
- 房租含取暖费吗?
- 房租含物业费吗?
房源描述
-
房源亮点问经纪人
很幸运在“成千上万”条网络信息中您能光临本人店铺!从这一刻开始关于写字楼的事情您都可以免费咨询本人! 本人诚心诚意为您服务,希望您能对本人的服务给予认可,敬请指教!本人的服务理念:给客户带来安心、放心、省心的企业服务! 从企业选址到正常运作,一些列的需求都能解决(包括但不仅限于写字楼买卖、装修、租赁、注册营业执照等一系列的服务)专业的人做专业的事!本次房源介绍: 1.建筑面积:175-3200m2 2.每月租金:40元/m/月起(押二付一) 3.装修配套:有全齐拎包办公的,也有可以定制装修的 4.内部布局:可以根据客户的需求定制 5.免租时间:根据现场情况面谈 6.业主心态:诚心出租,随时看房
-
服务介绍问经纪人
本人从事房地产多年,公司有大量好房源,欢迎进入我的店铺查看,欢迎随时电话咨询,相信我的专业,为您置业安家保驾护航。
-
周边配套问经纪人
位置:小区地理位置佳,绿化率高,居民素质高 配套:有健身器材,小型篮球场,可供小区居民使用 车位:停车位充足,建有地上停车场和地下车库 保安:小区内24保安巡逻
南城鸿福路口
建成2020年
周边配套
地址:鸿福西路与港口大道交汇处(东莞R1线滨江体育馆站)
- 免费咨询
- 专业服务
- 区域解读
- 户型分析
免责声明:房源信息由网站用户提供,其真实性、合法性由信息提供者负责,最终以政府部门登记备案为准。本网站内容凡涉及面积单位均为建筑面积,本网站不声明或保证内容之正确性和可靠性,租赁该房屋时,请谨慎核查。

