30元含物业!整层直播现房! 23隔间16个直播间丨通上下水
-
30元/平米·月
租金
-
精装修
装修
-
1300㎡
建筑面积
租房不踩坑
3000+人正在热聊
加入群聊
-
楼盘名称
成金创想中心
-
区域
双流
-
物业费
6元/平米·月
-
类型
纯写字楼
-
等级
暂无
-
挂牌时间
2026-01-26
-
支付方式
押一付三
-
入驻时间
2026-03-01
费用明细
-
押一付三
付款方式
-
30
租金(元/平米·月)
-
***
押金
-
***
服务费
- 房租含取暖费吗?
- 房租含物业费吗?
房源描述
-
房源亮点问经纪人
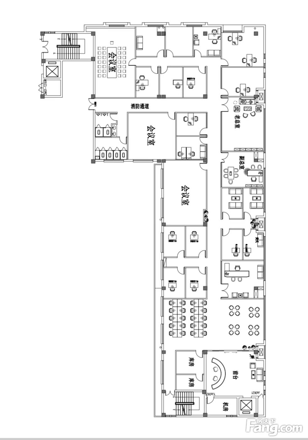
全成都在房源皆有,如此套不合适您的需求,请来电咨询,高效为您匹适的房源 免费提供:工商,财税,审计,税筹。法律,补贴等免费咨询 益办地产——专注于租凭保持高效率,为您节约时间 1.楼盘:成金电商中心 2.面积:1300平 3.楼盘位置:3号线龙桥路地铁口,地铁 4.房屋特色:16个小直播间+1副总室+1老总室+1会议室30人+财务室+库房+接待室+电梯口前台,工区40个工位。电动双开门+休闲区。 5.如您需要,我司可免费帮助联系下列服务(换锁芯,宽带,装修等后续一系列服务)
-
服务介绍问经纪人
益办地产 服务宗旨 1.告知意向——告诉我们您的需求、专业顾问一对一高质量服务. 2.优选房源——大量房源根据您的实际需求为您甄选、助您决策。 3.实地考察——意向房源实地带看、节约您宝贵的时间和精力
-
周边配套问经纪人
【宽带】:千兆宽带,可按工位布线,上网无忧。 【电梯】:电梯高低区分流,上下班高峰期也不拥堵。 【停车场】:车位多,停车方便。 【空调】:空调24H自控。
-
交通出行问经纪人
1、地理位置得天独厚,私家车和公共交通都方便出行。 2、地铁3号线龙桥路站,交通便利,配套完善。 3、公交线路数十条,让您的出行多样且便利。
- 免费咨询
- 专业服务
- 区域解读
- 户型分析
免责声明:房源信息由网站用户提供,其真实性、合法性由信息提供者负责,最终以政府部门登记备案为准。本网站内容凡涉及面积单位均为建筑面积,本网站不声明或保证内容之正确性和可靠性,租赁该房屋时,请谨慎核查。


