成都西站丨青羊西三环200平职场·拎包入驻丨4隔间30卡位!
-
1.69元/平米·天
租金
-
精装修
装修
-
200㎡
建筑面积
租房不踩坑
3000+人正在热聊
加入群聊
-
楼盘名称
西环广场
-
区域
青羊
-
物业费
9元/平米·月
-
类型
纯写字楼
-
等级
暂无
-
挂牌时间
2026-01-09
-
支付方式
押一付三
-
入驻时间
2025-11-10
费用明细
-
押一付三
付款方式
-
1.69
租金(元/平米·天)
-
***
押金
-
***
服务费
- 房租含取暖费吗?
- 房租含物业费吗?
房源描述
-
房源亮点问经纪人
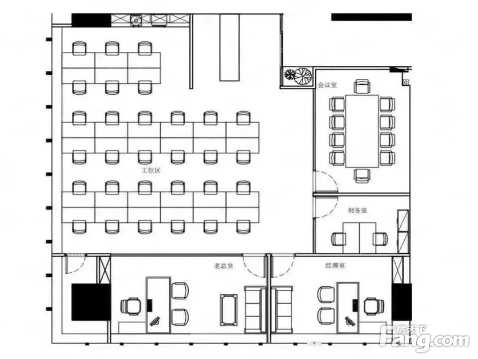
——————益办地产———————— 每次看房都会为您准备好所有合适您的房源 节约您的看房时间丨高效率为您服务 1、【项目】:西环广场 2、【面积】:200平 3、【格局】:双开玻璃门,大理石前台,大厅30卡位,采光通透,共4个隔间,双面落地窗,精装带家具 4、【朝向】:朝南 5、【交通】:地铁4号线【中坝站】地铁口,多条公交线路 6、【看房方式】:随时看房,多套任您挑选。 一个电话了解详情; 我将周边楼盘均价、物业费、停车费、补贴等基本信息整理出来。以便让您对市场有个大概的了解。
-
服务介绍问经纪人
益办地产 服务宗旨 1.告知意向——告诉我们您的需求、专业顾问一对一高质量服务 2.优选房源——大量房源根据您的实际需求为您甄选、助您决策 3.实地考察——意向房源实地带看、节约您宝贵的时间
-
周边配套问经纪人
位置:小区地理位置佳,绿化,居民素质高 银行:中国银行、农业银行,招商银行等 配套:有健身器材,小型篮球场,可供小区居民使用 车位:停车位充足,建有地上停车场和地下车库 保安:小区内24保安巡逻
-
交通出行问经纪人
4号线中坝 交通便捷,利于员工上下班出行 周边公交:公交线路丰富,交通便捷,利于员工上下班出行
青羊光华
建成2015年
建筑类型塔楼,板楼
周边配套
地址:成都市青羊区光华大道一段
- 免费咨询
- 专业服务
- 区域解读
- 户型分析
免责声明:房源信息由网站用户提供,其真实性、合法性由信息提供者负责,最终以政府部门登记备案为准。本网站内容凡涉及面积单位均为建筑面积,本网站不声明或保证内容之正确性和可靠性,租赁该房屋时,请谨慎核查。


