希缺小户型!金融城核心商圈(3隔间18工位)开发商自装样板间
-
68元/平米·月
租金
-
精装修
装修
-
150㎡
建筑面积
租房不踩坑
3000+人正在热聊
-
楼盘名称
成都银泰中心写字楼
-
区域
高新
-
物业费
暂无
-
类型
纯写字楼
-
等级
暂无
-
挂牌时间
2026-01-06
-
支付方式
押一付三
-
入驻时间
2023-01-10
费用明细
-
押一付三
付款方式
-
68
租金(元/平米·月)
-
***
押金
-
***
服务费
- 房租含取暖费吗?
- 房租含物业费吗?
房源描述
-
房源亮点问经纪人
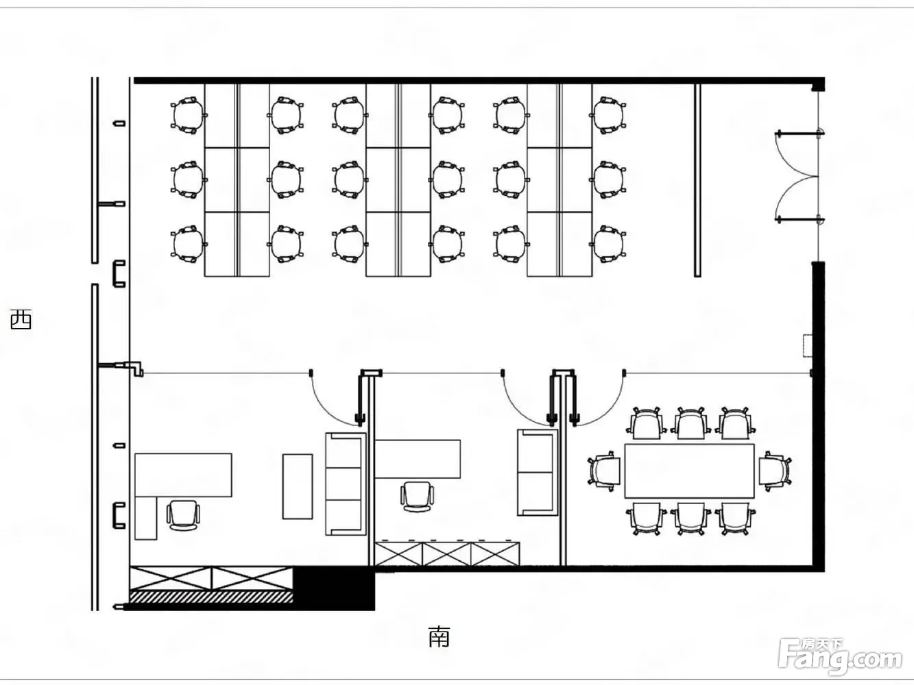
房源亮点 商诚地产——赵仁杰今日好房推荐 欢迎光临冲浪到这儿老板您就休息会参观下 希望可以一不小心跌跌撞撞的闯进了您心尖入了您法眼 !楼盘:银泰中心 !面积:300㎡ !布局:3隔间18工位(可加可减);公摊少,利用高 !装修:精装带家具,随时看房,即刻入驻(有特殊要求也可专属定制) !风格:现代、经典、商务,采光漂亮,环境舒畅,视野美丽!(实地更美哦) !价格:价格面议 !交通:地铁,公交畅通 !周边配套:银行、购物、酒店、休闲、运动、娱乐、超市便利店、特色小吃、中西餐等生活成熟 —————————————————————————— 公司成都11个分部0余专业同事,拥有东西南北大中小业主至少90%房源,全成都20-50000平米可选,风格类型多样(现代、园林、工业、清新、艺术、科技、豪华、国风、简约等),各大楼盘免费带看,如您还在为选房所困扰,关于所有问题,直接一个电话!或将具体想法和要求与我沟通,为您解决实际问题!
-
服务介绍问经纪人
商诚地产;公司介绍:我们公司专做写字楼租赁业务,20个分店800多位同事,全成都均有房源. 自我介绍:本人赵仁杰 从事地产2年,秉承诚实守信. 如这套房源合适,记得点本人头像咨询或来店!
-
周边配套问经纪人
【宽带】5G网络覆盖完善,可选套餐,随时可以入户 【空调】集装式空调,24全天候开放,物业包含空调使用卖及电费, 【电梯】低区各6部电梯,3部货梯,共计9部电梯,避免上班早晚高峰时电梯拥堵问题,保证员工准时上班,更加方便快捷 【车位】3层地下停车场,2000多个停车位,随时有空置,满足您的停车需求,地面也有候客接待席位,确保您的便利出行业起辅助引导性作用。
-
交通出行问经纪人
地理位置得天独厚,私家车和公共交通都能方便出行。 地铁:地铁1号线金融城地铁站,交通便利,配套完善。 公交线路:数十条公交线路,上下班方便不拥堵。
高新金融城
建成2015年
周边配套
- 免费咨询
- 专业服务
- 区域解读
- 户型分析


