火车南站丨家居展厅+办公接待丨6隔间15工位!双面采光视野佳
-
25600元/月
租金
-
精装修
装修
-
388㎡
建筑面积
租房不踩坑
3000+人正在热聊
加入群聊
-
楼盘名称
富森创意
-
区域
武侯
-
物业费
17元/平米·月
-
类型
纯写字楼
-
等级
暂无
-
挂牌时间
2026-01-06
-
支付方式
押一付三
-
入驻时间
2026-01-05
费用明细
-
押一付三
付款方式
-
25600
租金(元/月)
-
***
押金
-
***
服务费
- 房租含取暖费吗?
- 房租含物业费吗?
房源描述
-
房源亮点问经纪人
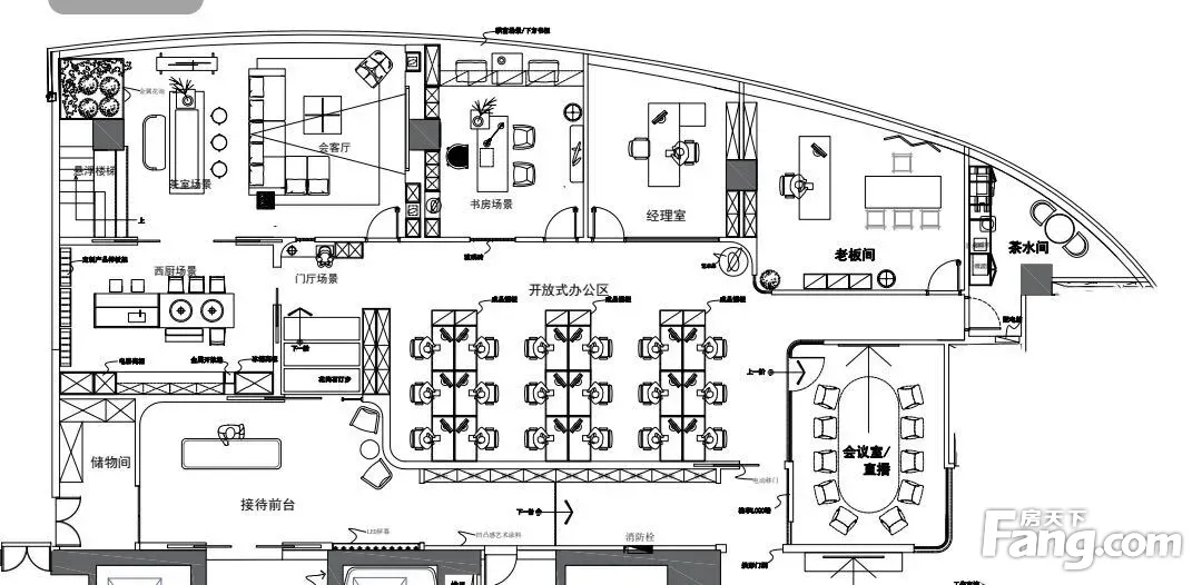
1、楼盘:富森创意中心 2、面积:388平 3、格局:电梯口,6个隔间,15个工位,1个茶水区,落地窗采光,空调周一到周天都开放。 4、看房时间:随时可看 5、交通情况:火车南站地铁3线! (如何看房):若您工作繁忙没有时间看房,可电话联系我为您视频带着(专业):告知您需求,为您 甄选房源 (高效):为您发送图片、视频,精准匹配房源,随时上班状态 (理念):一份信任一份感恩、有1%的可能,尽%的努力。回馈,台作共赢
-
服务介绍问经纪人
【贴心服务】 1、地点选址(根据要求,提供性价比房源)。 2、提供免费看房。 3、专业合法租赁合同(专业法律顾问拟定)。 4、后续物业交割(水电气、物管费用、用品等物业交割)。
-
周边配套问经纪人
周边配套:银行、购物、酒店、休闲、运动、娱乐、超市便利店、特色小吃、中西餐等生活成熟
-
交通出行问经纪人
1、地理位置得天独厚,私家车和公共交通都方便出行。 2、地铁火车南站3线,交通便利,配套完善。 3、公交线路数十条,让您的出行多样且便利。
周边配套
地址:天和西二街189号
- 免费咨询
- 专业服务
- 区域解读
- 户型分析
免责声明:房源信息由网站用户提供,其真实性、合法性由信息提供者负责,最终以政府部门登记备案为准。本网站内容凡涉及面积单位均为建筑面积,本网站不声明或保证内容之正确性和可靠性,租赁该房屋时,请谨慎核查。


