5600
元/月
押一付三
武侯机投镇聚亿熙悦府 4室2厅 140㎡ 5600元/月
-
4室2厅2卫
整租
-
140㎡
面积
-
地下/1层
楼层
-
东南
朝向
2025-09-13更新
租房不踩坑
3000+人正在热聊
加入群聊
-
看房
-
-
装修
豪华装修
-
入住
2025-09-12
-
咨询经纪人,了解更多房源信息
问一问
郑重提示:请您在签订合同之前,切勿支付任何形式的费用,以免上当受骗。
费用明细
-
押一付三
付款方式
-
5600
租金(元/月)
-
***
押金
-
***
服务费
- 房租含取暖费吗?
- 房租含物业费吗?
房屋设施
- 床
- 宽带
- 暖气
- 电视
- 空调
- 冰箱
- 洗衣机
- 热水器
- 煤气
- 家具
- 微波炉
- 可做饭
- 卫生间
- 沙发
- 衣柜
- 阳台
- 电梯
- 油烟机
- 智能门锁
- 橱柜
- 燃气灶
- 电磁炉
- 餐桌
- 电话
- 厨具
- 独立卫生间
- 独立阳台
- 露台
- 阁楼
- 游泳池
- 阳光房
业主自评
-
江南烟雨172
加入房天下262天
接电时间:8:00-22:00
出租要求: 禁止养宠物
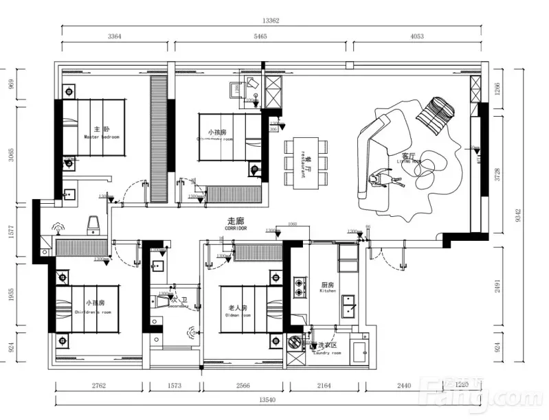
业主直租!聚亿玺悦府129㎡四室两厅两卫。 1. 核心户型与隐私配置 - 129㎡四室两厅两卫纯大平层,空间区合理,适配多人口家庭;一梯一户 独立电梯直达门口,4㎡独立电梯厅可独自使用,隐私与便捷兼具。 2. 房屋采光与硬件配置 - 全屋全景落地窗,采光通风佳,室内明亮、视野开阔;家具含3.2米黑色真皮沙发、1.8米餐桌椅,及电视柜、衣柜、鞋柜等,储物无忧。 - 家电有品牌中央空调、洗烘一体洗衣机、双开门法式冰箱、75寸电视,满足日常需求。 3. 小区配套与居住保障 - 步行到地铁,通勤方便;周边覆盖幼儿园、小学、初中,适合有孩家庭。 - 设地下停车场,人车离,居住安全;有专业物业管家,且小区配单独快递柜,24小时可取件。 4. 出租说明 - 主直租无中介费,可随时联系看房,租金可协商。
出租要求: 禁止养宠物
业主直租!聚亿玺悦府129㎡四室两厅两卫。 1. 核心户型与隐私配置 - 129㎡四室两厅两卫纯大平层,空间区合理,适配多人口家庭;一梯一户 独立电梯直达门口,4㎡独立电梯厅可独自使用,隐私与便捷兼具。 2. 房屋采光与硬件配置 - 全屋全景落地窗,采光通风佳,室内明亮、视野开阔;家具含3.2米黑色真皮沙发、1.8米餐桌椅,及电视柜、衣柜、鞋柜等,储物无忧。 - 家电有品牌中央空调、洗烘一体洗衣机、双开门法式冰箱、75寸电视,满足日常需求。 3. 小区配套与居住保障 - 步行到地铁,通勤方便;周边覆盖幼儿园、小学、初中,适合有孩家庭。 - 设地下停车场,人车离,居住安全;有专业物业管家,且小区配单独快递柜,24小时可取件。 4. 出租说明 - 主直租无中介费,可随时联系看房,租金可协商。
周边配套
地址:四川省成都市武侯区武兴四路1131号
联系业主
免责声明:房源信息由网站用户提供,其真实性、合法性由信息提供者负责,最终以政府部门登记备案为准。本网站内容凡涉及面积单位均为建筑面积,本网站不声明或保证内容之正确性和可靠性,租赁该房屋时,请谨慎核查。

